QQ登录

只需一步,快速开始

登录 | 注册 | 找回密码

三维网

 找回密码
 注册

QQ登录

只需一步,快速开始

展开

通知     

查看: 3202|回复: 19
收起左侧

[求助] 交叉溢流阀的工作原理是什么

[复制链接]
发表于 2008-7-24 10:36:43 | 显示全部楼层 |阅读模式 来自: 中国黑龙江齐齐哈尔

马上注册,结识高手,享用更多资源,轻松玩转三维网社区。

您需要 登录 才可以下载或查看,没有帐号?注册

x
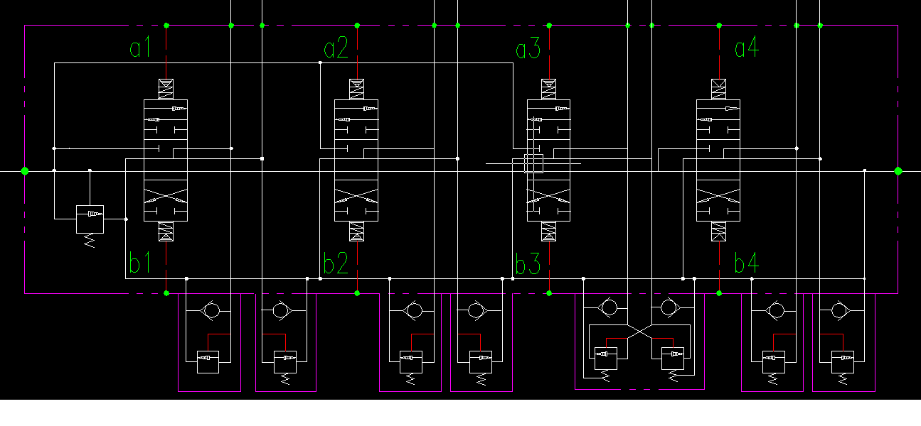
交叉溢流阀的工作原理是什么 未命名.GIF 未命名.GIF
  v/ I9 S, S, E0 u, L& r4 y0 K" f! T* J- o* {* _" d& C  q6 p
[ 本帖最后由 baishengnan 于 2008-7-25 11:25 编辑 ]
未命名.GIF

评分

参与人数 1三维币 +2 收起 理由
自流井 + 2 不错

查看全部评分

发表于 2008-7-24 14:33:54 | 显示全部楼层 来自: 中国湖南衡阳
根据上边的图就可以知道,如果A口压力高就溢流到B口。B口压力高就溢流到A口。两个单向阀是防止吸空用于补油的。

评分

参与人数 1三维币 +2 收起 理由
自流井 + 2 应助

查看全部评分

 楼主| 发表于 2008-7-24 14:58:58 | 显示全部楼层 来自: 中国黑龙江齐齐哈尔
谢谢,油路是理清了。劳烦高手再解释一下它的作用是什么,应用于什么场合?我查资料上说是应用于马达回路,这怎么理解?还有弹簧接油箱是为什么啊?

评分

参与人数 1三维币 +2 收起 理由
自流井 + 2 积极参与

查看全部评分

发表于 2008-7-24 15:20:30 | 显示全部楼层 来自: 中国湖南衡阳
主要 应用于有制动要求的马达控制回路。其安全保护马达的作用。不时弹簧接油箱,而是控制口的弹簧腔接油箱。防止产生背压。

评分

参与人数 1三维币 +1 收起 理由
自流井 + 1 应助

查看全部评分

 楼主| 发表于 2008-7-24 16:06:54 | 显示全部楼层 来自: 中国黑龙江齐齐哈尔
见高人不能交臂失之,再请教几个问题。
& P! M  `" r& ]解释一下A口压力高就溢流到B口。B口压力高就溢流到A口是怎么保护马达的?如果A口压力高时溢流到油箱会怎么样?
1 F0 H4 ^) _9 Y  z控制口的弹簧腔接油箱,防止产生背压。那为什么有的溢流阀控制口的弹簧腔什么都不接?不怕产生背压吗?
发表于 2008-7-24 16:17:06 | 显示全部楼层 来自: 中国上海
A口B口均溢流阀到T口也是一样的,马达平衡阀一般都带补油单向阀。弹簧腔有时省略不画,不等于不接。

评分

参与人数 1三维币 +1 收起 理由
自流井 + 1 应助

查看全部评分

发表于 2008-7-24 16:38:35 | 显示全部楼层 来自: 中国江苏无锡
刹车用的!一般这种阀调的压力比系统压力大10bar左右!单向阀补油!应用于马达自生不带刹车的马达!像大摆线型的马达!

评分

参与人数 1三维币 +1 收起 理由
自流井 + 1 应助

查看全部评分

 楼主| 发表于 2008-7-25 08:58:43 | 显示全部楼层 来自: 中国黑龙江齐齐哈尔
是一个多路阀的内部原理图9 j! f2 {, ?6 n0 Z( ?" W
“A口B口均溢流阀到T口也是一样的”这句话不对吧。既然一样,又何必做成这样呢; N8 d+ i- `& x
感觉还是没有解释如何保护马达的?
发表于 2008-7-25 09:22:02 | 显示全部楼层 来自: 中国湖南衡阳
原帖由 wuwanfu 于 2008-7-24 16:38 发表 http://www.3dportal.cn/discuz/images/common/back.gif
' u; {$ z5 |/ C3 n刹车用的!一般这种阀调的压力比系统压力大10bar左右!单向阀补油!应用于马达自生不带刹车的马达!像大摆线型的马达!

8 `; T( u1 U6 N, J8 l# L就是上边这位说的。
 楼主| 发表于 2008-7-25 11:28:42 | 显示全部楼层 来自: 中国黑龙江齐齐哈尔
交叉溢流是不是只作用在o型机能上,在y型上是不是不起应有的作用,和图中其它的一样?
 楼主| 发表于 2008-7-25 14:40:50 | 显示全部楼层 来自: 中国黑龙江齐齐哈尔
我那个应用原理图是不是有问题?+ R' ]6 }: {8 c7 ]8 M+ Y
有人说用在y机能是走行有上下坡时用的,即在中位不起作用,而在其它两位才起作用,期待高手答疑
发表于 2008-7-25 21:59:48 | 显示全部楼层 来自: 中国四川绵阳
这个是不是平衡阀的作用类同?
( c! {  `" R' ?& Y( u  v9 S4 t
+ Y9 O+ }  Z) a5 \9 _7 pY型机能可以用呀
 楼主| 发表于 2008-7-29 15:26:25 | 显示全部楼层 来自: 中国黑龙江齐齐哈尔
Y型机能上用,怎么理解?
发表于 2008-8-25 19:47:07 | 显示全部楼层 来自: 中国
这图怎么画的半拉咔叽的呢
发表于 2008-8-25 20:30:59 | 显示全部楼层 来自: 中国四川成都
这是在多路液控换向阀上常见的二次阀组。
! d" \0 C# F6 g' |两交叉控制的溢流阀是双联过载溢流阀,两边的工作腔通过过载溢流阀互通。一侧工作腔过载时,把油经过载溢流阀补充到另侧工作腔。双联溢流阀常装于控制液压马达的多路阀上。$ p5 P" c3 U3 `4 t; R+ ~, e
两只单向阀是补油单向阀,防止液压马达工作腔在出现负压时能及时从多路阀的回油道中得到补充油液。
发表于 2008-8-25 21:48:44 | 显示全部楼层 来自: 中国山东威海
用于串联马达回路,如果其中一个马达卡住,油会越过这个马达保证其他马达正常工作的。
发表于 2008-8-25 22:02:11 | 显示全部楼层 来自: 中国广西玉林
一般这种阀调的压力比系统压力大10bar左右!
发表于 2008-8-26 14:38:26 | 显示全部楼层 来自: 中国四川成都
同意15楼的说法,这是多路阀或马达控制回路的常用方法。
发表于 2010-8-30 22:36:05 | 显示全部楼层 来自: 中国上海
见识了,各路高手!人才啊!
发表于 2010-8-31 10:47:41 | 显示全部楼层 来自: 中国山东济宁
好像就是带补油的二次阀
发表回复
您需要登录后才可以回帖 登录 | 注册

本版积分规则


Licensed Copyright © 2016-2020 http://www.3dportal.cn/ All Rights Reserved 京 ICP备13008828号

小黑屋|手机版|Archiver|三维网 ( 京ICP备2023026364号-1 )

快速回复 返回顶部 返回列表