QQ登录

只需一步,快速开始

登录 | 注册 | 找回密码

三维网

 找回密码
 注册

QQ登录

只需一步,快速开始

展开

通知     

查看: 1595|回复: 6
收起左侧

[已答复] 结构问题

[复制链接]
发表于 2008-7-23 10:48:54 | 显示全部楼层 |阅读模式 来自: 中国北京

马上注册,结识高手,享用更多资源,轻松玩转三维网社区。

您需要 登录 才可以下载或查看,没有帐号?注册

x
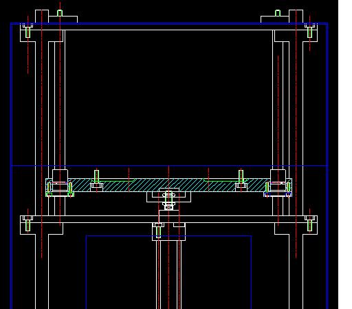
如果所视 汽缸为动力元件,直线轴承为导向机构.现在我怀疑会出现问题.就是汽缸现在的连接形式会不会对汽缸寿命产生影响.汽缸杠杆自由度没了,直线轴承在运动的时候有个晃动量,这个问题应该怎么解决.   或者是这种考虑多余,不会造成什么影响,所做结构没问题,请大家多多指教
123.JPG
发表于 2008-7-23 11:13:45 | 显示全部楼层 来自: 中国江苏常州
直线轴承的公差一般是H7/f6
7 q' Z0 C. L& C这个的基本是没有间隙的啊# O: J# J" E3 x! {% l9 k+ Y- F
没有关系
2 X6 Y& o4 I" }, Q4 `! ]& ?你的这个汽缸没有问题哦
' o1 T$ [) x0 J( [如果你再担心的话# d. X3 X0 v  g% p% z& L& e1 m
搞个球头就好了。

评分

参与人数 1三维币 +5 收起 理由
userkypdy + 5 积极参与

查看全部评分

 楼主| 发表于 2008-7-23 11:18:07 | 显示全部楼层 来自: 中国北京

回复 2# 的帖子

我是只直线轴承与光杆的滑动   与汽缸杆的限制
 楼主| 发表于 2008-7-23 11:23:45 | 显示全部楼层 来自: 中国北京
可能我担心的问题是多余的  根本没有问题 不会影响汽缸的寿命
4 m7 ?5 l4 ?( F* Y
& {# a1 h' Q4 \5 n可高手能不能给解释下
发表于 2008-7-23 14:39:14 | 显示全部楼层 来自: 中国黑龙江佳木斯
一般气缸制造时活塞与缸筒配合为H9级,活塞杆导套内经为H8级。这样气缸的问题解决了。但是两个或多个光杆滑动的平行度问题是否也能够解决,需要仔细斟酌。
发表于 2008-7-23 14:49:41 | 显示全部楼层 来自: 中国江苏常州
回楼上的同事
  I) A, B! Y# o你的担心是多的
1 W6 X$ K4 D+ n1 [/ D" O8 u0 W这个结构绝对没有问题的
( w/ i- ~' o: R4 f; g$ R# U我们做过多次了
发表于 2009-12-14 20:13:47 | 显示全部楼层 来自: 中国山西太原
建议:汽缸与连接件之间不要做成刚性的,用销轴连接;连接件的结构做成“Y”形的,即:与线性轴承机构有两处连接,可以使受力均匀。

评分

参与人数 1三维币 +2 收起 理由
天际孤帆 + 2 鼓励交流

查看全部评分

发表回复
您需要登录后才可以回帖 登录 | 注册

本版积分规则


Licensed Copyright © 2016-2020 http://www.3dportal.cn/ All Rights Reserved 京 ICP备13008828号

小黑屋|手机版|Archiver|三维网 ( 京ICP备2023026364号-1 )

快速回复 返回顶部 返回列表