QQ登录

只需一步,快速开始

登录 | 注册 | 找回密码

三维网

 找回密码
 注册

QQ登录

只需一步,快速开始

展开

通知     

查看: 3679|回复: 23
收起左侧

[求助] 液压缸速度变慢

[复制链接]
发表于 2008-7-20 00:27:02 | 显示全部楼层 |阅读模式 来自: 中国广西南宁

马上注册,结识高手,享用更多资源,轻松玩转三维网社区。

您需要 登录 才可以下载或查看,没有帐号?注册

x
我公司一台篦冷机共有两段料床,每段料床由两个油缸来回推动,四个油缸共用一个油箱.现第二段料床油缸速度突然变慢,减少负荷运行约15分钟后又恢复正常了,基本上每天都出现一次此现象,会不会是液压系统的原因呢?(暂时找不到液压图,但有比例阀,节流阀)请各位网友帮忙分析一下.: _2 o( N1 a" S! Q
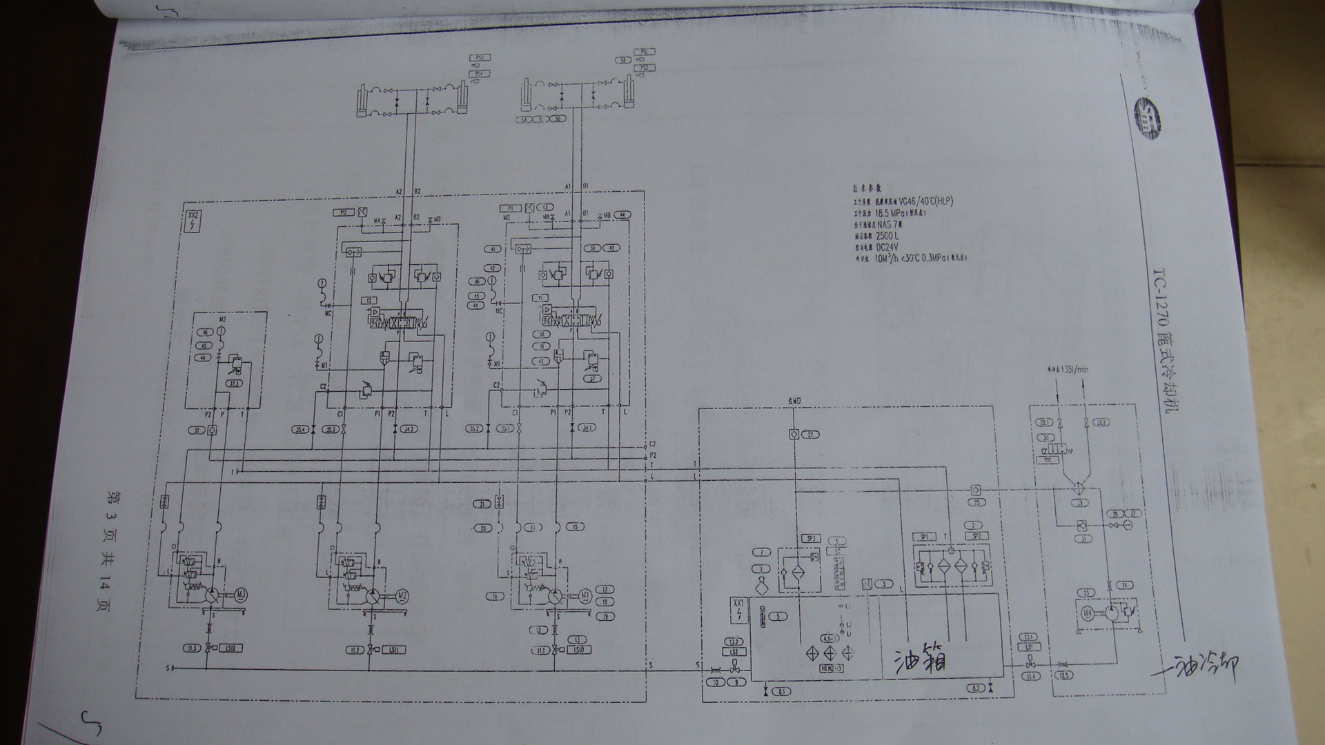
   找到了液压图,请各位网友帮忙分析一下各种可能的原因- A7 E) d: Q  h9 `( m  ?
$ X. y9 u  Q" [9 ]
[ 本帖最后由 ltxxc 于 2008-7-22 14:34 编辑 ]
DSC01931.JPG
DSC01933.JPG
DSC01934.JPG
发表于 2008-7-20 09:09:26 | 显示全部楼层 来自: 中国山东威海
我觉得是不是问题出在液压站上,好像是泵的流量不够。每天的什么时侯出现一次?另外每两个油缸是不是同步,是不是同步出现了问题。
 楼主| 发表于 2008-7-20 09:37:05 | 显示全部楼层 来自: 中国广西南宁
同步应该没有问题,两个油缸都同时变漫,并且基本上都是在晚上20:00左右出现,还是找不到原因,泵和阀温度都正常.
发表于 2008-7-20 10:05:54 | 显示全部楼层 来自: 中国河北唐山
由于没有相关资料,楼主的故障较难分析,建议楼主检测一下速度慢时油缸的压力情况,同时管路是否较长易有空气。
发表于 2008-7-20 10:13:53 | 显示全部楼层 来自: 中国四川成都
若系统无异常,建议检查工作电压是否正常?

评分

参与人数 1三维币 +1 收起 理由
晨砂 + 1 技术讨论

查看全部评分

发表于 2008-7-20 10:17:17 | 显示全部楼层 来自: 中国北京
原帖由 cdxwg 于 2008-7-20 10:13 发表 http://www.3dportal.cn/discuz/images/common/back.gif
$ g8 U2 \" J9 A" a/ n4 E2 A若系统无异常,建议检查工作电压是否正常?
" ^8 g' }& G0 q( k9 @
说的对,因为是固定时间出现,应该看看比例阀的工作电压的变化!

评分

参与人数 1三维币 +1 收起 理由
9619 + 1 技术讨论

查看全部评分

发表于 2008-7-20 10:25:56 | 显示全部楼层 来自: 中国河北邯郸
速度和流量相关,查一下和流量相关部分
 楼主| 发表于 2008-7-22 14:37:10 | 显示全部楼层 来自: 中国广西南宁
已将液压图上传,请各位分析
发表于 2008-7-22 21:48:26 | 显示全部楼层 来自: 中国广东广州
怀疑油缸内泄,如有条件建议两组油缸的油管互换试机。
 楼主| 发表于 2008-7-22 23:28:29 | 显示全部楼层 来自: 中国广西南宁
液压缸温度正常,如果内泄漏应该有发热现象啊?
发表于 2008-7-23 07:08:52 | 显示全部楼层 来自: 中国上海
把C1口的球阀关掉试试了吗?
 楼主| 发表于 2008-7-23 08:21:02 | 显示全部楼层 来自: 中国广西南宁
C1口的球阀会有什么影响呢?楼上请帮分析一下,谢谢.
发表于 2008-7-23 08:25:15 | 显示全部楼层 来自: 中国山东青岛
每天都是同一时间出问题,且出问题现象也相同,感觉不应该是液压系统内部的问题。
发表于 2008-7-23 18:10:29 | 显示全部楼层 来自: 中国福建福州
由于没有相关资料,楼主的故障较难分析,建议楼主检测一下速度慢时油缸的压力情况,同时管路是否较长易有空气。

评分

参与人数 1三维币 -3 收起 理由
晨砂 -3 复制他人发言

查看全部评分

 楼主| 发表于 2008-7-24 11:14:20 | 显示全部楼层 来自: 中国广西南宁
出现故障的时间并不固定了,白天也出现,我们现在采取的措施是将二段的速度调快,两天了还没有出现故障,但速度调快后对设备以及工艺有影响,因此还需继续找原因,请大家继续帮忙!!
发表于 2008-7-24 14:26:19 | 显示全部楼层 来自: 中国湖南衡阳
因为你有两套同样的设备,可以把有问题的和没有问题的互换,就是把你感觉有问题的和另外一台互换,这样就能找到问题的所在了。不过是个比较笨的办法。
 楼主| 发表于 2008-7-24 20:04:29 | 显示全部楼层 来自: 中国广西南宁
是关键主机设备,停不下来,而且管路太长,不好换接啊.
发表于 2008-7-24 22:28:26 | 显示全部楼层 来自: 中国四川成都
看图中系统配有一台备用泵组,可试着投入备用泵组来替换故障系统泵组,以缩小故障的查找范围。若故障消失,说明该泵组的动力或变量控制系统有问题;若故障依旧,再查找后级的故障所在。另外,在故障发生时的系统压力有何变化?电动机的转速、工作温度和工作电流是否稳定?

评分

参与人数 1三维币 +2 收起 理由
9619 + 2 技术讨论

查看全部评分

发表于 2008-8-25 22:32:21 | 显示全部楼层 来自: 中国广西玉林
学习 :handshake
发表于 2008-9-5 15:29:42 | 显示全部楼层 来自: 中国广东阳江
如果油缸查不到问题,而且出现在晚上八点左右,看与之联系的各方面在这个时间是否有什么情况发生,
发表于 2008-9-5 15:59:33 | 显示全部楼层 来自: 中国江苏无锡
是不是有什么该关的阀阀没有完全关闭!有点像旁路的感觉!肯定的是流量不够造成的!把所有阀读都查一遍!液压系统的本身应该没什么问题!
发表于 2008-9-5 17:56:28 | 显示全部楼层 来自: 中国广东深圳

回复 21# 的帖子

如无漏泄,会不会是电机电压降低使泵流量减小压力不够,出现液压缸移动减缓。检查工作电压应该是很容易实现的。
- r* D+ c8 D  y* r* ]. w6 `# |! I2 M. _
[ 本帖最后由 xsyhero 于 2008-9-5 18:02 编辑 ]
发表于 2008-9-10 12:25:56 | 显示全部楼层 来自: 中国广东佛山
应该先确定比力阀的电压是否正常
发表于 2008-10-31 19:51:50 | 显示全部楼层 来自: 中国江苏无锡
看看比例阀供电电源是否正常工作。
发表回复
您需要登录后才可以回帖 登录 | 注册

本版积分规则


Licensed Copyright © 2016-2020 http://www.3dportal.cn/ All Rights Reserved 京 ICP备13008828号

小黑屋|手机版|Archiver|三维网 ( 京ICP备2023026364号-1 )

快速回复 返回顶部 返回列表