QQ登录

只需一步,快速开始

登录 | 注册 | 找回密码

三维网

 找回密码
 注册

QQ登录

只需一步,快速开始

展开

通知     

查看: 1901|回复: 8
收起左侧

[讨论] 有幾種方法可以畫出此圖?

[复制链接]
发表于 2008-7-17 13:14:57 | 显示全部楼层 |阅读模式 来自: 中国江苏苏州

马上注册,结识高手,享用更多资源,轻松玩转三维网社区。

您需要 登录 才可以下载或查看,没有帐号?注册

x
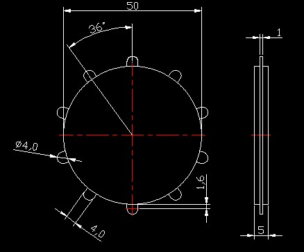
123.jpg 高手們看看這圖可以用幾種方法畫出。
发表于 2008-7-17 14:59:27 | 显示全部楼层 来自: 中国天津
基本上是两种,最快最简单的是旋转--阵列
发表于 2008-7-17 15:00:33 | 显示全部楼层 来自: 中国河北唐山

有点问题

原帖由 satanpopo 于 2008-7-17 13:14 发表 http://www.3dportal.cn/discuz/images/common/back.gif
! ~2 w4 Y; G/ X: l# D905874高手們看看這圖可以用幾種方法畫出。

- t) `  M& s/ x' M: m图给的尺寸不太科学,你说呢?
jd.jpg
发表于 2008-7-17 15:01:39 | 显示全部楼层 来自: 中国广东东莞
拉伸-圆周阵列
发表于 2008-7-17 15:27:33 | 显示全部楼层 来自: 中国山东青岛
拉伸-再拉伸,两步完成
发表于 2008-7-17 15:31:27 | 显示全部楼层 来自: 中国山东潍坊
拉伸后在阵列~!!~
发表于 2008-7-17 18:42:22 | 显示全部楼层 来自: 中国山东烟台
有多种方法,好恶不同
发表于 2008-7-17 19:51:35 | 显示全部楼层 来自: 中国浙江杭州
平面图的尺寸标的就有问题。不能标fai4的,应该是R4。/ A) `* k: D5 _) ?% k1 w  c
也不会标1.6的尺寸。肯定标到3.6
9 e- P2 U& ]1 K( S还有侧视图也画错了。1 Q- \5 G! _( _+ O$ w4 Y3 h$ N
4 I+ _3 V" u' H0 [6 R' W# F
不过用SW 做三维就容易了。两三步就可以
发表于 2008-7-17 21:39:34 | 显示全部楼层 来自: 中国陕西西安

回复

用草图圆周阵列,或特征圆周阵列都可以;% u. V8 c8 r1 ~
还有半圆应该标半径。
发表回复
您需要登录后才可以回帖 登录 | 注册

本版积分规则


Licensed Copyright © 2016-2020 http://www.3dportal.cn/ All Rights Reserved 京 ICP备13008828号

小黑屋|手机版|Archiver|三维网 ( 京ICP备2023026364号-1 )

快速回复 返回顶部 返回列表