QQ登录

只需一步,快速开始

登录 | 注册 | 找回密码

三维网

 找回密码
 注册

QQ登录

只需一步,快速开始

展开

通知     

全站
11天前
查看: 2038|回复: 9
收起左侧

[求助] 帮助分析双作用二级油缸设计是否合理

[复制链接]
发表于 2008-7-14 19:13:17 | 显示全部楼层 |阅读模式 来自: 中国安徽蚌埠

马上注册,结识高手,享用更多资源,轻松玩转三维网社区。

您需要 登录 才可以下载或查看,没有帐号?注册

x
各位老师,本人设计了一个双作用二级油缸,请大家帮忙分析原理是否可行.谢谢!

双作用多级油缸.pdf

24 KB, 下载次数: 15

 楼主| 发表于 2008-7-15 00:17:53 | 显示全部楼层 来自: 中国广东广州
原帖由 bbwty 于 2008-7-14 19:13 发表 http://www.3dportal.cn/discuz/images/common/back.gif" ]6 z1 X$ o; x  F5 `* x. j
各位老师,本人设计了一个双作用二级油缸,请大家帮忙分析原理是否可行.谢谢!
& q$ X! z, `7 g1 N( E. s

# [1 G; ^# t/ y# d关键是请教油缸伸出后,缩回时是大活塞先运动还是小活塞先运动.请高老师指点.谢谢.
发表于 2008-7-15 00:22:12 | 显示全部楼层 来自: 中国广东广州
PDF格式的,贴个图先..
1.jpg
发表于 2008-7-15 05:48:26 | 显示全部楼层 来自: 中国上海
你先假设小缸先动,对中间缸进行受力分析,看看可能吗。呵呵。
发表于 2008-7-15 08:54:48 | 显示全部楼层 来自: 中国江苏无锡
楼主 的油缸好象 有问题吧
1 H5 Z, b% D, k& M
  C! G6 T# @: e$ e2级 杆 不能伸出去的 吧1 j3 e8 y  f, G* u# I* I$ l) l- u

9 x4 o) p: j: K7 d2 q. `出去 :   大到小
  J1 b; t8 f4 B: y缩回 :   小到大
发表于 2008-7-15 09:07:56 | 显示全部楼层 来自: 中国重庆
二级杆的有杆腔无法进油,不能缩回。
 楼主| 发表于 2008-7-15 22:39:11 | 显示全部楼层 来自: 中国安徽马鞍山
请各位老师再帮忙分析一下这个图纸.谢谢

双作用二级油缸.pdf

26.08 KB, 下载次数: 9

 楼主| 发表于 2008-7-15 22:41:30 | 显示全部楼层 来自: 中国安徽马鞍山

回复 3# 的帖子

请问怎么才可以贴图上来,我还不会.我把改进设计的图纸又发上来了.
 楼主| 发表于 2008-7-15 22:50:26 | 显示全部楼层 来自: 中国安徽马鞍山
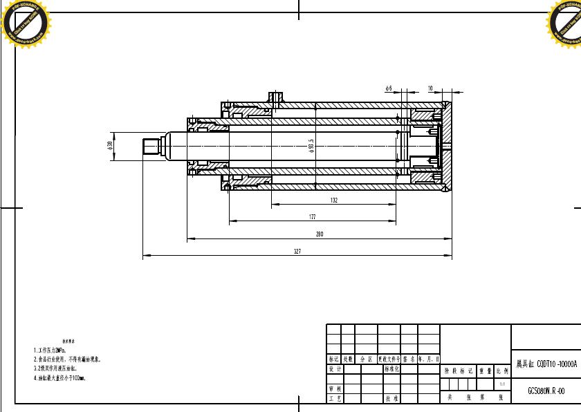
双作用二级油缸示意图
双作用二级油缸.jpg
 楼主| 发表于 2008-7-15 22:55:39 | 显示全部楼层 来自: 中国安徽马鞍山
原帖由 bbwty 于 2008-7-15 22:50 发表 http://www.3dportal.cn/discuz/images/common/back.gif! u5 m4 [' `# z3 |
双作用二级油缸示意图

, P' U! }- A% l' P1 d+ g, x# U( r. H: a6 l. K/ g' {, r
请教各位老师再帮忙分析一下这个图纸.谢谢!
发表回复
您需要登录后才可以回帖 登录 | 注册

本版积分规则


Licensed Copyright © 2016-2020 http://www.3dportal.cn/ All Rights Reserved 京 ICP备13008828号

小黑屋|手机版|Archiver|三维网 ( 京ICP备2023026364号-1 )

快速回复 返回顶部 返回列表