QQ登录

只需一步,快速开始

登录 | 注册 | 找回密码

三维网

 找回密码
 注册

QQ登录

只需一步,快速开始

展开

通知     

查看: 2568|回复: 9
收起左侧

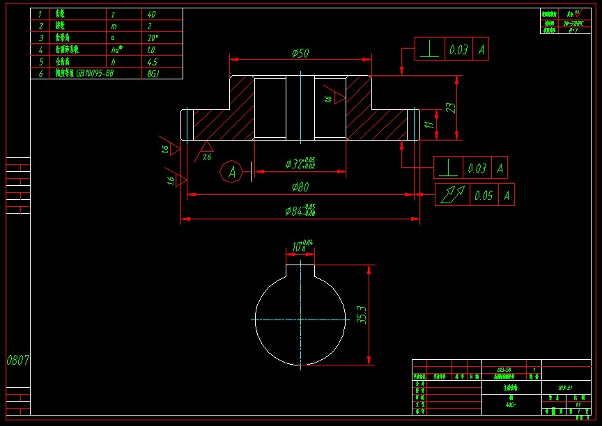
[讨论结束] 看看这个齿轮图有什么问题?

[复制链接]
发表于 2008-7-14 13:58:41 | 显示全部楼层 |阅读模式 来自: 中国北京

马上注册,结识高手,享用更多资源,轻松玩转三维网社区。

您需要 登录 才可以下载或查看,没有帐号?注册

x
这是一张现行加工用图,似乎挑不出什么毛病
8 I8 k* I. |. j 1.jpg
+ T  e/ \* _) _- J* z' R5 ?  s/ o6 j, D( |, q( i0 w/ P
[ 本帖最后由 华氏911 于 2008-8-3 16:47 编辑 ]
发表于 2008-7-14 14:21:23 | 显示全部楼层 来自: 中国上海
一般来说应该根据要求选择齿轮公差检验项目和公差值。
: O  J& C( R7 z& L4 z$ m# q还应给出跨×齿公法线长度及公差。* I1 X8 t" f0 h' ~# W" f! v
φ80 是分度圆直径,应该不用给出跳动公差,在齿轮公差中已经包含。
8 q" C3 G3 [9 m( B  s孔φ32 的公差选择似乎可以选H公差。
/ t/ q- R, K8 t# A我喜欢写“齿形  按GB/T1356”,不再标记齿顶高系数和全齿高。

评分

参与人数 1三维币 +3 收起 理由
华氏911 + 3 积极参与

查看全部评分

发表于 2008-7-14 15:07:23 | 显示全部楼层 来自: 中国山西太原
还可以挑出一些小毛病:
2 f* L9 S5 A( P7 i; @1  键槽深度与应有公差,35.3(+0.2/0),键槽宽度面的表面粗糙度应为Ra3.2,槽顶应为Ra6.3。
1 m, ^/ _9 }% Z2  跳动应标在齿顶圆上,不应标在分度圆上。. r+ c1 e& U$ C
3  缺技术要求,齿轮的热处理参数等应放在技术要求中。- a/ z. a) q+ M6 Y9 g1 ?0 }
4  技术参数表中的齿形角应改为压力角,齿形公差没有,应注明固定弦齿厚公差或公法线跨测齿数公差。全齿高应标成系数乘模数,如2.25m,不应直接标出全齿高。$ m/ \  c1 Y5 I0 I* k: D* |
5  内孔φ32应采用基孔制。倒角也应标出。

评分

参与人数 1三维币 +5 收起 理由
华氏911 + 5 技术讨论

查看全部评分

发表于 2008-7-14 15:12:33 | 显示全部楼层 来自: 中国北京
加工符号* U% ^9 E4 W  n; @& W3 F" e. F$ J4 q
齿轮测量值
, h6 F  G" ~0 X5 T- b1 c( k4 W齿根圆- d7 \/ m/ @: f( l# l

5 a  u0 A+ y4 {) C9 @不要让加工人员算尺寸

评分

参与人数 1三维币 +3 收起 理由
华氏911 + 3 积极参与

查看全部评分

发表于 2008-7-14 15:58:18 | 显示全部楼层 来自: 中国广东深圳
楼主,建议在图纸的外框线上加上横,纵坐标的标记。。。

评分

参与人数 1三维币 +1 收起 理由
华氏911 + 1 积极参与

查看全部评分

发表于 2008-7-17 17:22:02 | 显示全部楼层 来自: 中国湖北宜昌
¢80上的那个表面粗燥1.6和那个跳动没意义!滚出来的东西就算你测量也测不到!更没有必要标注在齿顶圆上来!

评分

参与人数 1三维币 +5 收起 理由
华氏911 + 5 鼓励新人积极参与

查看全部评分

发表于 2008-7-17 19:23:13 | 显示全部楼层 来自: 中国北京
除以上说过的外,用在实际生产中缺两项内容: $ Y1 a' Q# s+ c) A; P! D
1、配对齿轮齿数7 C  G; g5 M5 R* u0 U  X7 Z
2、配对齿轮图号

评分

参与人数 1三维币 +3 收起 理由
华氏911 + 3 积极参与

查看全部评分

发表于 2008-7-18 01:13:36 | 显示全部楼层 来自: 中国辽宁朝阳
对齿轮不是很清楚1 O: @; y; U9 Z( b- o& L9 N
上面说的也都差不多了& t9 Q. D# [9 R$ m+ ~. X2 i) q
从我的角度补充几点) R) l  D+ k+ j" p2 q% V
1、键槽好像应该有一个对称度要求9 v$ \: U) m) g: d8 A7 F) e5 z: }* v
2、上面和下面都要求对A基准的垂直要求,但是下面有粗糙度1.6要求,上面是不是也应该加一个9 L, f8 [% r+ Z- m: c+ ]1 f
3、分度园也需要粗糙度要求?

评分

参与人数 1三维币 +3 收起 理由
华氏911 + 3 积极参与

查看全部评分

发表于 2008-7-20 00:10:10 | 显示全部楼层 来自: 中国黑龙江佳木斯
最大的问题就是"全跳动问题",通常是标齿轮的三个公差等级!
发表于 2008-7-20 12:34:07 | 显示全部楼层 来自: 中国江苏常州
我的看法:
6 u% o2 r' S( H4 v) F第一上下表面都是垂直度0.03,这个表面粗糙度确实一个是1.6,一个是6.3
- N( [+ N6 H8 C5 B如果6.3可以为什么下面的要1.6?
1 r+ k8 k) _  m* d, s' l$ k% j第二:下面的平面的1.6其实很难加工(它的基准是中间的轴线)4 W) [+ e2 K6 D: Z1 ]6 `$ d
第三:中间的32孔的1.6没有意义,键连接为什么要1.6?
, B' o0 m: _' q1 F, s第四:齿顶圆的1.6也没有什么意义,如果要磨齿轮,也不磨齿顶圆% L8 x& c# `* l7 e
第五:35.3的尺寸是必须给出公差的,因为有位置度的要求,工装夹具必须以它为基准,键槽也是必须给出位置要求

评分

参与人数 1三维币 +3 收起 理由
华氏911 + 3 积极参与

查看全部评分

发表回复
您需要登录后才可以回帖 登录 | 注册

本版积分规则


Licensed Copyright © 2016-2020 http://www.3dportal.cn/ All Rights Reserved 京 ICP备13008828号

小黑屋|手机版|Archiver|三维网 ( 京ICP备2023026364号-1 )

快速回复 返回顶部 返回列表