QQ登录

只需一步,快速开始

登录 | 注册 | 找回密码

三维网

 找回密码
 注册

QQ登录

只需一步,快速开始

展开

通知     

查看: 7725|回复: 61
收起左侧

[求助] 液压回路的试车问题

[复制链接]
发表于 2008-7-7 22:08:42 | 显示全部楼层 |阅读模式 来自: 中国江西九江

马上注册,结识高手,享用更多资源,轻松玩转三维网社区。

您需要 登录 才可以下载或查看,没有帐号?注册

x
请教各位:7 j. J- N$ t) b3 x. [
今天在试车过程中,老是不能用液压锁保压,请大家指点啊.5 b+ i: w' w8 i  C* H1 a( {
很急啊.星期三钢院的人要过来A检了,可系统还未试成功..心头慌呀 :L
1.jpg
2.jpg
3.jpg
4.jpg
5.jpg
6.jpg
 楼主| 发表于 2008-7-7 22:12:56 | 显示全部楼层 来自: 中国江西九江
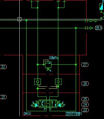
这是原理图,
( O; J7 P8 ?/ `  S$ ?* _主要在A口的28MPa溢流阀上的问题,试的时候总不能锁死压力,压力会往下掉,很快的+ o1 `3 H; _. ?2 J6 p
是不是不能在液压锁后面加溢流阀呢?2 ~9 c0 ?/ ?3 P2 M2 p* j6 X) V( }9 Q
同行们有没有遇到过类似的情况
7.jpg

转运小车液压系统原理图-连退系统.rar

213.45 KB, 下载次数: 66

 楼主| 发表于 2008-7-7 22:15:56 | 显示全部楼层 来自: 中国江西九江
是不是这样的设计有问题?还是可以.因为液压锁上来是溢流阀限定了压力,溢流阀是否会锁不死,造成液压锁也没作用了..
9.jpg
发表于 2008-7-7 22:21:15 | 显示全部楼层 来自: 中国湖南长沙
不能选择滑阀式溢流阀,否则泄露严重,不能保压

评分

参与人数 1三维币 +1 收起 理由
晨砂 + 1 技术讨论

查看全部评分

 楼主| 发表于 2008-7-7 22:26:54 | 显示全部楼层 来自: 中国江西九江
原帖由 fisherliu 于 2008-7-7 22:21 发表 http://www.3dportal.cn/discuz/images/common/back.gif8 o/ \, G- K% `- Z2 i
不能选择滑阀式溢流阀,否则泄露严重,不能保压
+ |( N8 M( C* D( H/ |& R. ?3 R5 ?2 s+ `
是上海力新的ZBD10VA2-30/31.5叠加式溢流阀# D: w2 I$ d7 {
难道有什么问题吗?
1.jpg
 楼主| 发表于 2008-7-7 22:29:57 | 显示全部楼层 来自: 中国江西九江
原帖由 fisherliu 于 2008-7-7 22:21 发表 http://www.3dportal.cn/discuz/images/common/back.gif; `; T7 C8 `" H8 Z; M
不能选择滑阀式溢流阀,否则泄露严重,不能保压
* n+ M% T2 \( u( }. J
请问:你有实际的经验吗?我是说这个阀芯的类型的..
) v+ T: \" U. g4 V! B谢谢啊
发表于 2008-7-7 23:52:18 | 显示全部楼层 来自: 中国湖北武汉
将叠加式溢流阀去掉试一下,就知道是否与溢流阀有关,/ _+ U3 p8 ]% @4 L" ?3 v+ y
问一下,电机与泵之间的通油管方盒是什么? 是利用电机旋转的风冷吗,不象阿,散热孔小阿

评分

参与人数 1三维币 +2 收起 理由
晨砂 + 2 技术讨论

查看全部评分

发表于 2008-7-8 06:59:04 | 显示全部楼层 来自: 中国上海
压力阀放在液控单向阀的上面去吧。很有可能是溢流阀的原因。不过不排除液控单向阀质量问题。液控单向阀不保压是个非常常见的问题。也可以换液控单向阀试试

评分

参与人数 1三维币 +2 收起 理由
晨砂 + 2 技术讨论

查看全部评分

发表于 2008-7-8 07:04:04 | 显示全部楼层 来自: 中国江苏无锡
我建议您选用ZDBD 10A-L1X/31.5试一试,如果好的话,能发个消息告诉我吗?
发表于 2008-7-8 08:32:10 | 显示全部楼层 来自: 中国河北沧州
可能是你的比例阀导致液压琐关不死,可以查一查比例阀导致的背压以及液压锁的面积比

评分

参与人数 1三维币 +2 收起 理由
晨砂 + 2 技术讨论

查看全部评分

发表于 2008-7-8 09:00:08 | 显示全部楼层 来自: 中国甘肃金昌
从原理图上看没有问题,再看关键阀的选择上有无不合理的匹配,接着用排除法逐一检验关键阀的质量好坏。遇事不要慌,要相信自己。

评分

参与人数 1三维币 +2 收起 理由
晨砂 + 2 技术讨论

查看全部评分

发表于 2008-7-8 09:12:06 | 显示全部楼层 来自: 中国北京
看看自流井啊 呵呵 个人意见将叠加式溢流阀和液压锁换位置(或者不用,因为那毕竟只起到保险丝的作用啊),然后再试车看看
  e3 o  N5 s, o$ Mktr的联轴器怎么长得那个样子啊 还是另有玄机? 以前用过液压马达驱动的风冷 不知和你的是否有些类似啊
" H. I# e$ Y, M# p" N: R4 h原理图中11、12那一路是干什么用的啊 清洗油路? 不理解请指教啊

评分

参与人数 1三维币 +2 收起 理由
晨砂 + 2 技术讨论

查看全部评分

发表于 2008-7-8 09:25:52 | 显示全部楼层 来自: 中国河北唐山
楼主所说的无法保压是什么情况下产生的,依据图纸的分析:系统只有在小车在停止时处于卸荷状态,停止后小车自动下降,建议检查油缸是否存在内泄,如无可以将27溢流阀压力提高。希望和老兄多多联系QQ:33259231

评分

参与人数 1三维币 +3 收起 理由
晨砂 + 3 技术讨论

查看全部评分

发表于 2008-7-8 09:38:19 | 显示全部楼层 来自: 中国浙江宁波
赞同10#的看法,可以换个普通电磁阀看看,以便排除是否由比例电磁阀在保压时,阀芯没有在中位,液压锁背压大引起液压锁不能保压

评分

参与人数 1三维币 +2 收起 理由
晨砂 + 2 技术讨论

查看全部评分

发表于 2008-7-8 11:06:16 | 显示全部楼层 来自: 中国河南郑州
设计时是可以在液压锁后加溢流阀进行二次限压的;如果是缸的速度太快,应注意油缸的缓冲,可能停止时,冲击力引起溢流阀泄荷,而引起下行;如果是长时间停止时液压锁锁不住,就是液压锁的问题,管路回油的背压也可能引起液压锁封闭不严,引起下行,需要认真分析。

评分

参与人数 1三维币 +3 收起 理由
晨砂 + 3 技术讨论

查看全部评分

 楼主| 发表于 2008-7-8 22:08:03 | 显示全部楼层 来自: 中国广东
原帖由 奥凯 于 2008-7-7 23:52 发表 http://www.3dportal.cn/discuz/images/common/back.gif
) _3 l% F5 s4 r4 P; \将叠加式溢流阀去掉试一下,就知道是否与溢流阀有关,
3 H. A( v9 d7 u& E( y" Y* M2 ~问一下,电机与泵之间的通油管方盒是什么? 是利用电机旋转的风冷吗,不象阿,散热孔小阿

6 }' d8 R7 v  N8 _* G0 {试过了,去掉溢流阀后就行了, u; b+ E  y2 P( H
可是问题是为什么呢?
0 U1 d# k9 E2 e3 B6 Q8 v6 e是风冷器
 楼主| 发表于 2008-7-8 22:08:44 | 显示全部楼层 来自: 中国广东
原帖由 46792974 于 2008-7-8 06:59 发表 http://www.3dportal.cn/discuz/images/common/back.gif: C8 d! p& f4 L4 R% }& T6 w. a
压力阀放在液控单向阀的上面去吧。很有可能是溢流阀的原因。不过不排除液控单向阀质量问题。液控单向阀不保压是个非常常见的问题。也可以换液控单向阀试试
$ c) q# f/ \% y! L  p% n! J" f
就是啊,液压锁没问题。试过了的
 楼主| 发表于 2008-7-8 22:09:22 | 显示全部楼层 来自: 中国广东
原帖由 ZJLO 于 2008-7-8 07:04 发表 http://www.3dportal.cn/discuz/images/common/back.gif
1 {* A: q: z* g% y9 V) V我建议您选用ZDBD 10A-L1X/31.5试一试,如果好的话,能发个消息告诉我吗?

# v8 z( W2 o. a, T9 j- I/ Z你好,也不行啊,换了华德的31。5MP的试也不行
 楼主| 发表于 2008-7-8 22:10:00 | 显示全部楼层 来自: 中国广东
原帖由 david20078 于 2008-7-8 08:32 发表 http://www.3dportal.cn/discuz/images/common/back.gif7 y3 o; t  x( T4 C
可能是你的比例阀导致液压琐关不死,可以查一查比例阀导致的背压以及液压锁的面积比

5 H  W7 s( L6 n  G没有用比例阀,试车时把比例阀换成了普通阀用的
 楼主| 发表于 2008-7-8 22:10:50 | 显示全部楼层 来自: 中国广东
原帖由 zcc0319 于 2008-7-8 09:00 发表 http://www.3dportal.cn/discuz/images/common/back.gif) t3 p7 i3 u' F( }1 |$ ^
从原理图上看没有问题,再看关键阀的选择上有无不合理的匹配,接着用排除法逐一检验关键阀的质量好坏。遇事不要慌,要相信自己。

' g: E  E1 T* xYES,我没有慌啊。
1 H4 |$ C. a( h+ a9 ^1 k我从每一阀的牵连都考虑了的
 楼主| 发表于 2008-7-8 22:13:04 | 显示全部楼层 来自: 中国广东
原帖由 zuozuo520 于 2008-7-8 09:12 发表 http://www.3dportal.cn/discuz/images/common/back.gif
' l' {0 \& S* Q看看自流井啊 呵呵 个人意见将叠加式溢流阀和液压锁换位置(或者不用,因为那毕竟只起到保险丝的作用啊),然后再试车看看6 ^3 D/ z1 q6 Y/ X; e" F
ktr的联轴器怎么长得那个样子啊 还是另有玄机? 以前用过液压马达驱动的风冷 不知和你的是 ...
, w0 s- R3 R" d, V
呵呵,换了没有用啊,这个也想到了,试了的
+ Q* k3 b; o. D  e6 `, n7 W' N是KIR的风冷
9 b0 w4 c% p& E( P7 Y
! h! S; h# s/ j8 [6 W0 |, C另一路是两能级压力啊
5 v! O! q: D; g/ X$ ^1为6MP
0 R! q5 E3 j, K: Y5 ]* C2为27MP啊
 楼主| 发表于 2008-7-8 22:15:19 | 显示全部楼层 来自: 中国广东
原帖由 fnwwxl 于 2008-7-8 09:25 发表 http://www.3dportal.cn/discuz/images/common/back.gif
' p0 K; w1 R) i. ], m楼主所说的无法保压是什么情况下产生的,依据图纸的分析:系统只有在小车在停止时处于卸荷状态,停止后小车自动下降,建议检查油缸是否存在内泄,如无可以将27溢流阀压力提高。希望和老兄多多联系QQ:33259231

$ n% R: I9 l( m油缸没问题,检查过了6 @" U1 ^5 M( w0 b( L$ W
溢流阀锁死后也不行。' m- y5 X" x% ~: T" d+ I5 v
& r! }, U+ c# m# [8 N/ }# G
呵呵,,已加你了
 楼主| 发表于 2008-7-8 22:17:16 | 显示全部楼层 来自: 中国广东
原帖由 wxg0490 于 2008-7-8 09:38 发表 http://www.3dportal.cn/discuz/images/common/back.gif
- G0 j; j4 b, e9 m! [: Z赞同10#的看法,可以换个普通电磁阀看看,以便排除是否由比例电磁阀在保压时,阀芯没有在中位,液压锁背压大引起液压锁不能保压

9 {& }+ S: u+ ]2 U+ }* C0 E! j2 a5 f8 V已换过了,还是不行: z# H: |: J, n8 k# T
感谢。
 楼主| 发表于 2008-7-8 22:22:57 | 显示全部楼层 来自: 中国广东
原帖由 张红军 于 2008-7-8 11:06 发表 http://www.3dportal.cn/discuz/images/common/back.gif
! h% ]9 ]1 Z  _' U+ d/ X1 k设计时是可以在液压锁后加溢流阀进行二次限压的;如果是缸的速度太快,应注意油缸的缓冲,可能停止时,冲击力引起溢流阀泄荷,而引起下行;如果是长时间停止时液压锁锁不住,就是液压锁的问题,管路回油的背压也可能 ...
. I7 w7 P3 ^; p& F8 s) }+ K
是的,这几种可能都存在,但基本上一一排除了的
1 o- Q* i+ _. r谢谢你的分享6 X" n  S* T; J3 k5 F) X# a
初步怀疑是溢流阀的问题。
发表于 2008-7-8 22:26:42 | 显示全部楼层 来自: 中国安徽合肥
阀块油道打错了。
发表回复
您需要登录后才可以回帖 登录 | 注册

本版积分规则


Licensed Copyright © 2016-2020 http://www.3dportal.cn/ All Rights Reserved 京 ICP备13008828号

小黑屋|手机版|Archiver|三维网 ( 京ICP备2023026364号-1 )

快速回复 返回顶部 返回列表