QQ登录

只需一步,快速开始

登录 | 注册 | 找回密码

三维网

 找回密码
 注册

QQ登录

只需一步,快速开始

展开

通知     

查看: 3229|回复: 7
收起左侧

[讨论] 看看这个链式标注样式是怎么做的

[复制链接]
发表于 2008-6-9 15:50:29 | 显示全部楼层 |阅读模式 来自: 中国广东深圳

马上注册,结识高手,享用更多资源,轻松玩转三维网社区。

您需要 登录 才可以下载或查看,没有帐号?注册

x
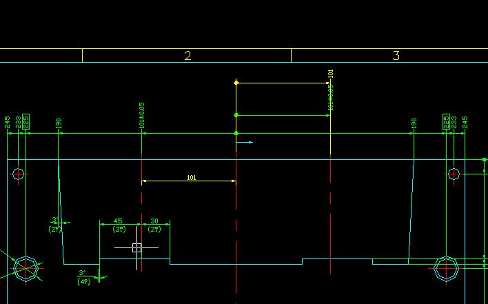
这是客户传来的图纸,他们用了一个链式标注样式,比坐标标注形象,我们却标不出,而且一移动尺寸,尺寸数字的方向就会发旋转90度
2 g$ L: L4 \7 O" I。真郁闷啦。
链式标注.jpg

链式标注.rar

90.49 KB, 下载次数: 14

头像被屏蔽
发表于 2008-6-9 16:07:26 | 显示全部楼层 来自: 中国浙江杭州
提示: 作者被禁止或删除 内容自动屏蔽
发表于 2008-6-9 16:22:38 | 显示全部楼层 来自: 中国辽宁营口
你的文件里明明有这种标注样式啊,即使是自己不会,看看原来的样式是怎么设置的不就行了吗?) j, t+ K% Y0 e% p" i2 A/ @
/ B9 M) d8 q2 T3 E1 T
Untitled-1.gif * ~, T. V! y, x) Z5 ]0 F

  a2 F, j' Z! h2 X( g5 J( z Untitled-2.gif , p! x+ p6 F' Z6 r' R$ E
# r0 c( K; x) H2 {" H+ S: p6 S+ n
[ 本帖最后由 woaishuijia 于 2008-6-9 16:29 编辑 ]
 楼主| 发表于 2008-6-10 22:58:33 | 显示全部楼层 来自: 中国广东深圳
是呀,我只要一标数字就会旋转90度呀。请版主标注一下试试,就知道了是怎么回事了。
发表于 2008-6-11 00:48:25 | 显示全部楼层 来自: 中国台湾
注意圖上並非如你所标注的有雙箭頭,改用基準标注試試!
# }, I4 i3 E; y% ?! f  i$ l0 G  [* _2 L% j% k
[ 本帖最后由 jeam 于 2008-6-11 00:50 编辑 ]
Noname.jpg
发表于 2008-6-11 10:35:38 | 显示全部楼层 来自: 中国辽宁营口

回复 4# 的帖子

可以修改现有的标注样式:在“标注样式管理器”的“调整”选项卡上“优化”框架内,取消选择“手动放置文字”。或者不修改标注样式,在标注完成后把它们都选中,右键菜单“标注文字位置”点“默认位置”。
 楼主| 发表于 2008-6-11 15:44:21 | 显示全部楼层 来自: 中国广东深圳
谢谢版主,问题已经解决,又学了一招
发表于 2010-11-11 09:51:15 | 显示全部楼层 来自: 中国浙江宁波
呵呵 :) :)
发表回复
您需要登录后才可以回帖 登录 | 注册

本版积分规则


Licensed Copyright © 2016-2020 http://www.3dportal.cn/ All Rights Reserved 京 ICP备13008828号

小黑屋|手机版|Archiver|三维网 ( 京ICP备2023026364号-1 )

快速回复 返回顶部 返回列表