QQ登录

只需一步,快速开始

登录 | 注册 | 找回密码

三维网

 找回密码
 注册

QQ登录

只需一步,快速开始

展开

通知     

全站
10天前
查看: 2898|回复: 11
收起左侧

[讨论] 请结构方面的高手出良策(附图)

[复制链接]
发表于 2008-5-14 10:50:08 | 显示全部楼层 |阅读模式 来自: 中国重庆

马上注册,结识高手,享用更多资源,轻松玩转三维网社区。

您需要 登录 才可以下载或查看,没有帐号?注册

x
本人欲提高产品性能,但由于存在加工误差,为了便于批量生产及装配,现需作如下方面改动,没有好的机构实现,想还请大家帮帮忙,提供良策!!!
% g) E( U4 M  ^  k$ r) N
$ t0 u6 X3 J* V; W6 t1 B" w感激不尽!! d. b# t6 J( u( b7 t
3 N" {4 C# L7 A5 `8 J1 H
要求:1.由于阀球可以旋转90度,与阀座均为金属硬接触,密封效果好,但由于存在加工误差,不得不将阀座做成可以在圆周方向活动,以实现完全接触。但此方法太活,不利于批量,不利于装配。" H/ B# B) ?+ @5 B5 o' f2 ^# y4 w8 k

% x* U3 h. V- g3 @/ N, x2.想请大家给些意见,让阀座在-X轴方向可以轴向移动,但能保证密封(压紧)效果:或是让阀座(阀球)能起补偿压紧作用........0 Q; j% S9 L, P' k, @: X
此四个零件均可以改动,不受外观,零件增减限制。
100tulunhua.jpg
100tulunhua00.jpg
发表于 2008-5-14 12:57:47 | 显示全部楼层 来自: 中国江苏南京
可否给阀的修面后边装一个弹簧?这样接触好一些,改刚性为柔性。

评分

参与人数 1三维币 +2 收起 理由
plc + 2 整理帖子,给您带来不便,敬请谅解。

查看全部评分

 楼主| 发表于 2008-5-14 13:59:40 | 显示全部楼层 来自: 中国重庆
原帖由 kevin8hu 于 2008-5-14 12:57 发表 http://www.3dportal.cn/discuz/images/common/back.gif- I2 X4 s) H+ h* c
可否给阀的修面后边装一个弹簧?这样接触好一些,改刚性为柔性。
3 A5 H8 Z: D2 ~3 n1 y( B2 y

9 G3 P/ T* ?- L3 g; h* i, v* J% j0 I6 @0 o+ v. l2 Z! |
kevin8hu 4 S2 U% H5 M' j. {" Q& {' G

" A9 U  e$ x6 t0 V# o汗,情况是这样的,如果加弹簧,但外面的压圈压在阀环上,阀环被紧压在阀体上,已被压死,弹簧不能起补偿作用,实际上弹簧没有起到作用呀!!!!
00.jpg
发表于 2008-5-14 17:45:39 | 显示全部楼层 来自: 中国上海
是否可以考虑在接触面处增加弹性材料的密封胶圈5 ]  V' l- D, l5 s8 E, ^
( h! q' V; F* R5 m4 l) @
看起来不会高度旋转,胶圈应该不易磨损

评分

参与人数 1三维币 +2 收起 理由
plc + 2 整理帖子,给您带来不便,敬请谅解。

查看全部评分

发表于 2008-5-15 11:28:57 | 显示全部楼层 来自: 中国黑龙江哈尔滨
感觉应该做单侧装入两侧密封,通过球面自动找正位置(球面阀球),这样转动杆和阀球的加工精度和装配工艺都会简单的多。
 楼主| 发表于 2008-5-15 13:09:14 | 显示全部楼层 来自: 中国重庆
原帖由 asm52 于 2008-5-15 11:28 发表 http://www.3dportal.cn/discuz/images/common/back.gif
  q1 r, Y: Z9 l$ H7 m6 ~, U8 ^感觉应该做单侧装入两侧密封,通过球面自动找正位置(球面阀球),这样转动杆和阀球的加工精度和装配工艺都会简单的多。

: ^( @' e% H, E: u% t2 ?
5 p  z( _2 ^0 q6 l: a$ S' t$ U, J" k1 D, @( J1 T5 p6 l* M
asm52 9 w, b& [4 T' O, Z7 `8 z. @
* L, e8 D# u4 c3 J  q
感谢老兄呀,确实是球面自动找正,以调整阀环(蓝色零件)来实现的,不过你所说的,单侧装入,两侧密封是什么意思呀,没有搞懂,你能画一下简单的示意图么?
发表于 2008-5-16 16:54:33 | 显示全部楼层 来自: 中国天津
感觉不应该改称软性碰撞
发表于 2008-5-17 14:07:31 | 显示全部楼层 来自: 中国福建泉州
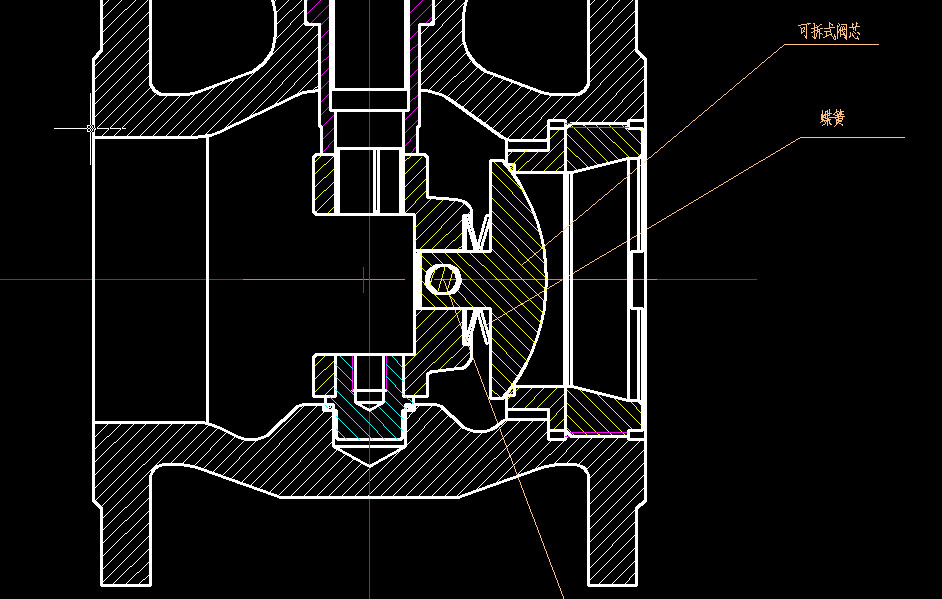
中间的阀球最好设计成分体式,即阀球与中间选择部件分开,其间加装压簧,使阀球与阀座能够完全接触,增加密封性。
发表于 2008-5-24 14:22:06 | 显示全部楼层 来自: 中国广东广州
汗,没有想出办法。
 楼主| 发表于 2008-5-28 11:54:11 | 显示全部楼层 来自: 中国重庆
原帖由 hbh0606 于 2008-5-17 14:07 发表 http://www.3dportal.cn/discuz/images/common/back.gif1 l; V& J0 {2 j% ^2 s" y8 z
中间的阀球最好设计成分体式,即阀球与中间选择部件分开,其间加装压簧,使阀球与阀座能够完全接触,增加密封性。

" |# Y0 {7 }% v/ h/ p
5 B0 T; L& B; Y- C2 Z
% Z' z9 v; @% M1 v. |; G) q  y  Rhbh0606
% T8 p3 v  a8 N$ O
; x9 K/ x% e' U% s- l5 e' V9 Y  v有点意思,不过采用压簧的话,感觉在高温条件情况下(450度以下),不知能不能确保弹簧的使用寿命及可靠性呢?
未标题-1 拷贝.jpg
 楼主| 发表于 2008-6-2 09:39:14 | 显示全部楼层 来自: 中国重庆
我不知道我说清楚没有,主要是想:
# z0 S- \* Z0 f1 n( b1.在阀座的轴向方向上能移动1mm左右,达到进行轴向位移补偿。
/ T/ c' B+ X7 {4 Y2.能够降低加工难度,改善装配难度,以便批量生产,因为之前出现过阀座与阀体,阀芯因加工误差,只好采取配车阀座的情况!+ Z' Y  v- ?0 V+ P4 n
. ?. a3 c1 }; g& A
其示意图如下:

关闭位置

关闭位置

打开位置

打开位置
头像被屏蔽
发表于 2008-6-2 10:19:15 | 显示全部楼层 来自: 中国上海
提示: 作者被禁止或删除 内容自动屏蔽
发表回复
您需要登录后才可以回帖 登录 | 注册

本版积分规则


Licensed Copyright © 2016-2020 http://www.3dportal.cn/ All Rights Reserved 京 ICP备13008828号

小黑屋|手机版|Archiver|三维网 ( 京ICP备2023026364号-1 )

快速回复 返回顶部 返回列表