QQ登录

只需一步,快速开始

登录 | 注册 | 找回密码

三维网

 找回密码
 注册

QQ登录

只需一步,快速开始

展开

通知     

全站
11天前
查看: 4864|回复: 41
收起左侧

[求助] 求解一个液压系统图

[复制链接]
发表于 2008-5-13 22:03:42 | 显示全部楼层 |阅读模式 来自: 中国福建福州

马上注册,结识高手,享用更多资源,轻松玩转三维网社区。

您需要 登录 才可以下载或查看,没有帐号?注册

x
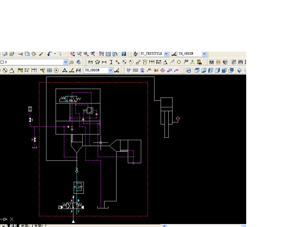
请问一下图中各元件都 是什么插装阀,其油缸升降时各阀的先后动作是怎么样的?
8 `  _  x4 S6 |3 R; ]* ?" q$ I) P
  X! |- v2 r8 i7 f; a
' E( @, s" y7 I另外 要是在回路近似完全与油箱接通的情况下泵是不是会在没有负载下吸油跟不上而产生噪音影响泵的寿命?(插装阀接通的油管直径有80)
未命名.JPG
 楼主| 发表于 2008-5-14 18:15:38 | 显示全部楼层 来自: 中国福建福州
这个但愿能看清楚点吧
未命名.JPG
发表于 2008-5-19 17:39:46 | 显示全部楼层 来自: 中国上海
好像是电磁溢流阀。一个高压,一个先导阀调定压力(低压)。那个先导阀看起来好别扭。弹簧腔的油朝哪儿引呢?只能猜猜看了
发表于 2008-5-19 21:52:43 | 显示全部楼层 来自: 中国广东东莞

回复 2# 的帖子

这张图还是看不清楚,
发表于 2008-5-20 10:15:55 | 显示全部楼层 来自: 中国北京
活塞缸 怎么回程啊? 插装阀一个方向一个溢流? 不懂啊
 楼主| 发表于 2008-5-20 17:51:17 | 显示全部楼层 来自: 中国福建福州
图肯定是没有错的我重新对过了,控制管路和工作管路都是正确的,缸是靠自重下降了,这引起阀类都是REXROTH的,
: Q5 J1 L- X0 q* D4 U! a; T; n- i+ j( R1 ^
请高手赐教了
发表于 2008-5-21 12:55:58 | 显示全部楼层 来自: 中国四川自贡
真的想看清楚点。。。能完整上传吗?
 楼主| 发表于 2008-5-21 20:11:55 | 显示全部楼层 来自: 中国福建福州
好吧,再传一次了

液压系统图.rar

11.79 KB, 下载次数: 26

发表于 2008-5-21 23:15:18 | 显示全部楼层 来自: 中国安徽蚌埠

回复 8# 的帖子

这次看清楚了,先回答您的第一个问题:中间那个是压力插装阀,右边的为可调节的流量插装阀。电磁球阀的得电与否可进行油缸伸出时的旁路节流调速。8 c5 i: @- T$ Y- h
有二点疑问请楼主解释:一、左上那个符号是蓄能器吗?二、既然回路用插装阀那么为什么还要装单向节流阀?这点有些不好理解。请说说

评分

参与人数 1三维币 +5 收起 理由
9619 + 5 应助

查看全部评分

 楼主| 发表于 2008-5-22 19:51:22 | 显示全部楼层 来自: 中国福建福州
1、应该不是蓄能器吧,左下那个球阀是应急时用的,左上那个符号我就不明白了这是它的注释Pressure Transmitter是不是压力传感器呢?具体什么还得请教你了& m( G$ R) }, {* j9 x
0 o0 R8 X' R+ D
2、单向节流阀我也只能理解为上升时用了 右边的可调节的流量插装阀是用手动来控制的吗,怎么理解它的外控口接到压力插装阀呢?4 g) ^1 m$ b# U  W/ \# Z. u
) K# X8 z" b7 \) z
3、中间那个是压力插装阀是上下三个阀组成一体的吧,主要在液压缸的降落时起到稳定性的作用,可以这样理解吗?那个体是怎么个工况原理呢,溢流阀在什么时候启闭呢?+ K! {3 L6 e8 ]0 x

( O7 d- L: [  `* ?5 F期待回复!
 楼主| 发表于 2008-5-22 19:57:04 | 显示全部楼层 来自: 中国福建福州
还有,我其实一直很想知道,当液压阀的控制管路与油箱连通时其回油管路也是和油箱连通的,那在工作当中控制管路中的油路是什么状态呢?
发表于 2008-5-22 20:01:13 | 显示全部楼层 来自: 中国安徽马鞍山
看图不是蓄能器..
, n! m: J6 A* Y3 b但是分析其原理..应该又是蓄能器..LZ解答
发表于 2008-5-23 08:34:22 | 显示全部楼层 来自: 中国安徽蚌埠

回复 10# 的帖子

1、如您所述是压力传感器,很可能就是控制电磁球阀得失电的(这个看电路控制图可知)。得电时由叠加阀组中的减压阀与压力插装阀控制回路压力,并可实现旁路节流调速。失电时由系统压力阀控制。
5 T, `. I3 j( t" f# Q5 u' B% Q. j2、单向节流阀只能在上升时起到作用,我的意思是单向节流阀额定流量较小,与插装阀配套使用有些不符合设计理念,除非你的油缸要求伸出是速度不高,而需要快速回程。" n# t$ D! f- X3 j& x9 n+ j
3、是组在一起的叠加阀,其实这一整套元件除了单向节流阀都是为油缸回程设计的。没错,您可以这样理解!电磁球阀的得电压力阀的启闭由减压阀的工况决定,减压阀的启闭由节流插装阀节流压差决定。而电磁球阀一旦失电,油缸将无法回程,除非油缸泄油了 : |& Z$ q& C7 ~# U; a5 v
综上所述:此回路的作用是使油缸慢速前行,而快速稳定回程,回程时要求有重载,空载油缸保持原位。

评分

参与人数 1三维币 +8 收起 理由
9619 + 8 详细应助。

查看全部评分

发表于 2008-5-23 08:36:18 | 显示全部楼层 来自: 中国安徽蚌埠

回复 11# 的帖子

这段话的意思没看明白
发表于 2008-5-23 08:55:21 | 显示全部楼层 来自: 中国四川自贡
原帖由 yflcgj 于 2008-5-22 19:57 发表 http://www.3dportal.cn/discuz/images/common/back.gif( Y4 R. b& U$ p* v* X
还有,我其实一直很想知道,当液压阀的控制管路与油箱连通时其回油管路也是和油箱连通的,那在工作当中控制管路中的油路是什么状态呢?

% Q2 F0 C4 I; T8 S肯定是泄载了。。这个油路真的不明白插装阀组是旁路控制。能起到多大作用?

评分

参与人数 1三维币 +3 收起 理由
9619 + 3 应助

查看全部评分

 楼主| 发表于 2008-5-25 11:48:03 | 显示全部楼层 来自: 中国福建福州
回复 14# 的帖子
$ I8 q( m/ @, ~+ s: P1 K( W+ i' H& e2 {7 a
就是说,当磁球阀得电时,插装阀在压差下推开,(下)工作油路回到油箱,缸下降,此时,插装阀(上)控制管路也是和油条连通的以保证压差使阀持续打开( H! M5 q6 ?0 P* K' o
  @* B" ^, x: A8 e( h
那么此段工作当中控制管路中的油路是什么状态呢?是很急促的吗不是时断时续的

评分

参与人数 1三维币 +2 收起 理由
9619 + 2 积极回复自己的帖子。

查看全部评分

发表于 2008-5-25 19:03:37 | 显示全部楼层 来自: 中国上海

是否可以这样等效?看不懂那个节流盖板了。

是否可以这样等效?看不懂那个节流盖板了。
未命名.JPG
发表于 2008-5-25 20:10:24 | 显示全部楼层 来自: 中国安徽蚌埠

回复 16# 的帖子

其实个人感觉此回路有一些不合理的地方,这也是其中一处。
5 n4 @/ f- @# ?0 L+ n8 @/ G/ _; e3 [9 r    压力插装阀的控制油路应通过节流口后直接回油箱,如图这样是通过流量阀再回油箱,这样流量阀前后有压差,如果减压阀与流量阀设置不当,此控制油路在流量阀压差的作用下可使减压阀关闭,那么压力阀也就打不开了。节流阀继续回油,减压阀再次开启,压力阀再次打开,油缸继续回程,因为回油时流量较大,所以转换频率比较高。如此反复就造成油缸回程时出现断继回落的现象。
发表于 2008-5-25 20:13:14 | 显示全部楼层 来自: 中国安徽蚌埠

回复 17# 的帖子

不可以,减压阀泄油被你给断了
发表于 2008-5-26 11:23:03 | 显示全部楼层 来自: 中国江苏无锡
18楼的说的没错,总觉得不是很合理啊。这用在什么场合的啊?
 楼主| 发表于 2008-5-26 22:03:36 | 显示全部楼层 来自: 中国福建福州
是老外的熔炼炉体,4 U6 A) p# v+ b

% g4 |" {1 K- v对于各位的回复,谢谢了
发表于 2008-5-27 06:43:29 | 显示全部楼层 来自: 中国上海

回复19楼

我把我的理解思路传一下注意三条被我改变颜色了的先导油路
0.JPG

评分

参与人数 1三维币 +5 收起 理由
柠檬咖啡 + 5 积极参与交流讨论!

查看全部评分

发表于 2008-5-27 07:05:58 | 显示全部楼层 来自: 中国上海

回复12楼的

要是蓄能器放在那个位置应该是给先导油路辅助供油的吧,应该有个单向阀防止油进入主油路吧。我觉得是传感器的可能性大。
发表于 2008-5-27 10:11:52 | 显示全部楼层 来自: 中国浙江杭州
我觉得17#的与原图其实是等效的
发表于 2008-5-27 10:17:28 | 显示全部楼层 来自: 中国浙江杭州
有一点没有看明白,这个减压阀是什么类型的,似乎比一般的复杂啊
发表回复
您需要登录后才可以回帖 登录 | 注册

本版积分规则


Licensed Copyright © 2016-2020 http://www.3dportal.cn/ All Rights Reserved 京 ICP备13008828号

小黑屋|手机版|Archiver|三维网 ( 京ICP备2023026364号-1 )

快速回复 返回顶部 返回列表