QQ登录

只需一步,快速开始

登录 | 注册 | 找回密码

三维网

 找回密码
 注册

QQ登录

只需一步,快速开始

展开

通知     

全站
10天前
查看: 1699|回复: 3
收起左侧

[求助] 拉伸件协作

[复制链接]
发表于 2008-4-28 21:43:36 | 显示全部楼层 |阅读模式 来自: 中国安徽安庆

马上注册,结识高手,享用更多资源,轻松玩转三维网社区。

您需要 登录 才可以下载或查看,没有帐号?注册

x
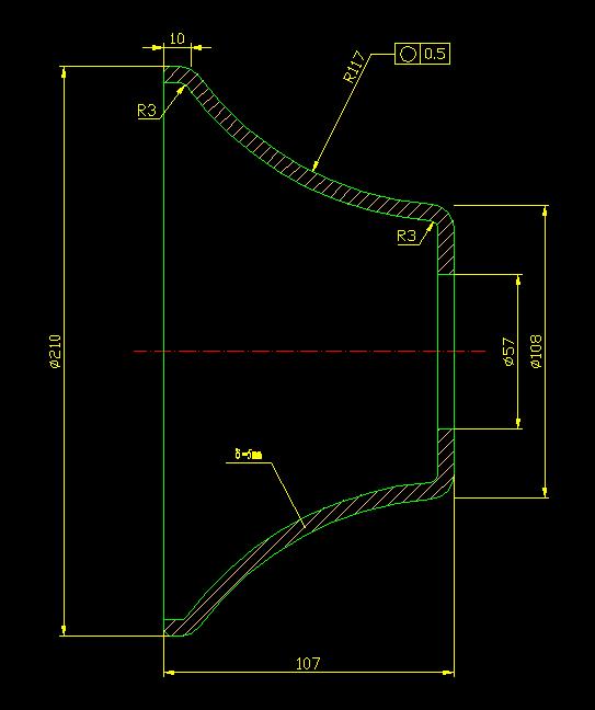
因生产需要,求外协加工,产品简图如下,材料为Q235-A,大家帮忙看看加工难度大不大,谢了!
QQ截图未命名.jpg
发表于 2008-5-16 16:28:00 | 显示全部楼层 来自: 中国江苏南通
材料为Q235-A,估计麻烦!!!
发表于 2008-5-17 09:14:39 | 显示全部楼层 来自: 中国山东威海
冲压(需要设计专用模具)
发表于 2009-9-1 12:56:36 | 显示全部楼层 来自: 中国浙江杭州
批量如果不大,可以简化一下外形组焊完成!
发表回复
您需要登录后才可以回帖 登录 | 注册

本版积分规则


Licensed Copyright © 2016-2020 http://www.3dportal.cn/ All Rights Reserved 京 ICP备13008828号

小黑屋|手机版|Archiver|三维网 ( 京ICP备2023026364号-1 )

快速回复 返回顶部 返回列表