QQ登录

只需一步,快速开始

登录 | 注册 | 找回密码

三维网

 找回密码
 注册

QQ登录

只需一步,快速开始

展开

通知     

全站
9天前
查看: 1795|回复: 2
收起左侧

[讨论] 刀片设计??

[复制链接]
发表于 2008-4-28 10:27:32 | 显示全部楼层 |阅读模式 来自: 中国广东肇庆

马上注册,结识高手,享用更多资源,轻松玩转三维网社区。

您需要 登录 才可以下载或查看,没有帐号?注册

x
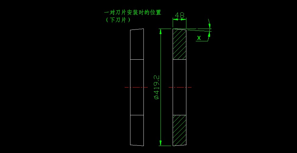
电解铜滚剪机刀片,斜角应该给多少度呢?% U) ~6 g0 t( Y6 R$ e
上下两对刀片斜角应该一样吗?6 [% z* n, N5 p; I0 ^: J" d  b
谢谢
下刀片.jpg
发表于 2008-4-28 21:12:06 | 显示全部楼层 来自: 中国山西太原
这样的滚剪机刀片斜角一般取8--12°就可以了,上下制成相对一样的斜角。斜角越大,越锋利,但使用周期越短。上、下滚剪刀片之间应留有间隙,板厚越大,间隙越大。

评分

参与人数 1三维币 +5 收起 理由
hero2006 + 5 应助

查看全部评分

发表于 2008-4-30 13:40:14 | 显示全部楼层 来自: 中国河北唐山
看了2楼的发言,很有启发
发表回复
您需要登录后才可以回帖 登录 | 注册

本版积分规则


Licensed Copyright © 2016-2020 http://www.3dportal.cn/ All Rights Reserved 京 ICP备13008828号

小黑屋|手机版|Archiver|三维网 ( 京ICP备2023026364号-1 )

快速回复 返回顶部 返回列表