QQ登录

只需一步,快速开始

登录 | 注册 | 找回密码

三维网

 找回密码
 注册

QQ登录

只需一步,快速开始

展开

通知     

查看: 3230|回复: 4
收起左侧

[已答复] 圆锥齿轮装配图该标注哪些内容

[复制链接]
发表于 2008-4-27 19:00:16 | 显示全部楼层 |阅读模式 来自: 中国四川成都

马上注册,结识高手,享用更多资源,轻松玩转三维网社区。

您需要 登录 才可以下载或查看,没有帐号?注册

x
圆锥齿轮装配图该标注哪些内容$ K. k; d+ G8 D2 O7 T9 m

7 I2 c2 Z5 f. \% _9 h2 ]我只知道它的配合精度要求高 但是不了解具体怎么画  谁能上传一张图学习一下  
  U& H0 R- h" f) w. E0 l( k" I, \6 u" _1 C2 `8 o6 e# c; f5 _
  谢谢!!
发表于 2008-4-27 19:51:38 | 显示全部楼层 来自: 中国广西玉林
圆锥齿轮装配配合精度要求高:先要确定配合公差有多大、如果产品是过盈配合、产品需要加热的、还要说明产品加热温度控制范围。
发表于 2010-2-8 15:34:24 | 显示全部楼层 来自: 中国广东广州
本帖最后由 TKG-09 于 2010-2-8 15:48 编辑
8 L2 ~. `' L2 _0 n* y6 \, z' l/ m! ^7 p- K# \  Q8 Y
回答滞留问题对提问者已经没有多少参考价值,但对其他有类似问题的可能有点意义,不妨提点建议。
- ^: }# b4 j- Q* C- F9 i$ ]/ S% f; `4 \( x! a" |
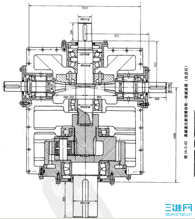
其实不仅是圆锥齿轮,其他装配也是一样。装配图一般只需标注各主要零(部)件的装配关系就可以了,不必太详细。
" i0 \9 {* N% s1 |7 V. p比如主要外形尺寸、轴与轴的中心距、轴承与轴和孔的配合关系、齿轮与轴的配合关系、主要零件在轴上的轴向位置、有时还包括齿轮的模数齿数等(这里只是举例,并不代表全部)。2 O. H6 K4 K2 v" h: L
对于初学者来说,可以多参考各种设计手册和已有的设计图纸,当你具有足够的经验后,一切都会自然了然于胸了!
00.png
01.png

机械设计手册 圆锥齿轮实例.pdf

1.89 MB, 下载次数: 14

评分

参与人数 1三维币 +4 收起 理由
天际孤帆 + 4 应助

查看全部评分

发表于 2010-2-25 08:56:42 | 显示全部楼层 来自: 中国江苏泰州
本帖最后由 poxiangzi 于 2010-2-25 09:13 编辑 1 x5 S8 N5 W2 b! F
( j6 U; V( ^3 ~( r  i
想问一下楼上,第一幅图中中间两个输出是减速,可以下端还有一个输出是干什么的,看上去有一个连接(?),后面是不是行星减速机构(外花键<中间轴>作为太阳轮输入、内齿圈固定,中间有多个行星轮作为输出),是不是这样的?没有看明白!
; M. b0 Y+ i* {, B
) t3 ~1 ?' z7 t: I2 Z另外楼主的问题,除了常规的尺寸、形位公差,一张参数表肯定是少不了的。
0.gif
发表于 2010-2-27 15:51:53 | 显示全部楼层 来自: 中国江苏泰州
还有一个问题,看了楼上的附件,有个疑问:为什么改进前是2级、我觉得是3级;改进后为什么说成1级、我觉得是2级,最终都用到了行星减速器,这个难道不算是1级吗?
发表回复
您需要登录后才可以回帖 登录 | 注册

本版积分规则


Licensed Copyright © 2016-2020 http://www.3dportal.cn/ All Rights Reserved 京 ICP备13008828号

小黑屋|手机版|Archiver|三维网 ( 京ICP备2023026364号-1 )

快速回复 返回顶部 返回列表