QQ登录

只需一步,快速开始

登录 | 注册 | 找回密码

三维网

 找回密码
 注册

QQ登录

只需一步,快速开始

展开

通知     

全站
10天前
查看: 4121|回复: 19
收起左侧

[求助] 油泵的出口处应该要有单向阀吧?

[复制链接]
发表于 2008-4-12 15:32:48 | 显示全部楼层 |阅读模式 来自: 中国浙江宁波

马上注册,结识高手,享用更多资源,轻松玩转三维网社区。

您需要 登录 才可以下载或查看,没有帐号?注册

x
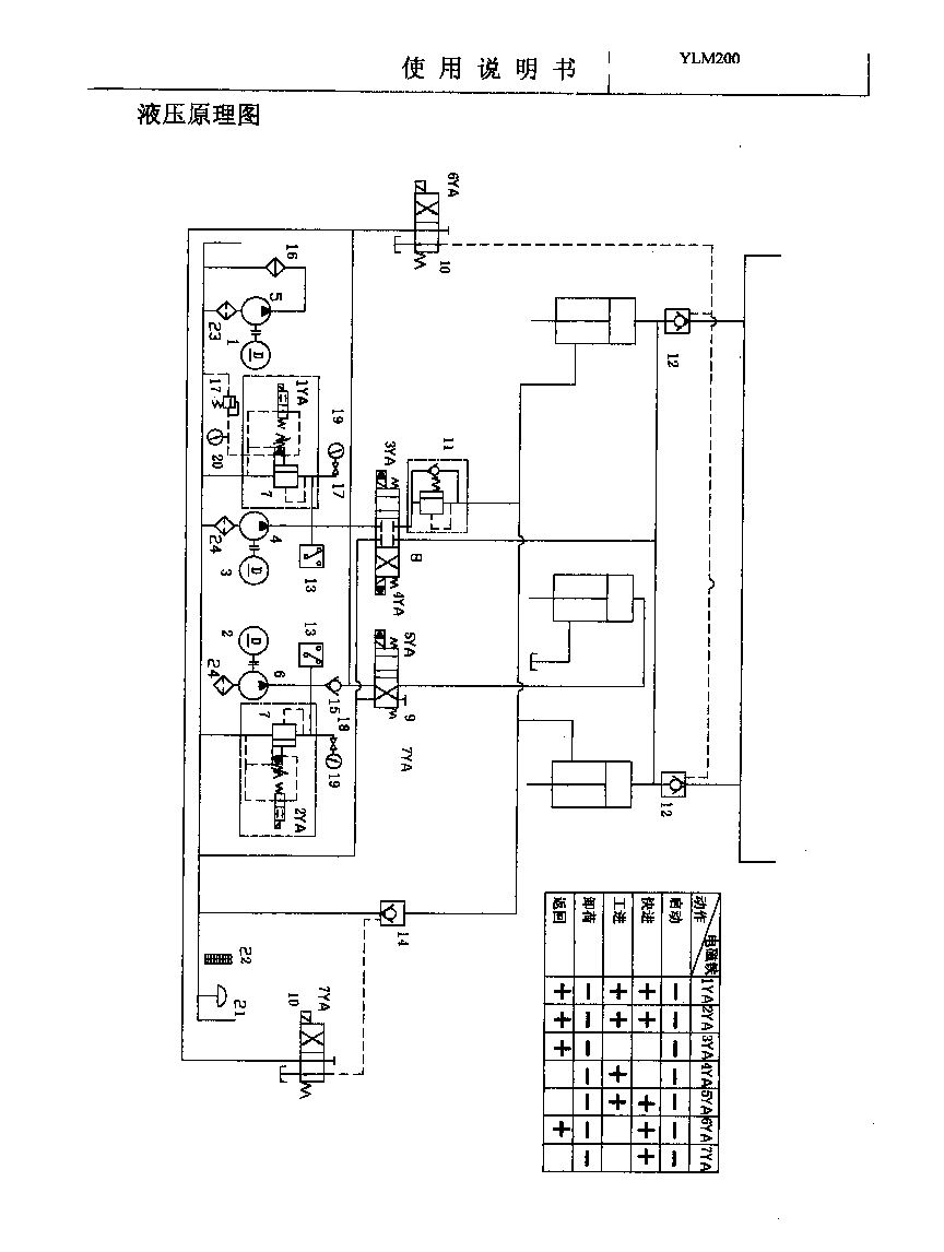
2台龙门压机,主、副泵的出口应该都要安装单向阀吧??主泵63MCY14-1B,副泵为齿轮泵。我这2台机器主泵63MCY14-1B出问题比较多,更换了几次泵了,要么是没有压力,要么是泵卡住了,拆开后滑靴磨损。大约1年需要更换一次主泵。我们用的是上高的泵、邵阳液压的泵,除了液压油不很干净导致磨损外,请问,还有别的原因吗?附液压图。

龙门200压机液压图

龙门200压机液压图

龙门400压机液压图

龙门400压机液压图
发表于 2008-4-12 18:06:57 | 显示全部楼层 来自: 中国北京
主、副泵的出口是都应该安装单向阀!对泵起保护作用
) a, o: G; `( {( H2 K& [9 C; x两个主泵出口的溢流阀出问题的可能性比较大

评分

参与人数 1三维币 +2 收起 理由
晨砂 + 2 应助!

查看全部评分

发表于 2008-4-12 18:28:59 | 显示全部楼层 来自: 中国湖南长沙
如果系统只有一个油泵供油,可不可以不用单向阀呢?
发表于 2008-4-13 21:02:59 | 显示全部楼层 来自: 中国山东济南
用上保险一点
发表于 2008-4-14 08:48:15 | 显示全部楼层 来自: 中国江苏徐州
一般可能造成停机后系统由于有其他动力源(装有其他泵、蓄能器或者受工作装置受外力)可能对泵产生回流压力的情况下泵出口都要装单向阀,以保护油泵。

评分

参与人数 1三维币 +2 收起 理由
晨砂 + 2 应助

查看全部评分

发表于 2008-4-14 09:10:50 | 显示全部楼层 来自: 中国河南郑州
油液不干净是主要原因,要加强控制
发表于 2008-4-14 09:23:48 | 显示全部楼层 来自: 中国江苏扬州
如果有另外的压力源,装吧。不然会出现你想不到的毛病,总结最好装一个
发表于 2008-4-16 19:57:41 | 显示全部楼层 来自: 中国安徽淮北
单向阀是应该要的,在系统中加蓄能器可以缓解这种情况,至少可以吸收部分冲击,延长一下泵的是寿命.
发表于 2008-4-17 17:36:47 | 显示全部楼层 来自: 中国山西临汾
一个完善的系统应该是加单向阀.
发表于 2008-4-18 09:30:45 | 显示全部楼层 来自: 中国河北唐山
建议楼主安装单向阀防止两个泵之间的高压油造成对泵的冲击使泵的工作阻力增大,楼主可以测量电机的电流观察是否无单向阀的泵的电机电流偏高。

评分

参与人数 1三维币 +2 收起 理由
晨砂 + 2 应助

查看全部评分

发表于 2008-4-18 10:41:02 | 显示全部楼层 来自: 中国广东佛山
你这个泵的寿命一年左右是正常的,国产的泵质量都不是那么好,系统方面条件好一点的,寿命就长一点.
 楼主| 发表于 2008-4-18 13:55:09 | 显示全部楼层 来自: 中国浙江宁波
谢谢诸位。11楼老兄说,1年正常,那么不晓得各位遇到的情况怎么样?我们兄弟工厂,他们相同的泵用了3年了,也是上高生产的。我就奇怪了。
发表于 2008-4-18 18:32:40 | 显示全部楼层 来自: 中国北京

回复 12# 的帖子

我觉得和用户的工况和维护也有很大的关系
- O0 Y( g$ D* e- R3 L& V9 l一般感觉国产的便宜,使用时不是特别小心注意灰尘赃物等,而拿国外的当宝贝$ c4 f) P* M) n& d
其次平时也不注意维护,不及时检测油液清洁度等) q0 ^% S7 _; b# G7 s
可能你兄弟工厂比较重视国产的泵
发表于 2008-4-18 20:26:43 | 显示全部楼层 来自: 中国云南楚雄彝族自治州
常规都应设才完善,不设我还没碰到。
 楼主| 发表于 2008-4-19 11:04:44 | 显示全部楼层 来自: 中国浙江宁波
原帖由 柠檬咖啡 于 2008-4-18 18:32 发表 http://www.3dportal.cn/discuz/images/common/back.gif
  S) u: e- i; {" M! z$ _我觉得和用户的工况和维护也有很大的关系
; A4 \( H! c8 D一般感觉国产的便宜,使用时不是特别小心注意灰尘赃物等,而拿国外的当宝贝
! @& O4 s2 H( N6 D* P# k0 \0 u. B其次平时也不注意维护,不及时检测油液清洁度等  |/ T) K4 ], X4 P4 v- I# D+ t
可能你兄弟工厂比较重视国产的泵
7 ^8 F$ a0 ~: s4 j% a" u8 F3 ^
我的这几台CY14-1B的泵滑靴、斜盘磨损,这个是什么原因呢,维护呢,也是应该,像您说的包括定期过滤液压油、清洗油箱、滤芯、定期更换液压油。我们这2台机器油的洁净度是不好,漏油多,一直解决不掉。兄弟工厂他们花在泵上的钱还真少,就更换了2、3台原配台湾的泵,我们机器上配置的是63M(S)CY14-1B,A2F80R6.1P5斜轴柱塞泵(上海电气液压泵产),A2F80R6.1P5(或107毫升、125毫升)效果也没有那么理想,这个泵现在只有上海电气液压泵生产。有人建议不要采用这种有柱塞环的斜轴泵。不晓得诸位怎么看???
发表于 2008-4-20 17:34:12 | 显示全部楼层 来自: 中国浙江宁波
最好能加个单向阀,避免在泵刚停止一瞬间反向的冲击压力压力将泵损坏。这也是泵损坏的一大只要原因。
发表于 2008-4-20 17:36:20 | 显示全部楼层 来自: 中国江苏镇江
应该加个单向阀,避免在冲击压力对泵的损坏。
发表于 2008-4-20 19:15:50 | 显示全部楼层 来自: 中国山东淄博
从原理图上来看.主泵加不加单向阀.不是泵埙坏的主要园因.因为三位四通阀已经切断油路.从你讲的情况来看.靴座磨埙应是系统压力过高.困油,造成.应检查溢流阀是不是正常.油不洁有关系.但不是主要员因.我看解决的办法.使工作压力正常.不要处于高压状态.应该把问题解决,

评分

参与人数 1三维币 +3 收起 理由
晨砂 + 3 技术讨论!

查看全部评分

 楼主| 发表于 2008-4-21 09:53:16 | 显示全部楼层 来自: 中国浙江宁波
原帖由 白水老者 于 2008-4-20 19:15 发表 http://www.3dportal.cn/discuz/images/common/back.gif
. j; Z- o, I4 U- N1 D# b4 o从原理图上来看.主泵加不加单向阀.不是泵埙坏的主要园因.因为三位四通阀已经切断油路.从你讲的情况来看.靴座磨埙应是系统压力过高.困油,造成.应检查溢流阀是不是正常.油不洁有关系.但不是主要员因.我看解 ...
谢谢您,压力不高,也就最大16~18MPA,我想这个压力应该还好吧??
发表于 2008-4-21 10:10:57 | 显示全部楼层 来自: 中国浙江杭州
液压泵的出口要加装单向阀,用来防止对油泵的冲击,这个是基本配置,没有讨论的余地
发表回复
您需要登录后才可以回帖 登录 | 注册

本版积分规则


Licensed Copyright © 2016-2020 http://www.3dportal.cn/ All Rights Reserved 京 ICP备13008828号

小黑屋|手机版|Archiver|三维网 ( 京ICP备2023026364号-1 )

快速回复 返回顶部 返回列表