QQ登录

只需一步,快速开始

登录 | 注册 | 找回密码

三维网

 找回密码
 注册

QQ登录

只需一步,快速开始

展开

通知     

全站
10天前
查看: 2217|回复: 12
收起左侧

[已答复] 这个图的调整机构改进

[复制链接]
发表于 2008-4-1 10:08:34 | 显示全部楼层 |阅读模式 来自: 中国上海

马上注册,结识高手,享用更多资源,轻松玩转三维网社区。

您需要 登录 才可以下载或查看,没有帐号?注册

x
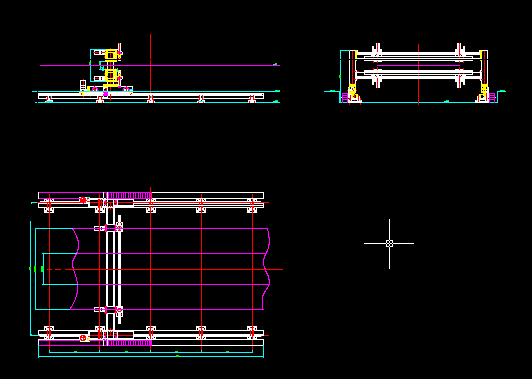
我做的一个图,给领导看他说有两个问题,1是上下两个小车的同步运动用什么实现,2是滚动机构下面的调整装置和方管能不能不用,改别的机构,我刚刚入这个行业,没有什么经验,请各位朋友出出主意.
6 [" R* g5 O6 L
& ^. K0 K' I2 V1 K$ W! ^* E[ 本帖最后由 zym1204 于 2008-4-1 10:14 编辑 ]

assemble.rar

399.57 KB, 下载次数: 17

发表于 2008-4-1 11:02:06 | 显示全部楼层 来自: 中国辽宁抚顺
lz发个图片先啊。。。
发表于 2008-4-1 11:23:40 | 显示全部楼层 来自: 中国广东深圳

确实会有问题

确实有同步问题,应该只要一个电机,一边主动,另一边从动。
* q  g" R7 D8 P! w, k1 q. u5 @0 J! }看着跟数控等离子切割机的机体有点相似,楼主可以参考一下。
4 G& z7 g+ B- c限位太多,应该有浮动的机构,比如两个轴承支撑应该有一个可以浮动,这样实际运行时可能会更顺畅。

评分

参与人数 1三维币 +5 收起 理由
userkypdy + 5 积极参与

查看全部评分

 楼主| 发表于 2008-4-2 12:25:09 | 显示全部楼层 来自: 中国上海
这个确实与切割机相似,但是如果只用一个电机就要把上下两个小车连接在一起,我用虚线表示的是一个钢带,宽度是750~1850mm,所以要连接上下小车有障碍,另外如果连接了上下两个小车,两个电机就没有什么不妥了.两个轴承支撑其中一个是偏心的,有浮动,我没有具体表示.
 楼主| 发表于 2008-4-2 12:30:03 | 显示全部楼层 来自: 中国上海
这里是图片,请大家帮忙
未命名.JPG

评分

参与人数 1三维币 +5 收起 理由
userkypdy + 5 积极参与

查看全部评分

发表于 2008-4-2 14:51:43 | 显示全部楼层 来自: 中国广东深圳
你的上下小车不是分别和两条型材连成一个整体,它们不能左右运动吧?只能上下运动。不知是不是我看错了没理解楼主的意图。
 楼主| 发表于 2008-4-2 15:07:06 | 显示全部楼层 来自: 中国上海
不是的,虽然连接在了一起,但是有电机带动齿轮齿条机构,所以是可以左右动的
 楼主| 发表于 2008-4-2 15:07:52 | 显示全部楼层 来自: 中国上海
而且这个要求气缸在左右方向不受力
发表于 2008-4-2 20:36:01 | 显示全部楼层 来自: 中国广东深圳
哦   那左右移动的距离不是很多吧。那为什么上下的小车为什么分别要用两台电机带动哦。
头像被屏蔽
发表于 2008-4-2 20:40:42 | 显示全部楼层 来自: 中国广东广州
提示: 作者被禁止或删除 内容自动屏蔽
 楼主| 发表于 2008-4-3 08:39:00 | 显示全部楼层 来自: 中国上海
的确不是很大,因为最小钢带是750,所以行程必须小于750,否则会刮伤边缘
 楼主| 发表于 2008-4-3 08:40:07 | 显示全部楼层 来自: 中国上海
上面两个小车,和下面小车都只用一个电机,
发表于 2008-4-14 22:16:13 | 显示全部楼层 来自: 中国广东深圳
原帖由 zym1204 于 2008-4-2 12:25 发表 http://www.3dportal.cn/discuz/images/common/back.gif. L7 D. G+ I! N
这个确实与切割机相似,但是如果只用一个电机就要把上下两个小车连接在一起,我用虚线表示的是一个钢带,宽度是750~1850mm,所以要连接上下小车有障碍,另外如果连接了上下两个小车,两个电机就没有什么不妥了.两个轴承支撑 ...

3 U% @) z, y: p4 S9 ~$ c% D. r$ i& l- R9 O* |9 f4 K$ t2 @
没有理解楼主这个回复是什么意思?
发表回复
您需要登录后才可以回帖 登录 | 注册

本版积分规则


Licensed Copyright © 2016-2020 http://www.3dportal.cn/ All Rights Reserved 京 ICP备13008828号

小黑屋|手机版|Archiver|三维网 ( 京ICP备2023026364号-1 )

快速回复 返回顶部 返回列表