QQ登录

只需一步,快速开始

登录 | 注册 | 找回密码

三维网

 找回密码
 注册

QQ登录

只需一步,快速开始

展开

通知     

查看: 1379|回复: 8
收起左侧

[已解决] 请教各位大虾一个问题!

[复制链接]
发表于 2008-3-18 12:30:44 | 显示全部楼层 |阅读模式 来自: 中国广东韶关

马上注册,结识高手,享用更多资源,轻松玩转三维网社区。

您需要 登录 才可以下载或查看,没有帐号?注册

x
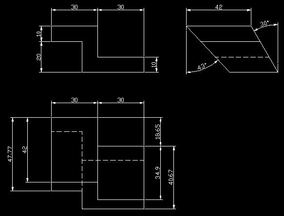
已知左视图和主视图求作俯视图,如图一6 P) c+ n4 F. B4 s: Y4 |* }  F

图一

图一

, ~' [5 Z3 T9 ~, a6 ~' U! I
4 y; v1 i/ V& O& G$ b* P' A( V$ o! H: Q" ]% N
俯视图请标注啊,谢谢了!! )2*(
 楼主| 发表于 2008-3-18 12:48:42 | 显示全部楼层 来自: 中国广东韶关
左边那个视图是主视图,右边那个是左视图。那是高级CAD的题目,要交作业啊,那位能帮帮我
发表于 2008-3-18 13:08:45 | 显示全部楼层 来自: 中国浙江宁波
立体的Z字斜切两刀就是了!
% W3 \2 L' p$ ?, S! n% _. S
! p# G3 [- A% A5 o, J[ 本帖最后由 sealive_leafage 于 2008-3-18 13:32 编辑 ]
未命名.JPG

Drawing1.rar

14.2 KB, 下载次数: 4

Drawing2.rar

11.79 KB, 下载次数: 6

评分

参与人数 1三维币 +5 收起 理由
★新手★ + 5 应助

查看全部评分

 楼主| 发表于 2008-3-18 13:24:57 | 显示全部楼层 来自: 中国广东韶关
能画个图吗???;) ;)
发表于 2008-3-18 13:25:36 | 显示全部楼层 来自: 中国江苏苏州
俯视图如下
Drawing2.jpg

评分

参与人数 1三维币 +3 收起 理由
★新手★ + 3 应助

查看全部评分

发表于 2008-3-18 16:14:36 | 显示全部楼层 来自: 中国福建泉州
这是什么东西啊: Z/ B2 O: r6 T* p$ @
我想象不出来
( p) T2 m1 S1 R' n+ V' P能画个三维的图看下吗?
 楼主| 发表于 2008-3-18 17:30:48 | 显示全部楼层 来自: 中国广东韶关
谢谢啊,作业完成了,呵呵 :loveliness:
发表于 2008-3-18 18:29:28 | 显示全部楼层 来自: 中国浙江杭州
不好的习惯,最好把标注和粗实线分层!
发表于 2008-3-19 14:26:26 | 显示全部楼层 来自: 中国广东惠州

3D图纸

大家看看我用MDT画的图,对不对?

3D.rar

45.21 KB, 下载次数: 4

发表回复
您需要登录后才可以回帖 登录 | 注册

本版积分规则


Licensed Copyright © 2016-2020 http://www.3dportal.cn/ All Rights Reserved 京 ICP备13008828号

小黑屋|手机版|Archiver|三维网 ( 京ICP备2023026364号-1 )

快速回复 返回顶部 返回列表