QQ登录

只需一步,快速开始

登录 | 注册 | 找回密码

三维网

 找回密码
 注册

QQ登录

只需一步,快速开始

展开

通知     

全站
10天前
查看: 3306|回复: 18
收起左侧

[讨论] 形位公差--直线度

[复制链接]
发表于 2008-3-14 18:39:45 | 显示全部楼层 |阅读模式 来自: 中国江苏南京

马上注册,结识高手,享用更多资源,轻松玩转三维网社区。

您需要 登录 才可以下载或查看,没有帐号?注册

x
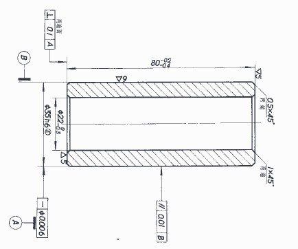
大家说说直线度的含义啊,今天早上看了一个图纸,一个轴,标的是中心线的直线度是0.1,然后我测量的时候是用双V型支起来,然后用百分表放在中间,然后转动轴一周,最后读数,得到数值0.46,是不是最后的直线度是0.46/2=0.23。
发表于 2008-3-14 19:03:36 | 显示全部楼层 来自: 中国山西长治
零件上的直线要素实际形状,保持理想直线的状况,你量出的数值还应该参考长度方向的尺寸
发表于 2008-3-14 19:05:43 | 显示全部楼层 来自: 中国北京
不能用V形支座检测
) g( C/ T  ]- Z& A0 l* L应该将零件(轴)放在平台上,紧靠直角座,一边转动零件,一边移动表座,
5 m1 S3 t1 f- R5 R  @& P; \打出来的数据应该在0.1范围内,没有除以2的说法
 楼主| 发表于 2008-3-14 21:21:53 | 显示全部楼层 来自: 中国江苏南京
楼上的说法,紧靠直角尺,我不是很明白啊,我说的是表在轴向上也移动,然后再转动产品,最后得出的数据除2,不知道为什么不对。
发表于 2008-3-14 21:31:50 | 显示全部楼层 来自: 中国山西太原
楼主给出的轴心线的直线度公差有误,0.1前面应加φ,轴线直线度公差带是在直径为0.1mm的圆柱面内的区域。而3楼测量的是圆柱面上素线的直线度,与楼主给的条件不符。楼主的测量方法可行,但误差值不太正确,另外V型铁和平台精度需符合测量精度要求。测一个圆周点不全面,应多测几处,每处求出最大和最小读数之差被2除得的商。各处测得的商取最大值,即为该轴心线的直线度。  I3 W% U& ~9 G
圆柱面上素线的直线度与轴心线的直线度公差带是有区别的,见如下说明:
圆柱面的素线与圆柱轴线的直线度.jpg
 楼主| 发表于 2008-3-14 22:24:46 | 显示全部楼层 来自: 中国江苏南京
谢谢楼上兄弟的解释: :handshake
发表于 2008-3-15 00:03:41 | 显示全部楼层 来自: 中国黑龙江哈尔滨
你说的测量的是圆跳度吧,直线度是所指轴或短面在以基准为轴心,精度值为半径的圆柱内。可以参考以下《互换性与测量技术》一书
发表于 2008-3-15 11:18:12 | 显示全部楼层 来自: 中国江苏苏州
请问您那边有这本书么?" G5 ^+ r$ Z2 _. L/ {
我很需要
 楼主| 发表于 2008-3-15 12:37:02 | 显示全部楼层 来自: 中国江苏南京
书上是有点,但是有时总是不是那么好理解。
发表于 2008-3-15 21:37:43 | 显示全部楼层 来自: 中国江苏常州
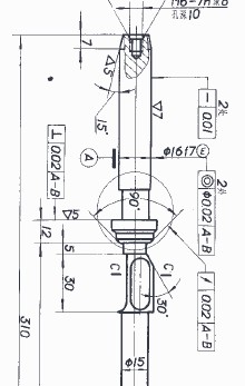
发三张图片啊~~~~~~~~~~~
5 D- e2 |: D8 b: A$ p------------------------
  O% n# n' w* ~* J+ D说明:
0 w% h, L: ]  s/ N# O: C: G" ?这个轴线的直线度不大好测量
/ a# F7 F) K* M8 e4 K; t# Z) C: l! m圆柱面的素线好点& e8 H8 {4 J' Q6 {7 \
这个轴线的直线度可以在跳动里面反映出来这个好测量;
011.jpg
022.jpg
033.jpg
发表于 2008-3-16 05:26:20 | 显示全部楼层 来自: 中国上海
到工厂里去做上三年 这些就都会了 纸上谈兵没有用的
发表于 2008-3-16 09:42:58 | 显示全部楼层 来自: 中国浙江宁波
楼上说的有道理
+ l, g# P! U$ t4 F
发表于 2008-3-17 10:48:02 | 显示全部楼层 来自: 中国陕西宝鸡
但怎么做,好像还是没有说清楚。9 Z5 }3 ?' e% n# w" |0 U
个人认为:
+ h. o1 j' N! M/ D对于零件的要求,特别是形位公差一类的标注,很多检验起来都比较困难。, j, L0 H* ?2 r( ~
特别是那些没有专业工具的地方,很多方法理论上可行,但实际并不可行。
& @4 l& u4 [" ^7 Y3 \. k9 H; D因为不能因为一年仅测一次、两次,就购买很贵的仪器,没有相应的仪器,测量就是一句空话。
 楼主| 发表于 2008-3-20 17:55:38 | 显示全部楼层 来自: 中国江苏南京

孔的对称度怎么检测?

一个轴上边有一个孔,怎么检测孔中心相对于轴中心线的对称度啊?
发表于 2008-3-28 18:12:30 | 显示全部楼层 来自: 中国浙江绍兴
请问您那边有这本书么?. A. N) p9 [8 k' w# s) T$ L
我很需要
发表于 2008-3-29 12:18:59 | 显示全部楼层 来自: 中国浙江宁波
5五楼的说得很好,我在一本书上看过,由中国计量学院出版的《长度计量》中的第八章“形状和位置误差测量”一样,楼主不妨可以买一本看看。http://www.zgjl.com.cn。地址是:北京和平里西街甲2号。中国计量学院出版,供大家参考
发表于 2008-3-29 12:45:59 | 显示全部楼层 来自: 中国浙江宁波
关于14楼提出的“孔的对称度怎么检测?”
. d  d+ c4 z, P6 c: o4 e3 `" k一个轴上边有一个孔,怎么检测孔中心相对于轴中心线的对称度啊?
6 t7 `. S8 \& f3 o) ]; w8 C   我教的检验员是这样测的:(轴上横孔)先准备一根与孔的大小相接近的圆棒,最好是磨过的,长度为MIN被测轴的直径乘以2;用线切在一块已通过检测过(平行度,垂直度ok)的方铁上,根据轴的外圆大小在方铁的一个面上割掉一块,割掉的宽度比轴的直径大0.5-1.0mm即可,深度比轴的半径深即可。再在方铁的切割面再切割一个比圆棒直径大0.1左右的半圆形(半圆和第一次割的成90度为益)。检测方法:将圆棒从轴的孔穿过,再将个好的方铁放在被测轴上,圆棒放在个好的半圆里。测量出孔的边到轴面的距离,再测另一面,两个值得差就是你的答案。
发表于 2008-5-30 16:13:04 | 显示全部楼层 来自: 中国广东广州
我这新手需要好好学习啊~~~
发表于 2008-5-30 16:44:05 | 显示全部楼层 来自: 中国北京
原帖由 随风飘尘 于 2008-3-29 12:45 发表 http://www.3dportal.cn/discuz/images/common/back.gif* g0 ^6 K+ I: B0 J( a2 q
关于14楼提出的“孔的对称度怎么检测?”( q! w1 D- J; A. ]; @0 d
一个轴上边有一个孔,怎么检测孔中心相对于轴中心线的对称度啊?
  `' O4 k8 }7 s* |1 U   我教的检验员是这样测的:(轴上横孔)先准备一根与孔的大小相接近的圆棒,最好是磨过的,长度为MIN被 ...
! J: r+ _; q  }
没看明白,说的太饶口了
发表回复
您需要登录后才可以回帖 登录 | 注册

本版积分规则


Licensed Copyright © 2016-2020 http://www.3dportal.cn/ All Rights Reserved 京 ICP备13008828号

小黑屋|手机版|Archiver|三维网 ( 京ICP备2023026364号-1 )

快速回复 返回顶部 返回列表