QQ登录

只需一步,快速开始

登录 | 注册 | 找回密码

三维网

 找回密码
 注册

QQ登录

只需一步,快速开始

展开

通知     

查看: 3670|回复: 4
收起左侧

[已解决] 装配体工程图中只显示一个零件的隐藏线?

[复制链接]
发表于 2008-3-14 18:02:57 | 显示全部楼层 |阅读模式 来自: 中国山东烟台

马上注册,结识高手,享用更多资源,轻松玩转三维网社区。

您需要 登录 才可以下载或查看,没有帐号?注册

x
在复杂的装配体工程图有时用到只显示一个零件的隐藏线,诸位楼主有没有好的方法做到这一点?
发表于 2008-3-14 22:23:21 | 显示全部楼层 来自: 中国台湾
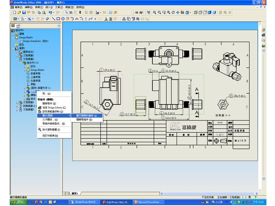
在目錄樹選出零件,按滑鼠右鍵,如圖
簡報1.jpg
发表于 2008-3-15 01:11:24 | 显示全部楼层 来自: 中国北京
目錄樹選出零件,按滑鼠右鍵,你再试一下。
 楼主| 发表于 2008-3-15 18:25:02 | 显示全部楼层 来自: 中国山东烟台

回复 2# 的帖子

刚才试了试,可以达到,谢谢了
7 r1 \) s% L- I3 Q方法:将视图中的零部件在目录树中找出,选择显示隐藏线选项
发表于 2013-6-5 10:32:49 | 显示全部楼层 来自: 中国河北秦皇岛
谢谢   今天 用到
6 e2 k$ x8 `; V6 j7 c
发表回复
您需要登录后才可以回帖 登录 | 注册

本版积分规则


Licensed Copyright © 2016-2020 http://www.3dportal.cn/ All Rights Reserved 京 ICP备13008828号

小黑屋|手机版|Archiver|三维网 ( 京ICP备2023026364号-1 )

快速回复 返回顶部 返回列表