QQ登录

只需一步,快速开始

登录 | 注册 | 找回密码

三维网

 找回密码
 注册

QQ登录

只需一步,快速开始

展开

通知     

全站
10天前
查看: 1796|回复: 3
收起左侧

[求助] 同步马达的问题!!!

[复制链接]
发表于 2008-2-14 15:50:07 | 显示全部楼层 |阅读模式 来自: 中国北京

马上注册,结识高手,享用更多资源,轻松玩转三维网社区。

您需要 登录 才可以下载或查看,没有帐号?注册

x
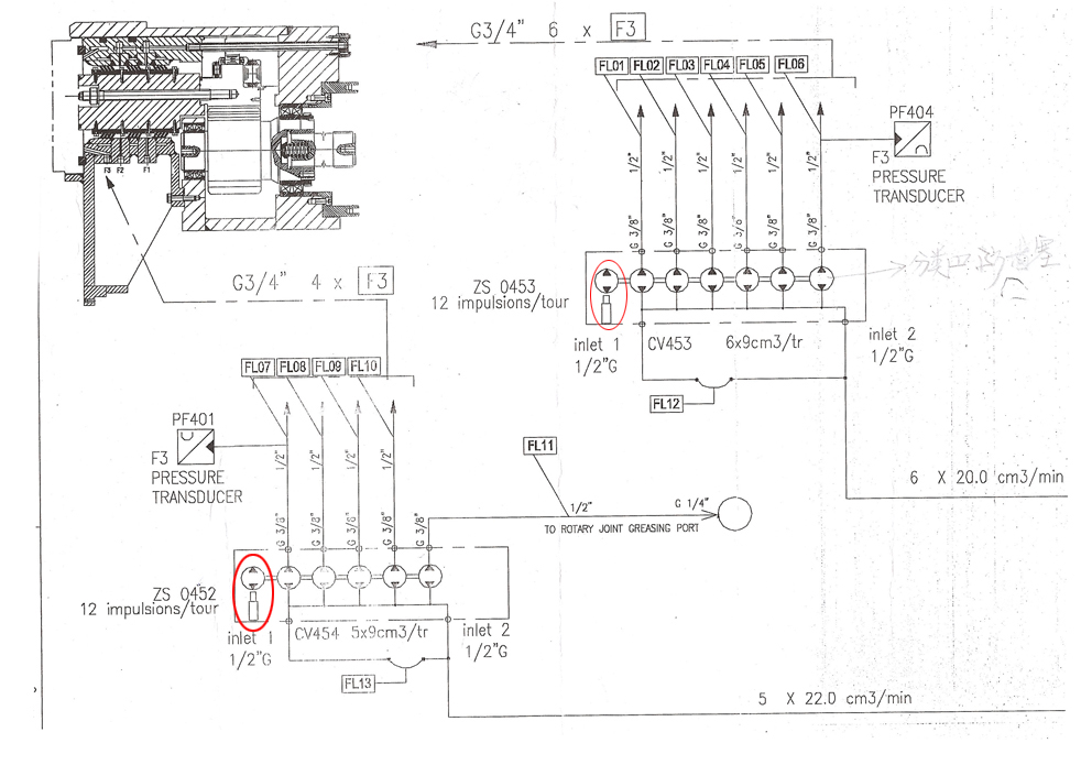
ScannedImage-1.jpg 同步马达的问题!!!请大家帮忙看看这个同步马达的图纸中,用红色圈起来的那个东东是什么功效或者意思!
. b. F7 Z, q. G, r& M每个马达都有这个一块!
发表于 2008-2-14 20:28:10 | 显示全部楼层 来自: 中国河南郑州
给你个链接看能不能帮上你的忙% I: \, |* i% y$ Y1 N, U
http://www.3dportal.cn/discuz/viewthread.php?tid=436911&highlight=%CD%AC%B2%BD%C2%ED%B4%EF
发表于 2008-2-15 10:34:57 | 显示全部楼层 来自: 中国浙江宁波
这个可能是整个同步马的驱动马达,提供动力不参与分流的
 楼主| 发表于 2008-2-15 10:55:54 | 显示全部楼层 来自: 中国北京
原帖由 cnyang98 于 2008-2-14 20:28 发表 http://www.3dportal.cn/discuz/images/common/back.gif# h6 n% `% @! q
给你个链接看能不能帮上你的忙* F5 x) V" V% z8 Q( t; M
http://www.3dportal.cn/discuz/viewthread.php?tid=436911&highlight=%CD%AC%B2%BD%C2%ED%B4%EF
% G, e$ ]( o! t+ o9 F4 ]/ ]
谢谢2楼的,可是还是没有得到相关解答!' ]) Y9 }  K9 o* T
我在线等你们的解答!
发表回复
您需要登录后才可以回帖 登录 | 注册

本版积分规则


Licensed Copyright © 2016-2020 http://www.3dportal.cn/ All Rights Reserved 京 ICP备13008828号

小黑屋|手机版|Archiver|三维网 ( 京ICP备2023026364号-1 )

快速回复 返回顶部 返回列表