QQ登录

只需一步,快速开始

登录 | 注册 | 找回密码

三维网

 找回密码
 注册

QQ登录

只需一步,快速开始

展开

通知     

查看: 1493|回复: 9
收起左侧

[已解决] 求助一困扰多时的问题

[复制链接]
发表于 2008-2-12 16:18:32 | 显示全部楼层 |阅读模式 来自: 中国浙江宁波

马上注册,结识高手,享用更多资源,轻松玩转三维网社区。

您需要 登录 才可以下载或查看,没有帐号?注册

x
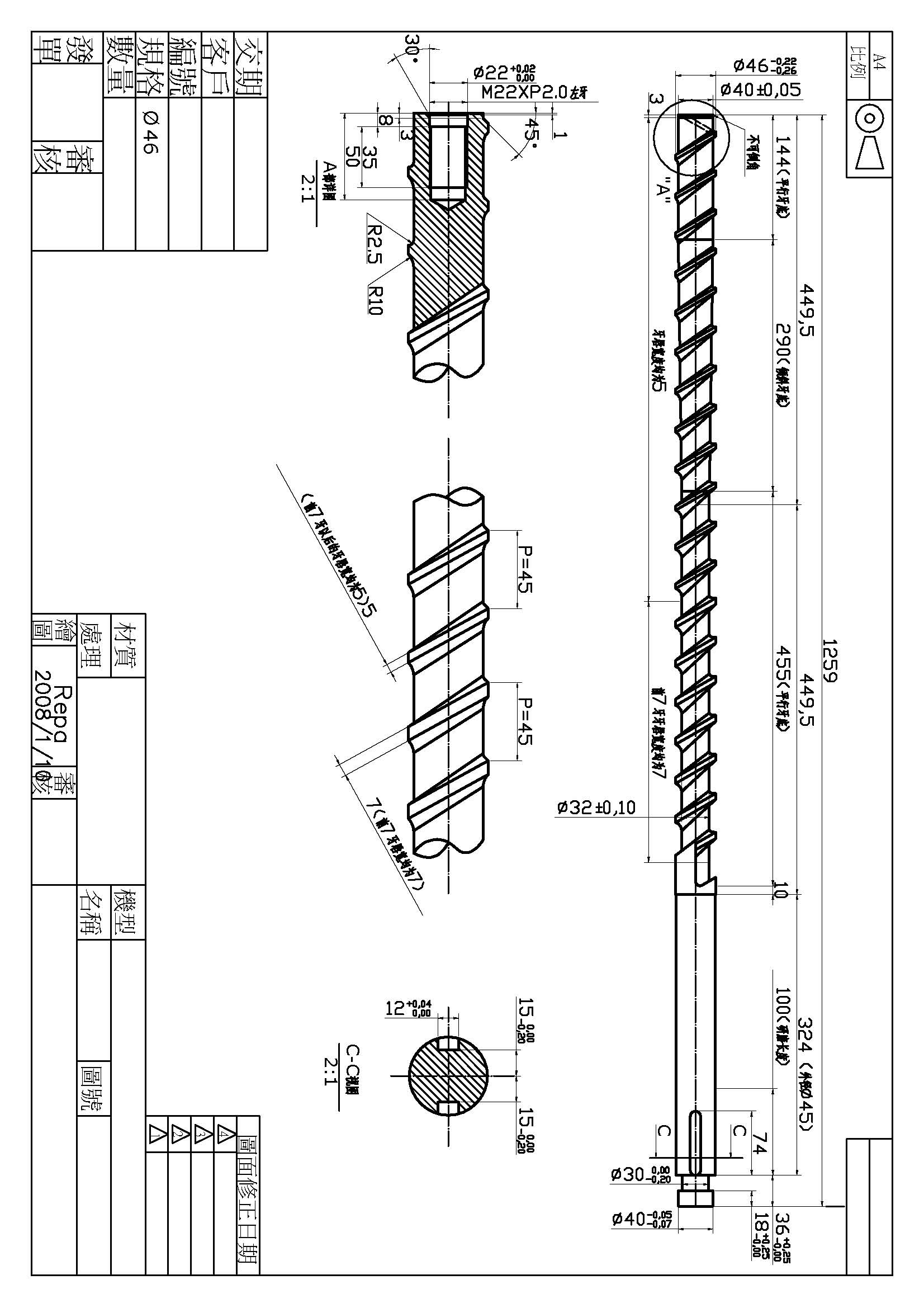
需要在一个轴上画螺纹
( V3 A3 l9 z# E6 L要求螺纹外径不变,但是内径存在三段变化+ ^- X; a7 z( b4 [! g8 l' u8 S
(为了直观上传一AUTOCAD图纸); h: P/ Q9 o- u! J
请高手们帮忙
& @2 |! ]7 [1 z/ t* o, [  H0 }+ N3 f. A& H7 Q% ]$ J. E
7 s/ q+ j) @/ k& U
ps.以前搞电路的,刚学机械制图一个月,请问需要学习那些方面的基础知识,最好具体点,谢谢大家
/ `) c4 b1 m# N! h" j+ d. S
/ m9 g: q1 P  J) A; L- [. j" ]" e0 J8 n5 D
# ?* }% @' T* v$ T6 q8 m' v
感谢mr.lee大大的提醒,感谢大家的热心帮助,现补上dwg格式文件(1:1)
新块.jpg

Help.rar

43.01 KB, 下载次数: 10

 楼主| 发表于 2008-2-12 16:33:44 | 显示全部楼层 来自: 中国浙江宁波
说明:如图,第一段内径Φ26.4X130L,第二段是130L渐变为Φ20,第三段是Φ20X300L
* X3 o! k/ s, V+ h' I$ ~1 A5 ^2 [! `还有哪个铣三角的地方怎么弄3 q  m. B' S/ \/ e- x' A

' x$ z) o+ R1 o. p希望有人指点
发表于 2008-2-13 10:27:08 | 显示全部楼层 来自: 中国上海
简单。
6 L8 q0 [5 f% }/ h0 X# U6 O+ v: Y* D1、按照最小的轴径画出螺纹截面和螺旋线,扫描出螺纹,
. L1 l; K- @( O, X, _0 H2、拉伸出三段轴,完成。( Y" A& h# r8 \3 F6 T# E% X+ K
关键是螺纹的内径比最小轴小

评分

参与人数 1三维币 +2 收起 理由
mr.lee + 2 应助

查看全部评分

发表于 2008-2-13 18:02:06 | 显示全部楼层 来自: 中国山东烟台
给搂主介绍几方面的知识:公差与配合,机械制造工艺学,机械设计,热处理,
发表于 2008-2-13 18:04:03 | 显示全部楼层 来自: 中国山东烟台
如果只是制图方面,可翻阅机械设计手册机械制图方面的内容或机械制图书籍
发表于 2008-2-14 08:43:51 | 显示全部楼层 来自: 中国河北沧州
不错,这个很好画的。按最小的画即可。
发表于 2008-2-14 08:51:11 | 显示全部楼层 来自: 中国广东中山
4#,5#曲解了楼主的意思,楼主要的是sw的part
 楼主| 发表于 2008-2-15 09:52:49 | 显示全部楼层 来自: 中国浙江宁波
感谢大家的热心帮助
1 }1 a8 g; v% o# O& T让新手感觉到大家庭的温暖
& u" R7 G7 z, s! b% R
发表于 2008-2-15 16:31:43 | 显示全部楼层 来自: 中国广东中山
画了个样子供参考
未命名.JPG

零件1.rar

397.44 KB, 下载次数: 10

 楼主| 发表于 2008-2-24 10:42:41 | 显示全部楼层 来自: 中国浙江宁波
感谢mr.lee
发表回复
您需要登录后才可以回帖 登录 | 注册

本版积分规则


Licensed Copyright © 2016-2020 http://www.3dportal.cn/ All Rights Reserved 京 ICP备13008828号

小黑屋|手机版|Archiver|三维网 ( 京ICP备2023026364号-1 )

快速回复 返回顶部 返回列表