QQ登录

只需一步,快速开始

登录 | 注册 | 找回密码

三维网

 找回密码
 注册

QQ登录

只需一步,快速开始

展开

通知     

全站
10天前
查看: 2494|回复: 6
收起左侧

[讨论结束] 图纸中剖面线的问题

 关闭 [复制链接]
发表于 2008-2-7 20:47:57 | 显示全部楼层 |阅读模式 来自: 中国四川眉山

马上注册,结识高手,享用更多资源,轻松玩转三维网社区。

您需要 登录 才可以下载或查看,没有帐号?注册

x
我们经常在画图中会遇到需要放大的视图,请大家说说,此放大视图的剖面线是否应该和图中其它视图的相同,还是应该随着放大比例放大?
/ k- P7 l2 C9 a# X5 Y请大家都来讨论一下,并能给出相关标准,谢谢.
发表于 2008-2-7 21:13:53 | 显示全部楼层 来自: 中国山西太原
图样局部放大后剖面线间距应与原图样中的剖面线间距一致,不应该随着放大比例而放大。

评分

参与人数 1三维币 +3 收起 理由
plc + 3 应助

查看全部评分

发表于 2008-2-8 10:00:07 | 显示全部楼层 来自: 中国江苏常州
机械制图中:
3 ?& c2 D7 C. E4 e: l1:同一金属零件的零件图中,剖视图,剖面图的剖面线,应该画成间隔相等,方向相同而且与水平成45°的平行线
  X8 \. u2 R# k; ~# i5 T当图形中的主要轮廓线与水平成45°时候,该图形的剖面线因该画成与水平成30°或则60°的平行线.
. A2 j" [, u  ?--------------, x, ?& ^- r: K$ E
2.同一装配图中的同一零件的剖面线因该方向相同,间隔相等.
! B2 S7 y# |5 d5 ]2 ~-----------------------------------------
5 t1 B4 Z" o  c. W# I3 G1 f3.如果以大比例来反映某个局部的视图,而被反映的某个零件较大的时候可以在边界画剖面线,不需要全部.
" Y% \% H9 l2 H- z/ K, b----------------------------------------------------------

评分

参与人数 1三维币 +3 收起 理由
plc + 3 应助

查看全部评分

 楼主| 发表于 2008-2-8 22:14:59 | 显示全部楼层 来自: 中国四川眉山
谢谢两位的答复,能不能给出相关的依据或者标准?
发表于 2008-2-9 08:21:40 | 显示全部楼层 来自: 中国上海
GB/T17453-1998技术制图 图样画法 剖面区域的表示法  H* P, ?% G  ]* s8 x) p7 p
GB/T4457.5-1984机械制图 剖面符号
* q/ j: y/ k4 `' b; o7 g! @, f' h+ ~+ j: A; O7 J
3楼的内容是GB/4457.5-1984《机械制图 剖面符号》的内容。在GB/T17453中“剖面线要统一”,统一的意思应该是符号、间隔、方向一致。! B0 B, H3 X. ]% k6 Z
' V4 {; S; G& n# z" T  |2 B
试想一下:基本视图的比例是1:1,剖面线间隔是5 mm,局部视图比例是10:1,如果要随局部视图的比例放大,那间隔不是要50 mm,那还叫什么剖面线?

评分

参与人数 1三维币 +3 收起 理由
plc + 3 应助

查看全部评分

发表于 2008-2-9 09:13:31 | 显示全部楼层 来自: 中国辽宁沈阳
可以想象一下:如果图形、剖面线不一致的话。看图人是否会怀疑不是相同的材料、放大图不是放大点的图形。我见过很多这样问我的人。

评分

参与人数 1三维币 +3 收起 理由
plc + 3 应助

查看全部评分

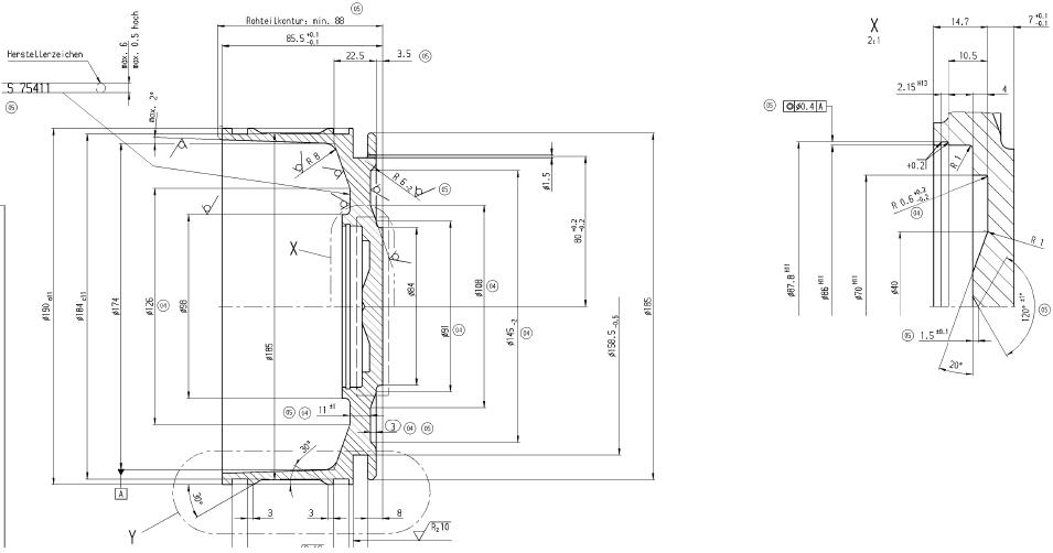
 楼主| 发表于 2008-2-9 19:48:45 | 显示全部楼层 来自: 中国四川眉山
给大家传一张德国的图纸,看看其中的剖面线.1 P9 P* X& o7 a
& \  u0 n  H+ N9 n
[ 本帖最后由 dxm 于 2008-2-9 19:51 编辑 ]
未命名.JPG
发表回复
您需要登录后才可以回帖 登录 | 注册

本版积分规则


Licensed Copyright © 2016-2020 http://www.3dportal.cn/ All Rights Reserved 京 ICP备13008828号

小黑屋|手机版|Archiver|三维网 ( 京ICP备2023026364号-1 )

快速回复 返回顶部 返回列表