QQ登录

只需一步,快速开始

登录 | 注册 | 找回密码

三维网

 找回密码
 注册

QQ登录

只需一步,快速开始

展开

通知     

查看: 2085|回复: 15
收起左侧

[已解决] 初学者求助,大家帮帮忙,谢了!

[复制链接]
发表于 2008-1-25 17:24:03 | 显示全部楼层 |阅读模式 来自: 中国辽宁大连

马上注册,结识高手,享用更多资源,轻松玩转三维网社区。

您需要 登录 才可以下载或查看,没有帐号?注册

x
4.jpg + u/ S5 t: f6 |+ c
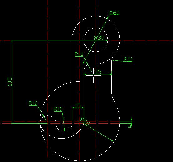
想在箭头1和2指向的地方画个圆弧(或是画个圆),分别与箭头指向的圆弧和直线相切。半径为38。完成图就是那样的,可是我画圆时候圆总是画在外面,画圆弧又不能与直线相切,大家帮帮忙!
发表于 2008-1-25 17:41:53 | 显示全部楼层 来自: 中国江苏镇江
多给几个尺寸看下 这样没尺寸 别人画出来的不一定和你的情况同
发表于 2008-1-25 17:55:52 | 显示全部楼层 来自: 中国广东汕头
这个你可以利用几何画法,内切半径相减 ,外切半径相加的方法.
发表于 2008-1-25 17:59:18 | 显示全部楼层 来自: 中国江苏南京
尺寸少了直线圆弧都无法定位,没法帮你!
 楼主| 发表于 2008-1-25 18:10:53 | 显示全部楼层 来自: 中国辽宁大连
5.jpg
 楼主| 发表于 2008-1-25 18:12:40 | 显示全部楼层 来自: 中国辽宁大连
内切半径相减 ,外切半径相加的方法
+ _* V% @3 w8 e. A0 a3 J- G这是啥意思?
头像被屏蔽
发表于 2008-1-25 18:44:15 | 显示全部楼层 来自: 中国浙江台州
提示: 作者被禁止或删除 内容自动屏蔽
 楼主| 发表于 2008-1-25 18:57:33 | 显示全部楼层 来自: 中国辽宁大连
这是什么东西??我也不知道啊,这个是我在习题集上看的题
发表于 2008-1-25 19:03:25 | 显示全部楼层 来自: 中国江苏苏州
呵呵,你手发不对,你约束时电击的位置不对啊
 楼主| 发表于 2008-1-25 19:08:39 | 显示全部楼层 来自: 中国辽宁大连
约束是什么意思?那我应该怎么办
发表于 2008-1-25 19:45:16 | 显示全部楼层 来自: 中国湖北武汉
详细说来如下:
9 y7 F( s  ~1 s5 w- z
  ~& _, J8 `) g     待求圆弧与直线2相切,所以圆心应在直线2偏移 (offset) R 之后的新直线上.
4 u5 e" J3 m: O) I( \$ a4 q( \* b) e
* a" L9 a; {  i/ l  X4 b7 K     同时,它又与圆弧1 内切,因此它们圆心距为半径之差. 那么,如果以圆弧1的圆心为圆心,以两弧半径之差为半径作圆,则待求圆弧的圆心在这个新圆上.
* E/ |" }& S) I8 t4 m# o( d, t; \1 k: O! z
     取新圆和新直线的交点,这就是待求圆弧的圆心.
+ l+ L) u, e8 R2 X' v, z/ [" n
' A/ n9 e5 h/ B$ f0 j, T
    以上就是内切半径相减,外切半径相加的意思.1 ~/ r; ?* _+ u$ T9 l3 O9 S* b
; q1 f4 V# K1 f0 S; a. ]
其实,cad命令的数学原理都很简单,多琢磨一下自然就知道了.
: O( G6 l, L6 @, U- P1 J' O5 _, |$ f3 K2 z" C
[ 本帖最后由 区区何足道 于 2008-1-25 19:46 编辑 ]

评分

参与人数 1三维币 +3 收起 理由
★新手★ + 3 应助

查看全部评分

 楼主| 发表于 2008-1-25 20:18:30 | 显示全部楼层 来自: 中国辽宁大连
好像明白一些了,谢谢各位!
发表于 2008-1-25 21:10:35 | 显示全部楼层 来自: 中国山东青岛
楼主你这个就是要先找到圆心!可以使用阵列和圆相交找到圆心!然后画圆!
发表于 2008-1-25 21:34:37 | 显示全部楼层 来自: 中国江苏南通
你用圆角命令也行的,而且比较简单。
发表于 2008-1-25 21:57:16 | 显示全部楼层 来自: 中国宁夏银川

可以使用tan命令

在适用过程中可以增加tan命令!
1 `) W5 a& C0 _如:在绘制两条直线的切线的时候,输入l——输入tan命令可以找到两条直线之间的切线
0 ]& ]! W* ~2 I2 n& ]如:圆的时候可以采取tan命令找到相切两个圆的第三个圆,' h* r6 X5 H9 U5 o, {
很方便的,可以试一试:
发表于 2008-1-25 22:06:04 | 显示全部楼层 来自: 中国山东烟台
将圆弧与直线偏移求出圆心就得了
发表回复
您需要登录后才可以回帖 登录 | 注册

本版积分规则


Licensed Copyright © 2016-2020 http://www.3dportal.cn/ All Rights Reserved 京 ICP备13008828号

小黑屋|手机版|Archiver|三维网 ( 京ICP备2023026364号-1 )

快速回复 返回顶部 返回列表