QQ登录

只需一步,快速开始

登录 | 注册 | 找回密码

三维网

 找回密码
 注册

QQ登录

只需一步,快速开始

展开

通知     

全站
10天前
查看: 1778|回复: 5
收起左侧

[求助] 密封圈的选用问题,请各位朋友帮忙。

[复制链接]
发表于 2008-1-24 15:11:02 | 显示全部楼层 |阅读模式 来自: 中国北京

马上注册,结识高手,享用更多资源,轻松玩转三维网社区。

您需要 登录 才可以下载或查看,没有帐号?注册

x
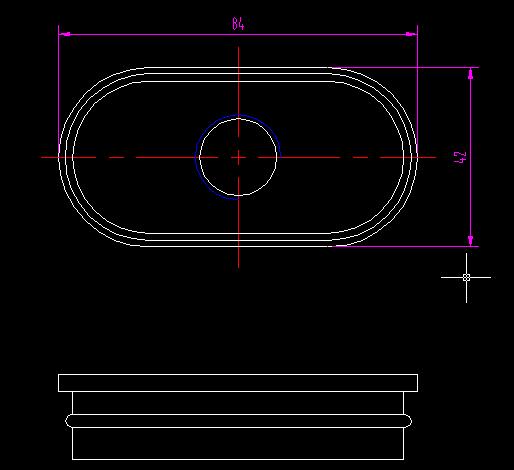
向各位问一下,活塞用L2型密封结构形式,哪个用活塞尺寸,哪个是密封圈的尺寸啊?如下图:3 P- {) {; B1 z4 I+ Y% Z
活塞选密封圈的时候用哪种形式好啊,我看样品的活塞是这种结构的,可是却选不到密封圈,各位帮一下忙。先谢谢了。
# F, F+ [0 A, d/ {: s, ~
. j8 Y& n6 J- r, R[ 本帖最后由 luohuayu 于 2008-1-24 15:18 编辑 ]
未命名.JPG
 楼主| 发表于 2008-1-24 15:14:14 | 显示全部楼层 来自: 中国北京
为了和那个图不在一起,我再占一层了,各位帮我看一下,我想要的活塞结构是这个样子的,选什么样的密封圈啊。还行,加密封圈的槽的公差怎么给啊,我这比较急用,请各位朋友帮忙,谢谢了。活塞与缸体内臂一般要多大的间隙啊,我看样品活塞杆的密封和防尘用的是一个密封圈,我这不太好照图片,没有相机,应该用的是什么密封圈啊。
/ k# U7 P5 Z7 G7 r- H# T2 D3 L  D  J/ _$ I8 x4 y* f. u& ~, q" u
[ 本帖最后由 luohuayu 于 2008-1-24 15:18 编辑 ]
活塞结构.JPG
发表于 2008-1-25 10:17:41 | 显示全部楼层 来自: 中国山东济南
左边的图是沟槽尺寸,右边是密封圈的尺寸。对应下面的表。活塞与缸体内臂采用间隙配合。我也只会这么多
发表于 2008-1-28 11:34:53 | 显示全部楼层 来自: 中国河北唐山
楼主如果压力不高可以使用o型圈,配合为f8/H9。
 楼主| 发表于 2008-1-29 08:56:10 | 显示全部楼层 来自: 中国北京
正常工作时要4到6个大气压,最大要10个吧。
发表于 2008-2-3 13:20:52 | 显示全部楼层 来自: 中国河南安阳
同意4#楼的建议,对于异型面建议选O型圈。
发表回复
您需要登录后才可以回帖 登录 | 注册

本版积分规则


Licensed Copyright © 2016-2020 http://www.3dportal.cn/ All Rights Reserved 京 ICP备13008828号

小黑屋|手机版|Archiver|三维网 ( 京ICP备2023026364号-1 )

快速回复 返回顶部 返回列表