QQ登录

只需一步,快速开始

登录 | 注册 | 找回密码

三维网

 找回密码
 注册

QQ登录

只需一步,快速开始

展开

通知     

全站
10天前
查看: 2198|回复: 8
收起左侧

[已答复] 基准标法

[复制链接]
发表于 2007-12-20 16:33:16 | 显示全部楼层 |阅读模式 来自: 中国江苏苏州

马上注册,结识高手,享用更多资源,轻松玩转三维网社区。

您需要 登录 才可以下载或查看,没有帐号?注册

x
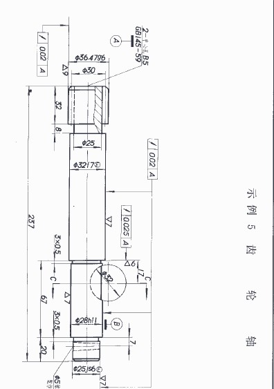
这样标有问题吗?
11.JPG
发表于 2007-12-20 16:58:43 | 显示全部楼层 来自: 中国上海
应该是错误的。! v# t8 j$ @( Y/ g
1.一般来说将A 基准作为第一基准,那么B基准是相对A 基准有个同心度的问题。你的形位公差应该标在B基准位置;4 G8 f2 G. S( y* x, ~  @' z, j3 z
2.一般来说A-B是指第三个要求位置相对A和B基准的要求。

评分

参与人数 1三维币 +5 收起 理由
userkypdy + 5 积极参加

查看全部评分

发表于 2007-12-20 19:33:54 | 显示全部楼层 来自: 中国江苏常州
曲轴的同轴度好象应该是以中心孔为基准$ U9 d! ^% d/ l* ]3 v2 G
标A-B

评分

参与人数 1三维币 +5 收起 理由
userkypdy + 5 积极参加

查看全部评分

发表于 2007-12-20 22:32:04 | 显示全部楼层 来自: 中国湖北武汉
若A和B是互为基准的话,可以将同轴度用双箭头指向A.B,同时去掉A.B的基准符号

评分

参与人数 1三维币 +5 收起 理由
userkypdy + 5 积极参加

查看全部评分

发表于 2007-12-22 12:33:44 | 显示全部楼层 来自: 中国北京
在加工的时候是以两个中心孔作为基准进行加工的,如果我没有说错,图纸上应该有关于中心孔的局部放大图,应该比较严格的

评分

参与人数 1三维币 +5 收起 理由
userkypdy + 5 积极参加

查看全部评分

发表于 2007-12-22 13:48:45 | 显示全部楼层 来自: 中国江苏无锡
应该是A圆柱面对A-B公用轴线的同轴度要求,

评分

参与人数 1三维币 +5 收起 理由
userkypdy + 5 积极参加

查看全部评分

发表于 2007-12-26 16:50:51 | 显示全部楼层 来自: 中国北京

我很吃惊大家的看法

该图中同轴度的标法,很明显是错误的!!!1 b9 v4 K0 a  R- e/ [1 p9 o
原因:
  n0 z- ^5 k% {  Z3 P 形位公差不能以自身作为基准,否则就没有形位公差可谈,因为自身作为基准,怎么还会有形位公差呢?所以这里同轴度不能选用A作为基准。所以在这里要么只选择B基准,要么将A建立在别的特征上。
$ ?$ }/ @' b0 v$ _. E2 n7 ?
+ E) t' u) N- c) e# I2 `. H图纸中的形位公差一定要注意相关的几个要素,否则就不能清楚表达设计意图。

评分

参与人数 1三维币 +5 收起 理由
userkypdy + 5 积极参加

查看全部评分

发表于 2007-12-26 18:44:29 | 显示全部楼层 来自: 中国江苏常州
给两个图片参考啊
曲轴.jpg
齿轮轴.jpg

评分

参与人数 1三维币 +5 收起 理由
userkypdy + 5 积极参加

查看全部评分

发表于 2007-12-27 09:23:51 | 显示全部楼层 来自: 中国上海
我认为这样的标注是可以理解的,是正确的。A-B公共基准的含义并不是等于单独的A或B,所以B的轴线对基准A-B并不是B要素以自己为基准。下图是GB/T17851-1999《形状和位置公差 基准和基准体系》关于公共轴线基准的图例,公共轴线与两个圆柱的中心线并不是重合的,三者之间存在同轴度的误差。
jz.JPG

评分

参与人数 1三维币 +5 收起 理由
userkypdy + 5 积极参加

查看全部评分

发表回复
您需要登录后才可以回帖 登录 | 注册

本版积分规则


Licensed Copyright © 2016-2020 http://www.3dportal.cn/ All Rights Reserved 京 ICP备13008828号

小黑屋|手机版|Archiver|三维网 ( 京ICP备2023026364号-1 )

快速回复 返回顶部 返回列表