QQ登录

只需一步,快速开始

登录 | 注册 | 找回密码

三维网

 找回密码
 注册

QQ登录

只需一步,快速开始

展开

通知     

全站
9天前
查看: 1814|回复: 9
收起左侧

[求助] 此油缸如何改进?

[复制链接]
发表于 2007-12-20 13:43:20 | 显示全部楼层 |阅读模式 来自: 中国江苏无锡

马上注册,结识高手,享用更多资源,轻松玩转三维网社区。

您需要 登录 才可以下载或查看,没有帐号?注册

x
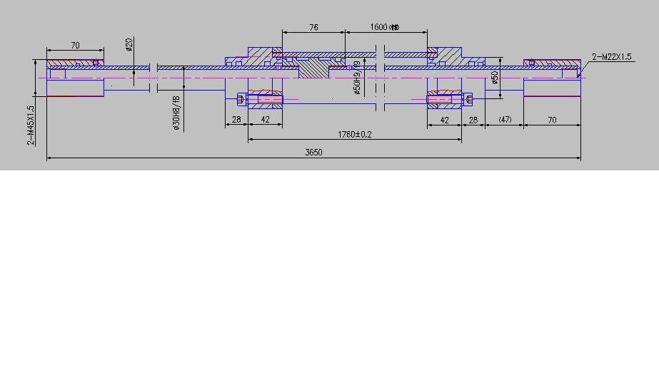
未命名.JPG ) ]' [$ a, p2 ]  u/ {
如图,此油缸如何改进可以提高两端活塞杆的同心度
& V- H" h( J# h" g谢谢
发表于 2007-12-20 16:15:10 | 显示全部楼层 来自: 中国北京
采用整体式杆不行吗?
发表于 2007-12-20 20:07:48 | 显示全部楼层 来自: 中国安徽芜湖
如果可能的话,可以先焊接好再一起加工完成。
" }( Y4 m5 |# V3 Y8 ]只是在安装的时候,要专门设计工装。
发表于 2007-12-20 21:30:04 | 显示全部楼层 来自: 中国河南安阳
曾设计过类似的油缸,推荐使用一根活塞杆,活塞的两端用半卡键结构。
 楼主| 发表于 2007-12-21 07:53:38 | 显示全部楼层 来自: 中国江苏无锡
一根活塞杆不行的
. Q3 s1 u9 @1 y8 R% D/ P- i液压油是从活塞杆里进油的
8 [+ H& o; \) ]. m# l' t! e+ r5 g如果一根的话2腔不就相通了嘛5 t$ L. Z1 T6 i  Y
) ^) d5 I( Z/ g0 O& I+ }3 |
此缸运动时是缸体动活塞杆不动
发表于 2007-12-23 19:26:14 | 显示全部楼层 来自: 中国黑龙江佳木斯
轴与活塞的联接采用锥销联接的方式在磨床有过应用.
发表于 2007-12-25 10:18:56 | 显示全部楼层 来自: 中国河南濮阳
两端端盖都有点过长,形成了三段的接触,反而扶正导向不好。
6 N) k- W2 y: a9 ~6 A: h9 _安装时活塞杆要进行适度的拉伸。
发表于 2007-12-25 21:12:23 | 显示全部楼层 来自: 中国河北唐山
较为赞成4楼的做法,个人认为可以在4楼的基础上对活塞、缸盖的密封及导向的方式及结构多下功夫,选用DAS或格莱圈等密封,降低对同轴度的要求。
发表于 2007-12-25 21:22:28 | 显示全部楼层 来自: 中国河北石家庄
完全可以采用一根活塞杆,我刚设计的油缸和此相似
发表于 2007-12-26 16:21:44 | 显示全部楼层 来自: 中国广东佛山
原帖由 miscly 于 2007-12-25 21:22 发表 http://www.3dportal.cn/discuz/images/common/back.gif
0 }, b) I. B" E( G# ?( l0 d% d完全可以采用一根活塞杆,我刚设计的油缸和此相似

/ L  l- w7 D& I
! {1 ?. i4 a* L9 @$ \楼上   图片的活塞杆的总长是3650长啊     请问钻个20的孔的难度和成本是不是很大啊     我的建议是先用60*80长的圆钢毛胚在两端车牙进行粗加工    然后用两根40*20*3620的无缝管跟活塞毛胚配牙, 然后再连接在一起焊接    再进行整体加工     就怎么简单2 h3 H9 G' O5 A2 \- n7 R

. n( t1 V* m# y7 \& j5 k1 A[ 本帖最后由 A19840 于 2007-12-26 16:40 编辑 ]
发表回复
您需要登录后才可以回帖 登录 | 注册

本版积分规则


Licensed Copyright © 2016-2020 http://www.3dportal.cn/ All Rights Reserved 京 ICP备13008828号

小黑屋|手机版|Archiver|三维网 ( 京ICP备2023026364号-1 )

快速回复 返回顶部 返回列表