QQ登录

只需一步,快速开始

登录 | 注册 | 找回密码

三维网

 找回密码
 注册

QQ登录

只需一步,快速开始

展开

通知     

查看: 7124|回复: 14
收起左侧

[分享] ca6140 机床手柄座 零件图 工艺路线

[复制链接]
发表于 2007-11-28 19:56:51 | 显示全部楼层 |阅读模式 来自: 中国山东青岛

马上注册,结识高手,享用更多资源,轻松玩转三维网社区。

您需要 登录 才可以下载或查看,没有帐号?注册

x
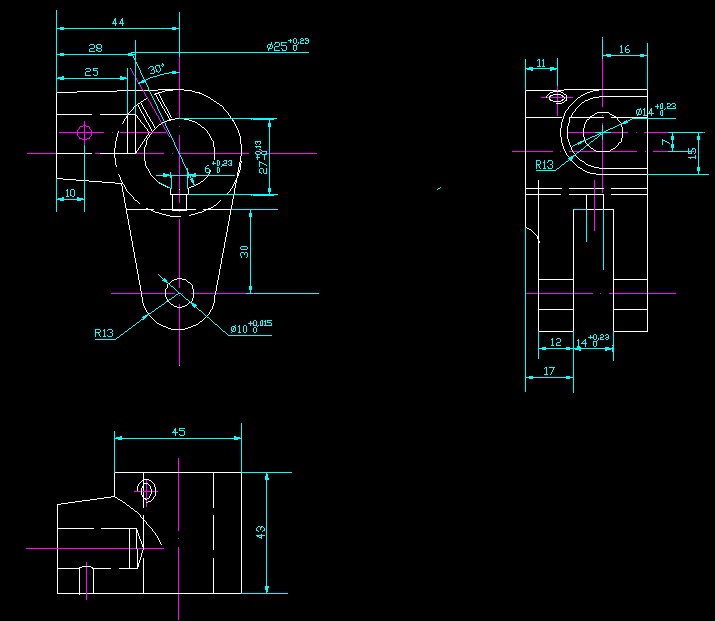
具体的工艺过程如下:
. o6 T# r; P4 l8 _0 R1 B3 a工序一:粗铣上、下表面,精铣下表面,上、下表面互为基准进行加工,选用X63卧式铣床加工;  I5 z+ B, e4 P, i% s% Y
工序二:粗、精车Φ25 mm,以下表面为基准,用响应的卡具夹紧工件选用C620立式车床;7 a+ ?. D9 S) u- w; V3 o+ R. {
工序三:插键槽6H9,利用工件上、下表面定位,选用    ;/ U- z+ t8 E/ H# {
工序四:铣槽14*43 mm,利用上、下表面定位,选用X63卧式铣床及专用夹具定位;% o) g- R7 k: L, l
工序五:钻、拉孔Φ10H7,利用上下表面、及键槽6H9定位,选用Z525立式钻床;( P% c8 {) j) E( [* U7 D, c
工序六:钻孔Φ5.5 mm,以上、下表面定位及定位,选用Z525立式钻床;
$ y! u& @; x7 T# ^3 F" r工序七:钻、扩Φ14H7,选用Z525立式钻床;0 k* M5 j1 O8 V3 P' q2 Z9 f
工序八:钻、钳Φ5 mm、M10--7H以上、下表面定位及Φ25 H8定位,选用Z525立式钻床及专用夹具;" p9 h, k. V- S9 A  d3 p
工序九:终检。
: {( X4 ^6 d7 G4 H- F* I CA6140车床手柄座A32.rar (31.34 KB, 下载次数: 458)
7-1.jpg

评分

参与人数 1三维币 +10 收起 理由
2005llnn + 10 好资料,感谢对论坛的支持!

查看全部评分

发表于 2008-6-22 13:54:01 | 显示全部楼层 来自: 中国江苏盐城
好东西啊,顶啊啊
发表于 2008-6-30 00:14:45 | 显示全部楼层 来自: 中国广东湛江
工序二:粗、精车Φ25 mm,以下表面为基准,用响应的卡具夹紧工件选用C620立式车床;
6 y- D5 h  U4 g9 ~: ]的夹具应是怎么样呀?
发表于 2008-6-30 19:10:19 | 显示全部楼层 来自: 中国湖北武汉
工序一 粗、精铣φ20孔上端面。 3 s' ^4 m& {; M+ i' m
工序二 钻、扩、铰、精铰φ20、φ50孔。 * e. I% \4 {% Q; I  k' k
工序三 粗、精铣φ50孔上端面
7 s; Z3 G- f2 i4 t0 I0 B; |. t工序四 粗、精铣φ50、φ20孔下端面。
1 V. ^. @4 R. N/ X工序五 切断。
' D; n: P5 R/ @9 R$ Q工序六 钻φ4孔(装配时钻铰锥孔)。 3 H+ M8 q" a8 W
工序七 钻一个φ4孔,攻M6螺纹。
& s" M. E2 S5 u4 P& k) x6 L/ J工序八 铣47°凸台。 # P3 W# E0 ]2 n# m; Y( y% N
工序九 检查。
发表于 2008-7-7 12:56:32 | 显示全部楼层 来自: 中国广东广州
谢谢啊 不懂做
发表于 2008-7-10 14:09:49 | 显示全部楼层 来自: 中国江苏南通
呵呵,对工艺不熟悉!!
发表于 2008-12-17 21:17:23 | 显示全部楼层 来自: 中国安徽合肥
正需要这个,多谢,参考下
发表于 2008-12-17 22:31:41 | 显示全部楼层 来自: 中国上海
谢谢楼主的分享!
发表于 2008-12-24 14:00:24 | 显示全部楼层 来自: 中国四川攀枝花

有没有钻下面直径10的孔的夹具图啊?

主要钻下面那个直的10的孔的夹具图, M4 z) ^# P" w/ u
谢谢!: F0 X! _# D  L0 v
哪个朋友有,就发下嘛哈!谢谢了!1 o) H/ ?1 w/ A* T, J
邮箱:luojun200512@163.com
发表于 2008-12-24 15:08:17 | 显示全部楼层 来自: 中国贵州贵阳
对工艺不熟习,学习学习
发表于 2008-12-24 15:26:20 | 显示全部楼层 来自: 中国上海
专业知识,学习了
发表于 2008-12-25 10:20:45 | 显示全部楼层 来自: 中国上海
学习了,谢谢楼主
发表于 2009-6-3 09:16:14 | 显示全部楼层 来自: 中国江西吉安
谢了.很有用
发表于 2009-6-5 07:34:40 | 显示全部楼层 来自: 中国黑龙江哈尔滨
工序五可用钻扩铰,不用拉削
发表于 2009-12-11 14:38:57 | 显示全部楼层 来自: 中国安徽合肥
有没有朋友能把钻扩铰孔Φ10H7孔的夹具设计发给我呀
8 L  w7 ?0 q8 K, S% v& f9 ~- C我的邮箱是panyun10086@163.com 谢谢啦!!!
发表回复
您需要登录后才可以回帖 登录 | 注册

本版积分规则


Licensed Copyright © 2016-2020 http://www.3dportal.cn/ All Rights Reserved 京 ICP备13008828号

小黑屋|手机版|Archiver|三维网 ( 京ICP备2023026364号-1 )

快速回复 返回顶部 返回列表