QQ登录

只需一步,快速开始

登录 | 注册 | 找回密码

三维网

 找回密码
 注册

QQ登录

只需一步,快速开始

展开

通知     

全站
8天前
查看: 2189|回复: 8
收起左侧

[已解决] 图中的孔如何加工

[复制链接]
发表于 2007-10-30 19:29:25 | 显示全部楼层 |阅读模式 来自: 中国广东深圳

马上注册,结识高手,享用更多资源,轻松玩转三维网社区。

您需要 登录 才可以下载或查看,没有帐号?注册

x
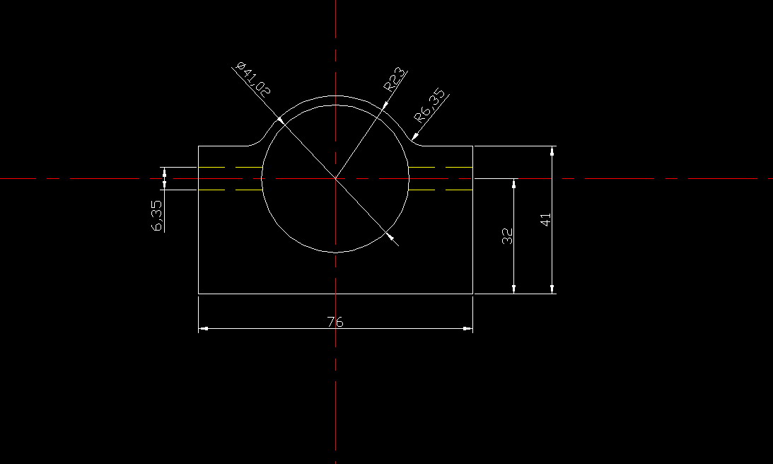
请看附图,图中的一个大孔φ41.02及二个大孔φ6.35,尺寸公差均为+0.025,φ6.35与φ41.02的中心偏差为0.025。请看如何加工为好?  V+ [" I, [+ p9 u
Drawing1.jpg " [' I; W* M, ]' M- `
a.jpg 7 ^( s* \' V, m4 v

4 S% N4 ~- W# R3 ]( M0 x  q- J[ 本帖最后由 zhuyb12 于 2007-10-31 21:57 编辑 ]
发表于 2007-10-30 19:59:35 | 显示全部楼层 来自: 中国广东深圳
做专用车夹具,先加工6.35,再用夹具车41.02,靠夹具精度保中心偏差.
发表于 2007-10-30 20:41:21 | 显示全部楼层 来自: 中国浙江宁波
用带转台的(有B轴)加工中心加工.一次加工完成保证精度要求.
 楼主| 发表于 2007-10-30 21:05:58 | 显示全部楼层 来自: 中国广东深圳
原帖由 dongbeixu 于 2007-10-30 19:59 发表 http://www.3dportal.cn/discuz/images/common/back.gif
& W# A) b  R) X' ?* @3 A! {做专用车夹具,先加工6.35,再用夹具车41.02,靠夹具精度保中心偏差.
+ ?0 u8 y; N8 d( U! R9 u
我们是单件生产,所以要考虑成本。0 {) C: o; f- n1 S0 T0 X5 l8 s4 c
我对夹具不太了解,给个夹具的示意图好吗?谢谢!
发表于 2007-10-30 23:02:21 | 显示全部楼层 来自: 中国四川成都
单件生产最好在镗床上作啊,大孔镗削,小孔铰削,用回转工作台保证中心偏差。
发表于 2007-10-31 09:34:10 | 显示全部楼层 来自: 中国浙江湖州
先平磨好长方块,再用线切割加工6.35  后在加工中心上加工41.02,和外面的弧,这样就可以了 :lol:
发表于 2007-10-31 10:41:03 | 显示全部楼层 来自: 中国山东青岛
原帖由 zhuyb12 于 2007-10-30 21:05 发表 http://www.3dportal.cn/discuz/images/common/back.gif
; a& r7 H% z% Y, j5 `! n. Z% H; J# h. S8 L0 e
我们是单件生产,所以要考虑成本。  V' N* }, D& y; o, k- o+ J
我对夹具不太了解,给个夹具的示意图好吗?谢谢!
2 X/ s  H2 P* W1 Y
单件生产就先用线切割割出大孔以及整体外围,然后以大孔和底面为基准加工小孔。
: t# ?0 j. `5 P& u3 J/ x5 J' ~. ]' X# e
[ 本帖最后由 CHENGJIZHAO 于 2007-10-31 10:46 编辑 ]
发表于 2007-10-31 10:50:58 | 显示全部楼层 来自: 中国浙江宁波
这个不难 ,关键要注意的是中间的大孔不能先加工出来,小孔要一次钻成不然同轴度不好保证了。
+ G  h3 U- g" z7 ?这点小件上加工中心不值、小厂可能还没有镗床。不用那些个设备一样能搞出来: 首先找两个侧面一个底面当基准,打小孔之后扩孔、绞孔,之后上车床花盘或者四爪车出中心大孔,光刀。(用底面就是垂直大孔的面靠花盘定位)。
 楼主| 发表于 2007-10-31 21:53:58 | 显示全部楼层 来自: 中国广东深圳
原帖由 YINDONG411 于 2007-10-31 10:50 发表 http://www.3dportal.cn/discuz/images/common/back.gif
% {* Z9 X( A& M2 ]5 x! B这个不难 ,关键要注意的是中间的大孔不能先加工出来,小孔要一次钻成不然同轴度不好保证了。; U, R+ T2 m5 s3 c9 Z* g
这点小件上加工中心不值、小厂可能还没有镗床。不用那些个设备一样能搞出来: 首先找两个侧面一个底面当基准,打小孔之 ...

! g* f- l2 o7 m* [请问如此能保证两个孔的中心偏差0.025吗?另外侧视图上φ6.35的位置也有较高要求。
" X% H  X, g7 u1 ^8 K* }! M
5 N$ F3 r) S. v[ 本帖最后由 zhuyb12 于 2007-10-31 21:58 编辑 ]
发表回复
您需要登录后才可以回帖 登录 | 注册

本版积分规则


Licensed Copyright © 2016-2020 http://www.3dportal.cn/ All Rights Reserved 京 ICP备13008828号

小黑屋|手机版|Archiver|三维网 ( 京ICP备2023026364号-1 )

快速回复 返回顶部 返回列表