QQ登录

只需一步,快速开始

登录 | 注册 | 找回密码

三维网

 找回密码
 注册

QQ登录

只需一步,快速开始

展开

通知     

全站
9天前
查看: 3510|回复: 23
收起左侧

[讨论结束] 应力集中问题

[复制链接]
发表于 2007-9-10 22:51:28 | 显示全部楼层 |阅读模式 来自: 中国上海

马上注册,结识高手,享用更多资源,轻松玩转三维网社区。

您需要 登录 才可以下载或查看,没有帐号?注册

x
大家都知道尺寸剧烈改变或存在小孔时以及边角的应力集中较为严重,但是是为什么?有公式可以计算出应力集中吗?
- O0 z# A- B4 C& ^7 J2 J
4 m. }$ z" z. Q[ 本帖最后由 zyxwq 于 2007-10-25 11:06 编辑 ]
发表于 2007-9-11 08:14:32 | 显示全部楼层 来自: 中国山东济南
根据应力的公式就可知道为什么应力集中,受力面积小了,应力也就大了呗
发表于 2007-9-11 08:53:12 | 显示全部楼层 来自: 中国山西太原
应力集中是在零件受到外力作用时,在某些结构处应力显著增大的现象。例如轴台阶的尖角处、方孔的尖角处、轮毂键槽直角处,所有零件突变处都存在有应力集中,零件的断裂和损坏首先在这些地方发生。避免或减小应力集中的有效方法是把尖角变为圆角,这点在零件的设计中不可忽视。

评分

参与人数 1三维币 +2 收起 理由
zyxwq + 2 积极参与

查看全部评分

发表于 2007-9-11 09:01:14 | 显示全部楼层 来自: 中国山东青岛
原帖由 JNJCC 于 2007-9-11 08:14 发表 http://www.3dportal.cn/discuz/images/common/back.gif8 o6 C) X3 t* ~/ d4 `2 t+ R
根据应力的公式就可知道为什么应力集中,受力面积小了,应力也就大了呗
+ m( R1 @+ k9 S" K% ~
/ r2 i1 N4 @1 P: ~
所谓应力就是单位面积上承受的力的大小,计算时用零件总受力除以零件受力截面积.( L4 e2 Z8 l5 o. b% D' J7 R
受力面积小了应力就大了,二楼言简意赅~~7 D0 z2 Y+ T  n% |) `7 k, `
3楼的意思就是增大受力面积使应力减小,一个意思~~
发表于 2007-9-11 11:43:56 | 显示全部楼层 来自: 中国江苏无锡
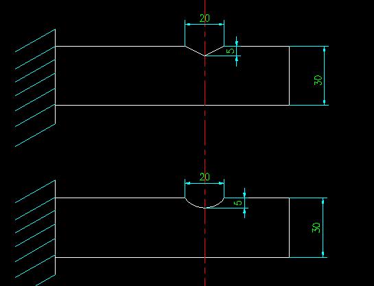
好象不是那么简单吧 ,看看下面的图就知道了。材质相同的两根梁,右端承载能力是否也相同呢?
未命名.jpg
发表于 2007-9-11 12:01:22 | 显示全部楼层 来自: 中国福建泉州
原帖由 JNJCC 于 2007-9-11 08:14 发表 http://www.3dportal.cn/discuz/images/common/back.gif  }' g0 A& s, ^: u; V/ a
根据应力的公式就可知道为什么应力集中,受力面积小了,应力也就大了呗
5 h/ z( @, \6 g  m  M2 o

3 a' R3 f3 P9 @3 f2 i' |根据应力的公式要如何来说明尺寸剧烈改变存在着严重的应力集中呢?本人觉得应力集中的存在无法根据应力的公式来计算。
发表于 2007-9-11 12:36:41 | 显示全部楼层 来自: 中国江苏南京
用普通方法计算是有困难的,但可以用有限元软件进行计算就可以了
发表于 2007-9-11 12:46:30 | 显示全部楼层 来自: 中国浙江绍兴
看看下面的连接,不知对你是否有帮助
$ U) q! i/ A1 h+ `) _- A5 Z% I$ l. k
; a" @6 q. J; w5 o, G) L# O4 Jhttp://www.3dportal.cn/discuz/vi ... F%D6%D0%CA%D6%B2%E1
发表于 2007-9-11 13:38:51 | 显示全部楼层 来自: 中国山东青岛

回复 #5 hanhaikuanglan 的帖子

如果承载指水平拉力,您觉得两根梁的承载能力不同吗?
发表于 2007-9-11 20:14:47 | 显示全部楼层 来自: 中国河北沧州
学习了!!都是牛人啊!每天学一招
发表于 2007-9-11 20:17:26 | 显示全部楼层 来自: 中国江苏南京
用ansys分析以下了哦,proe好象也能的把
发表于 2007-9-11 22:05:12 | 显示全部楼层 来自: 中国北京
简单的应力集中问题,如板上有一个圆孔,弹性力学里应该有计算公式或计算结果。
5 i+ A& U* N, ^$ B4 i+ y0 g2 t复杂的只好用有限元计算了。
发表于 2007-9-11 22:05:55 | 显示全部楼层 来自: 中国北京
学过力学就应该知道计算公式,你没学过吗?
发表于 2007-9-12 20:02:47 | 显示全部楼层 来自: 中国江苏常州
应力集中是由于塑性变形引起的0 C( S$ r$ ?6 u; t* I8 a
由于机械加工,热处理等等原因,有少部分的功或热转化成了内应力残留在金属中,使晶粒产生不均匀的变形,晶粒越细,每个分到的越小,越大,越大./ R! V/ a' x4 M1 [: @- m5 V
当外力引起的应力在某处引起晶粒变化的时候就可能造成金属的断裂.7 l+ L" o3 T( ]/ U& j; U% O
--------------------------------------
+ @2 O: ~0 u( Q4 e. U只是看法

评分

参与人数 1三维币 +2 收起 理由
zyxwq + 2 积极参与

查看全部评分

发表于 2007-9-12 22:32:09 | 显示全部楼层 来自: 中国安徽芜湖
有公式可以计算,如弯矩计算,再通过弯矩图就可以看出哪些是应力集中区。
发表于 2007-9-12 22:35:14 | 显示全部楼层 来自: 中国安徽芜湖
原帖由 hanhaikuanglan 于 2007-9-11 11:43 发表 http://www.3dportal.cn/discuz/images/common/back.gif
3 p: \9 I4 y! ?4 V好象不是那么简单吧 ,看看下面的图就知道了。材质相同的两根梁,右端承载能力是否也相同呢?

( F1 b- w# p4 J% C$ l) N应该是一样的。但是使用寿命却是下面的一个最长。应力集中比上一个小。
发表于 2007-9-13 01:07:28 | 显示全部楼层 来自: 中国上海
我们课程设计也要这个东西真是多谢你了
发表于 2007-9-13 10:29:03 | 显示全部楼层 来自: 中国河南南阳
弯曲后,物件会承受应力;冷热剧变,物件会承受应力;切削、焊接、浇注后冷却物件都会产生应力;长期受力,尤其是变载荷,物件也会承受应力。准确计算应力是困难的,经验计算公式有一定的局限性,需慎重。最好是采取消除应力的办法消除它,没有必要刻意计算。

评分

参与人数 1三维币 +2 收起 理由
zyxwq + 2 积极参与

查看全部评分

发表于 2007-9-13 13:06:15 | 显示全部楼层 来自: 中国江苏徐州
应力=力/面积。
4 A; ?$ ]1 w" Z" H( G$ ]2 y用微分的定义讲:如果面积在有限空间发生突变,则应力也会发生突变
发表于 2007-9-13 14:10:54 | 显示全部楼层 来自: 中国河北保定
我同意18楼的说法,消除它就可以了
发表于 2007-9-13 17:43:37 | 显示全部楼层 来自: 中国辽宁大连
应力集中通过应力集中系数来确定,主要是集中处应力除以平均应力,目前主要还是通过测量来确定,有一部分主要是经验公式。

评分

参与人数 1三维币 +2 收起 理由
zyxwq + 2 积极参与

查看全部评分

 楼主| 发表于 2007-9-30 09:05:17 | 显示全部楼层 来自: 中国江苏苏州
谢谢大家的讨论。但是这个问题却没有很好的解决。应力是由于内力引起的,并与受力面积成反比,这只是一般的应力计算公式。但对于应力集中的问题,却不能这样理解了。有人提到应力是因为加工引起的,零件所有的表面都经过加工,那就都应该有应力或应力集中吗?至于热应力,残余应力是另外一回事,我这里想知道的是:截面形状改变对应力的影响,请大家给出一个公式!
发表于 2007-9-30 12:29:30 | 显示全部楼层 来自: 中国北京
我认为从力流的角度可能好理解些,因为应力集中的地方,力流的传递会发生明显的变化
发表于 2007-10-2 16:34:18 | 显示全部楼层 来自: 中国四川成都
建议去看看理论力学和材料力学,对你会有用的
发表回复
您需要登录后才可以回帖 登录 | 注册

本版积分规则


Licensed Copyright © 2016-2020 http://www.3dportal.cn/ All Rights Reserved 京 ICP备13008828号

小黑屋|手机版|Archiver|三维网 ( 京ICP备2023026364号-1 )

快速回复 返回顶部 返回列表