QQ登录

只需一步,快速开始

登录 | 注册 | 找回密码

三维网

 找回密码
 注册

QQ登录

只需一步,快速开始

展开

通知     

全站
10天前
查看: 1451|回复: 5
收起左侧

[已解决] 在制图中标注尺寸时遇到的问题

[复制链接]
发表于 2007-8-16 09:58:08 | 显示全部楼层 |阅读模式 来自: 中国江苏苏州

马上注册,结识高手,享用更多资源,轻松玩转三维网社区。

您需要 登录 才可以下载或查看,没有帐号?注册

x
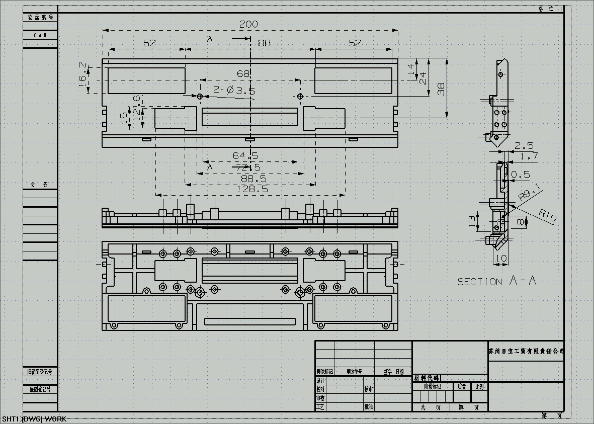
在制图中已标注了尺寸,然后在建模中对实体作了一些修改。再到制图模式时一些尺寸就变成虚线了。请教怎么解决?
% Q* M1 p9 {: T/ B5 q
4 |8 Q% J% L# k: D+ e+ R5 J5 v# @[ 本帖最后由 luohuayu 于 2007-8-16 13:28 编辑 ]
slide plate_50E1.jpg
发表于 2007-8-16 10:39:06 | 显示全部楼层 来自: 中国山西忻州
你可以更新一下视图。
发表于 2007-8-16 11:06:35 | 显示全部楼层 来自: 中国贵州贵阳
模型更改部分的尺寸变虚线,更新试图即可;如果模型更改后该尺寸已经没有东西,则删除该尺寸。
 楼主| 发表于 2007-8-16 11:20:23 | 显示全部楼层 来自: 中国江苏苏州
更新过了,还是一样。这个零件是左右对称的,另一半是径像出来的。标注前没有合并,合并后就变成虚线了
发表于 2007-8-16 12:26:23 | 显示全部楼层 来自: 中国重庆
删除重新标注看能否解决
发表于 2007-8-16 12:35:34 | 显示全部楼层 来自: 中国贵州贵阳

回复 #4 gj112233 的帖子

看来你只有重新标注了!!!!
发表回复
您需要登录后才可以回帖 登录 | 注册

本版积分规则


Licensed Copyright © 2016-2020 http://www.3dportal.cn/ All Rights Reserved 京 ICP备13008828号

小黑屋|手机版|Archiver|三维网 ( 京ICP备2023026364号-1 )

快速回复 返回顶部 返回列表