QQ登录

只需一步,快速开始

登录 | 注册 | 找回密码

三维网

 找回密码
 注册

QQ登录

只需一步,快速开始

展开

通知     

查看: 2333|回复: 19
收起左侧

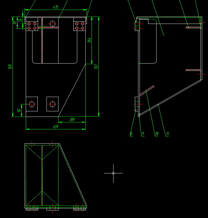
[已解决] 帮忙检查一下这个图有哪些问题

[复制链接]
发表于 2007-8-10 14:41:50 | 显示全部楼层 |阅读模式 来自: 中国上海

马上注册,结识高手,享用更多资源,轻松玩转三维网社区。

您需要 登录 才可以下载或查看,没有帐号?注册

x
谢谢各位大哥啦!!!
未命名.jpg
发表于 2007-8-12 10:37:05 | 显示全部楼层 来自: 中国浙江台州
是箱壳之类的产品吧,如果就单这三个视图的话根本不能表达其结构,尺寸不够,描述不清,最好是把电子版的发过来,这样看不出效果的.
发表于 2007-8-12 10:52:01 | 显示全部楼层 来自: 中国江苏南京
已阅。2 O- [+ @; s+ f6 s) x
批准生产。
8 E: z6 I/ S4 K' X- w* l, X  q画的不错,没有大的问题。
发表于 2007-8-12 12:44:51 | 显示全部楼层 来自: 中国浙江宁波
一个装配图,没有具体的零件图让我看什么看,我拿个装配图让你看你能看什么
) R# ~$ o. R, o( D; O我拉头大象来,只让你看屁股你看什么看
3 _# o' G! Q  M# k" n一张普通的图纸有什么看头2 d2 _0 Q+ ^' v3 c. `
我很生气
4 ?7 r) T6 L! R. V7 M* Y你不说明干甚么的用图,设计个零件的意图,或者测绘这个干什么.
发表于 2007-8-13 07:36:10 | 显示全部楼层 来自: 中国浙江嘉兴
画的根本不是三视图,或者说有问题,很是别扭.再说,中间那两个大孔没有尺寸,怎么能加工呢?不符合绘图标准,有点看不懂.
发表于 2007-8-13 08:11:29 | 显示全部楼层 来自: 中国河南新乡
不符合制图规范,投影错误
发表于 2007-8-13 08:18:28 | 显示全部楼层 来自: 中国河南安阳
原帖由 jiemu5 于 2007-8-12 12:44 发表 http://www.3dportal.cn/discuz/images/common/back.gif
! Y$ {- x3 D+ y& v  W% t5 B一个装配图,没有具体的零件图让我看什么看,我拿个装配图让你看你能看什么% t0 T1 {. s# p/ Q: q- T+ o
我拉头大象来,只让你看屁股你看什么看
; i) K1 p/ A% i" o5 K一张普通的图纸有什么看头% f3 a" J, X# o  y* E9 V( O, j
我很生气  Y( e) S1 b  d- s8 X; V
你不说明干甚么的用图,设计个零件的意图,或者测绘这个干什么.

0 }+ {" O0 r& i, X. ^( N说的有道理,单独的一张零件图纸只能看看视图是否正确,尺寸是否缺少(有关公差恐怕都无法确认)。
发表于 2007-8-13 10:39:25 | 显示全部楼层 来自: 中国广东深圳
画成等轴图比较好看明白。
发表于 2007-8-13 11:41:47 | 显示全部楼层 来自: 中国广东深圳
楼主,图纸有以下不足:1 F- S+ n. f  ^9 N
1 视图不对应,不符和基本的视图要求., K& E' G  U  f1 z, N
2 明显有许多孔距和孔无尺寸.
% [- \, M! J& q& ^2 P3 无技术要求和表头,不清楚具体要求和比例.: e$ n2 c- `" X! w$ g" }7 p
4 该图只有三视图根本不能正确反映实物,需要局部视图等.

评分

参与人数 1三维币 +3 收起 理由
blackbird + 3 应助

查看全部评分

发表于 2007-8-13 11:54:55 | 显示全部楼层 来自: 中国江苏扬州
楼主:
4 e, V) j- K; W0 H$ M, ~769与767尺寸是什么关系??
# ^0 J9 j  J1 ?7 D, @三视图的投影关系不正确。) \5 @( k7 e9 X6 ~$ K* ~. ]& j) n, k
+ c( L: _( T& `7 |# r8 ~4 {
问题不小。。
发表于 2007-8-13 12:02:03 | 显示全部楼层 来自: 中国香港

回复 #9 cyanapple721 的帖子

人才!
$ z4 e! ?) j6 r3 b' S1 m4 W# N# ^以上回复中你的最精彩!
+ e/ o5 I1 h: z+ a% V6 |( w5 O其他人我不知道他们自己不会还是真的很牛.....: G. M- i# x$ _3 ^; \% K; W3 j' }! q
人家问的是有什么毛病指正一下,你说问题太大......叫人家怎么改?
  z3 J3 R! C0 K% h- y希望大家能养成良好的讨论风气!要学的东西还很多!你没做过新手?
4 \* W, }6 a, r反省一下吧,为什么你们打得字也不少,却得不到奖励?
" ~8 j$ [8 }1 Q3 y0 I7 `回想当初我的那个帖子也是如此待遇,有以上感言,希望真正会的人能够耐心细致的指导一下新人...% b# W) n; ^) K) t

+ a) ~/ P4 D% d: Z( |1 ?
% c; A  X$ w0 O$ s楼主,我觉得你的东西不错,你很快就会成长起来的,你可以看看你们公司同类产品其他人怎么标注的,你很快就会找到问题了!
5 V! g3 f+ r5 V3 e
. L. V" _- U* p% v9 q[ 本帖最后由 sytgos 于 2007-8-13 12:04 编辑 ]
发表于 2007-8-13 12:14:54 | 显示全部楼层 来自: 中国香港
我看到的一点问题
* \+ {% r0 {0 _2 u3 i/ A+ e. B1.孔与孔之间没有进行定位,别人虽然知道孔对板的位置,却并不知道孔对孔的位置!
9 h2 K; V  z: W1 w0 n2.整个图上貌似没有GD&T(形状和位置公差),这个很难加工的!
5 ~5 K2 A$ X4 k) H0 i6 i$ F3.这个零件厚度为多少呢?你忘记了吧!# ~; h# W3 [( \) H) `) d) F
4.右边视图右下拐角那个断口是什么意思?
7 R# J* H1 `' m6 }5.如山联版主所说,你那个尺寸太小不发电子版别人很容易误解769和767的关系(那里是有一个小平台对吧!)8 f* h) B2 v  y/ C
6.如楼上大侠们所说,这三张图并不能让人看出实际的东西的形状
; _& G. S* C7 Y( b  b5 N再改改...

评分

参与人数 1三维币 +5 收起 理由
★新手★ + 5 技术讨论

查看全部评分

发表于 2007-8-13 12:20:02 | 显示全部楼层 来自: 中国辽宁盘锦
结构有点表述不清楚,!!!
发表于 2007-8-13 12:39:56 | 显示全部楼层 来自: 中国北京
尺寸少很多,不太看得明白是个什么产品
发表于 2007-8-13 12:44:35 | 显示全部楼层 来自: 中国北京
大概看了下,就我看到的说一下。
$ i1 u5 U; Q' ^$ R0 Y, ]% G' t8 v标注方面:6 l# q, g8 W7 B# t1 [) k8 z2 }
1.一张图纸的标注,总长、总宽、总高缺一不可,从你的图纸来看,缺少宽度方向的尺寸,在俯视图上可以表示。) ~1 A, Z3 q/ z8 s
2.该件与其余件的连接尺寸一定要表达和标注清楚,我猜想主视图上的那些孔是用来安装或者吊装用的,但都缺乏定位尺寸及几何尺寸。
+ V4 W( n  c% D3.该件看起来像是个焊接件,那么各件的焊接位置、焊接方法以及破口形式都应当表达出来。
4 q1 ]( p. r) o/ W2 h3 T9 w
( \5 }& ^3 [8 U5 F. b视图表达方面:; G  W! }# L  s. \' E
如9楼第4条所示,要借用剖视、方向视图以及局部放大图多种手段来表达你的结构,光有三视图是不够的。- W2 q3 n: V) g5 ~- K2 C( ?- o
) k6 ^! \5 S  o4 J% c
总之,一个原则:画图的目的是为了生产,如果工人们拿到你的图能够将你想要的设备各个特征准确的加工出来,就可以说你的图是一张没有问题的图了。

评分

参与人数 1三维币 +5 收起 理由
★新手★ + 5 技术讨论

查看全部评分

 楼主| 发表于 2007-8-13 13:05:48 | 显示全部楼层 来自: 中国上海
不好意思,这图是总图,还有零件图,我只标了几个总体尺寸,还有那个767尺寸是我的错误,那尺寸应该是769,
7 z( K4 e" x1 h4 C' g4 l* ]至于你们提到的投影错误,我已经检查出来了,现在改好了给大家看看,希望大家指正,小弟在此谢谢了
. O, m/ F8 y. ?- k+ M5 A: m" Z, f2 E5 q: A# j( v8 n
[ 本帖最后由 xuesong8633 于 2007-8-13 13:37 编辑 ]
未命名.jpg

连接块.rar

50.87 KB, 下载次数: 8

发表于 2007-8-13 13:56:17 | 显示全部楼层 来自: 中国北京

回复 #16 xuesong8633 的帖子

最好有一个剖视图,否则看不清你的内部结构,虚线虽然也可以表达,但不如剖视直接,而且标注按照国标是不能标在虚线上的。! Y  w5 f7 y* j2 ^, P- x1 l1 x* `
还应该有一个方向视图,来表达160间距的孔。
0 b7 _; S9 d2 c& L0 `% p1 p+ W) h所有孔的直径都应该标出来。2 y# h/ |% U: V* G+ z

2 X( c" M' O% ~0 _! [( i, L[ 本帖最后由 blackbird 于 2007-8-13 14:04 编辑 ]
 楼主| 发表于 2007-8-13 13:58:19 | 显示全部楼层 来自: 中国上海
哦,谢谢了/ B3 Z( F. d& R$ O
发表于 2007-8-13 14:27:41 | 显示全部楼层 来自: 中国江西新余
图中缺不少的位置尺寸!
发表于 2007-8-14 13:29:49 | 显示全部楼层 来自: 中国新疆乌鲁木齐
1基本尺寸不全,如零件厚度δ=?9 Z9 p8 u: o& D) k) ^
2没有加工尺寸
  H7 u8 d! \/ S( x9 e! q5 r5 R3视图表达不清楚,应增加剖面图或是局部放大图/ }9 g# r. j0 |1 ~% {. ]; _3 W
4零件部分尺寸没有,如孔距、孔尺寸, J4 J' W: C# t# i" Q$ {
5视图不对
发表回复
您需要登录后才可以回帖 登录 | 注册

本版积分规则


Licensed Copyright © 2016-2020 http://www.3dportal.cn/ All Rights Reserved 京 ICP备13008828号

小黑屋|手机版|Archiver|三维网 ( 京ICP备2023026364号-1 )

快速回复 返回顶部 返回列表