QQ登录

只需一步,快速开始

登录 | 注册 | 找回密码

三维网

 找回密码
 注册

QQ登录

只需一步,快速开始

展开

通知     

查看: 4325|回复: 29
收起左侧

[讨论] 这个图的难度有多大?

[复制链接]
发表于 2007-7-18 09:34:29 | 显示全部楼层 |阅读模式 来自: 中国北京

马上注册,结识高手,享用更多资源,轻松玩转三维网社区。

您需要 登录 才可以下载或查看,没有帐号?注册

x
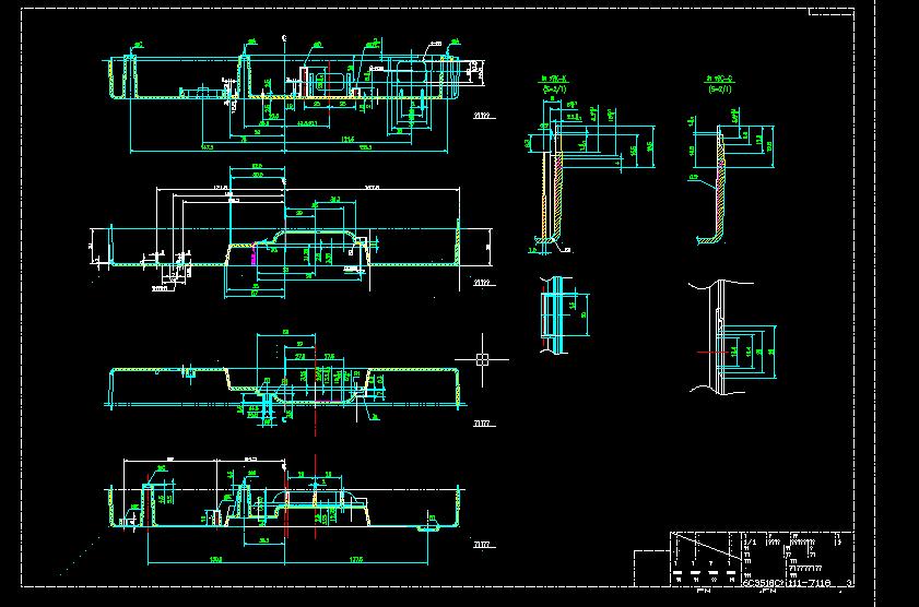
小弟刚参加工作,主管叫我画这个图,我有点晕
  z" b4 P  u2 m, x3 Y1 Z想问下这个图的难度有多大,想我们这样刚参加工作的能画出来吗?" X+ b6 k1 W$ N- j7 K8 v+ x
还是我能力太差~!
1.JPG
2.JPG
3.JPG
4.JPG
发表于 2007-7-18 10:32:04 | 显示全部楼层 来自: 中国湖北十堰
图纸没什么。就是尺寸多,静下心看下去,慢慢画,到最好你也许会觉得这也没什么太难的,砖头块,费点时间吧了
发表于 2007-7-18 10:51:43 | 显示全部楼层 来自: 中国浙江杭州
版主说的对,你看着挺复杂的,仔细看就知道从哪入手了,我刚参加工作的时候主观让我画一个大巴车骨架和蒙皮的装配图,刚拿到的时候也是头晕,不过仔细看看就知道其实没有那么难!
发表于 2007-7-18 11:07:11 | 显示全部楼层 来自: 中国河北廊坊
耐心点,先看后拆零件图!!
发表于 2007-7-18 11:21:58 | 显示全部楼层 来自: 中国浙江宁波
是照着画还是做什么呢?, k/ m5 e/ A2 l. ~, h
& Q& T6 G9 Z( N7 E' [
要自己改图吗?  还是要自己标尺寸
. D# H1 k9 a; ^) V& I
7 Z! g5 @7 }: v& \. R( f8 i+ k: [都不动就画下 仔细点应该可以
发表于 2007-7-18 11:22:32 | 显示全部楼层 来自: 中国湖北十堰
看着复杂,实际上没有太大的难度。不用急,慢慢画。( S9 d$ f0 Z1 ?! D3 V: C0 f1 y1 U
图面大,等你画完了,会有成就感的,增强信心。
发表于 2007-7-18 11:25:48 | 显示全部楼层 来自: 中国浙江杭州
就是 只要命令熟练 耐心点 还是可以画的,尺寸多更好画了  先整体看看,分析在开始画 千万不要一看到就有怕怕,其实动手之后你就不觉的难的了.
 楼主| 发表于 2007-7-18 12:46:28 | 显示全部楼层 来自: 中国北京
也许是我的问题吧.可我有点没说,就是用这个图画出3d图,而不是照着画~!4 @: ?( y7 c! i( R, g# B
这个图我也看了一段时间,可要是画3 d的图,我就蒙了,不知道自己应该从什么地方入手,怎么看也看不明白~!还有这个图打开后还要分解,文字还是乱码~!分解了后有点尺寸就移动位置了,不知道为什么,! X% e9 e5 K* V7 y) J8 s
还请大侠都指点指点啊~!小弟在这里先谢了~!
发表于 2007-7-18 13:32:36 | 显示全部楼层 来自: 中国浙江杭州
画三维就要彻底看清楚结构才行,我觉得从总装图下手,根据图上所有视图,搞明白装配关系,才根据装配关系分清楚分装和零件,不清楚的再找相关分装图和零件图,不要着急。相信机械行业的看这些结构图问题应该是不大的。
发表于 2007-7-18 13:48:47 | 显示全部楼层 来自: 中国北京
图再大,再复杂,在我们眼里只是点和线的组合,只要有尺寸,只要有解,细心揣摩,没有什么难的。
头像被屏蔽
发表于 2007-7-18 16:08:09 | 显示全部楼层 来自: 中国山东聊城
提示: 作者被禁止或删除 内容自动屏蔽
 楼主| 发表于 2007-7-18 16:33:13 | 显示全部楼层 来自: 中国北京
怎么感觉你们都这么强啊~!难道我的能力真的有问题~!?哎~!真的有苦说不出啊`! 你们太good
发表于 2007-7-18 16:41:46 | 显示全部楼层 来自: 中国江苏苏州
图虽然很大,但一步步来总会画好的& n$ D2 q8 G4 |
先把轮廓画出来,不要看那些局部放大图,到整体画好后,在一个一个的把那些细节画好。9 H; G- y6 B" M9 [
不要急躁,要细心
发表于 2007-7-18 16:49:51 | 显示全部楼层 来自: 中国河北秦皇岛
图再大,再复杂,在我们眼里只是点和线的组合,只要有尺寸,只要有解,细心揣摩,没有什么难的。
发表于 2007-7-19 13:32:06 | 显示全部楼层 来自: 中国四川成都
太小了看不太清楚.不过如果是张大装配图的话,要画成三维图,没有零件图可能是不行的.但是如果做这么大的东西的三维图,要用AUTOCAD的话,也许不是个太明智的选择.不能用Pro/E,就用inventor吧.
发表于 2007-7-19 14:30:17 | 显示全部楼层 来自: 中国浙江金华
第一次画会比效慢的,但是二次就会快很多了,看你怎样以更快的、熟练的使用CAD了,当然一次会比一次更快,当然不包括开小差的时间。
发表于 2007-7-19 19:36:29 | 显示全部楼层 来自: 中国广东梅州
粗看一下,有点郁闷
: f0 _4 [, D8 q仔细画吧,估计就是浪费点时间,寻找突破口
 楼主| 发表于 2007-7-19 20:01:57 | 显示全部楼层 来自: 中国北京
大家的贴我看过了,谢谢大家的关心和支持,帖子虽然不多,  小弟有个疑问了,我做个不恰当的大胆的猜想:没人几个人真正的仔细看过这图的,这让我有点失望~! 连什么图都没看清楚就来跟,有点太………………~!?
发表于 2007-7-19 20:12:44 | 显示全部楼层 来自: 中国河北廊坊
画图不是很难得,只要有尺寸就可以还出来,关键是是否叫你设计,因为那就涉及的东西就多了!
发表于 2007-7-19 21:02:32 | 显示全部楼层 来自: 中国辽宁抚顺
图看上去挺复杂,但你仔细一看,总体结构很简单,使用CAD画这些图还是很容易的,关键是你要有耐心把图看懂才行
发表于 2007-7-19 21:21:09 | 显示全部楼层 来自: 中国上海
刚参加工作就搞这个图很厉害了?
6 h( b! Y- T  f2 R! F让你画只不过是让你照着把图搞成cad的而已8 Z" w% \2 ~# S
1 H! z  P  r2 u
真正布置出这张图纸的才是高手!
发表于 2007-7-19 21:27:54 | 显示全部楼层 来自: 中国河南郑州
原帖由 siiaxie 于 2007-7-19 20:01 发表 http://www.3dportal.cn/discuz/images/common/back.gif5 n9 q% J7 S8 K/ P2 L1 D
大家的贴我看过了,谢谢大家的关心和支持,帖子虽然不多,  小弟有个疑问了,我做个不恰当的大胆的猜想:没人几个人真正的仔细看过这图的,这让我有点失望~! 连什么图都没看清楚就来跟,有点太………………~!?

/ \: u9 Z# V8 \不要灰心,更不要埋怨大家,说实话你那张图即使放大也很难看得清(如果看清你或许有泄密的风险),做技术没有一劳永逸的方法,大家所说的是教你如何面对问题及解决问题的方法及技巧,我刚开始做技术时,对于很难懂的构件,都是回去用纸放样去理解,不像现在可以在论坛求助或用三维软件模拟,知足吧朋友!
发表于 2007-7-20 00:00:27 | 显示全部楼层 来自: 中国云南昆明
线条太多,太细.看都成问题,确实难度大啊
发表于 2007-7-20 09:43:59 | 显示全部楼层 来自: 中国浙江宁波
由2唯转3唯?
7 j2 p+ e6 E2 a9 [LZ熟练3唯软件吗?/ b) Q2 I  N9 R1 L
熟练的话  可以把尺寸先去掉。7 r9 Q1 S1 m8 I- a
分析好结构。  ) w: w, m) b5 t* J7 x* ^; L
把2唯图分别导入3维软件
1 G- u1 A" X7 n6 ~摆成3视图! ~/ I7 Z5 e7 u, m1 c& \
把整个装配体画出来哦6 n, h. y4 A- q& D% |; Q3 a
再分析小的结构。
发表于 2007-7-21 08:10:45 | 显示全部楼层 来自: 中国广东茂名
一点都不难哦 如果人画过大型设备就知道哦 !没什么
发表回复
您需要登录后才可以回帖 登录 | 注册

本版积分规则


Licensed Copyright © 2016-2020 http://www.3dportal.cn/ All Rights Reserved 京 ICP备13008828号

小黑屋|手机版|Archiver|三维网 ( 京ICP备2023026364号-1 )

快速回复 返回顶部 返回列表