QQ登录

只需一步,快速开始

登录 | 注册 | 找回密码

三维网

 找回密码
 注册

QQ登录

只需一步,快速开始

展开

通知     

查看: 2212|回复: 7
收起左侧

[已解决] 菜鸟学cad

[复制链接]
发表于 2007-6-17 22:57:24 | 显示全部楼层 |阅读模式 来自: 中国浙江绍兴

马上注册,结识高手,享用更多资源,轻松玩转三维网社区。

您需要 登录 才可以下载或查看,没有帐号?注册

x
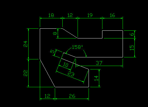
大家看看能不能画出来啊,我老是有误差不能闭合!!!不知道是不是标注错了.原题老虎工作室习题第一章1-4(他的标注可能不全)
1-4.jpg
发表于 2007-6-17 23:13:53 | 显示全部楼层 来自: 中国河北石家庄
就是不能闭合,原图的尺寸精度不够,最后的尺寸12为12.18.8 j- {$ n0 {: L% S3 s
believe youself

评分

参与人数 1三维币 +3 收起 理由
blackbird + 3 技术讨论

查看全部评分

发表于 2007-6-18 08:15:55 | 显示全部楼层 来自: 中国江苏苏州
这是个零件图,不能闭合是很正常的,我们在做零件设计时为了加工方便,对有些不重要的尺寸尽可能取整,这样的误差是建立在不影响零件的使用和功能的,此图也是这个原因,做图的人把标柱的精度设为整数才出现这样的问题.

评分

参与人数 1三维币 +3 收起 理由
blackbird + 3 技术讨论

查看全部评分

头像被屏蔽
发表于 2007-6-18 08:46:55 | 显示全部楼层 来自: 中国北京
提示: 作者被禁止或删除 内容自动屏蔽
发表于 2007-6-18 09:47:00 | 显示全部楼层 来自: 中国广东惠州
像这种练习题我以前也画过0 n; e9 u: X3 e8 u5 p  a
也是不能闭合+ L+ |- |. }! A+ b$ }
你把尺寸精度调高点就能看出是为什么了- ?: q0 J; ?! t" ~# j  j
(小数点后面还有很多数字呢,呵呵)
发表于 2007-6-18 11:23:55 | 显示全部楼层 来自: 中国黑龙江鸡西
如果以[email=“@10]@10〈158[/email]的方式在A点画出直线,然后分别作半径5和23的圆,从交点画长度为5和23的直线就可以闭合了!
3 s; j, L! p9 \( s% f4 g如果长度为5的直线不与长度为10、23的直线垂直,那158度角的标注还是很必要的呢,不然将少一个尺寸约束,图形有无数解。9 \- ~% U: P2 f+ M6 K
6 H9 n1 }- e- a9 e4 C* Z
[ 本帖最后由 雕刻爱情 于 2007-6-19 09:09 编辑 ]
未命名.JPG

评分

参与人数 1三维币 +3 收起 理由
blackbird + 3 技术讨论

查看全部评分

 楼主| 发表于 2007-6-18 18:33:03 | 显示全部楼层 来自: 中国浙江绍兴
原帖由 xgrsx 于 2007-6-18 08:46 发表 http://www.3dportal.cn/discuz/images/common/back.gif& Y% @4 R; ]3 a) C% \: y" d
将5和10这两个尺寸去掉,就可以了
0 O$ P+ g: D# x1 n: u- v. t
去掉这两个尺寸怎么作图
发表于 2007-6-18 18:50:24 | 显示全部楼层 来自: 中国黑龙江哈尔滨
尺寸链不能闭和,把不重要的"一个尺寸"去掉就可以拉,去掉两个恐怕不行吧!
发表回复
您需要登录后才可以回帖 登录 | 注册

本版积分规则


Licensed Copyright © 2016-2020 http://www.3dportal.cn/ All Rights Reserved 京 ICP备13008828号

小黑屋|手机版|Archiver|三维网 ( 京ICP备2023026364号-1 )

快速回复 返回顶部 返回列表