QQ登录

只需一步,快速开始

登录 | 注册 | 找回密码

三维网

 找回密码
 注册

QQ登录

只需一步,快速开始

展开

通知     

全站
8天前
查看: 1810|回复: 4
收起左侧

[已解决] 求助加工方法

[复制链接]
发表于 2007-6-17 00:41:53 | 显示全部楼层 |阅读模式 来自: 中国上海

马上注册,结识高手,享用更多资源,轻松玩转三维网社区。

您需要 登录 才可以下载或查看,没有帐号?注册

x
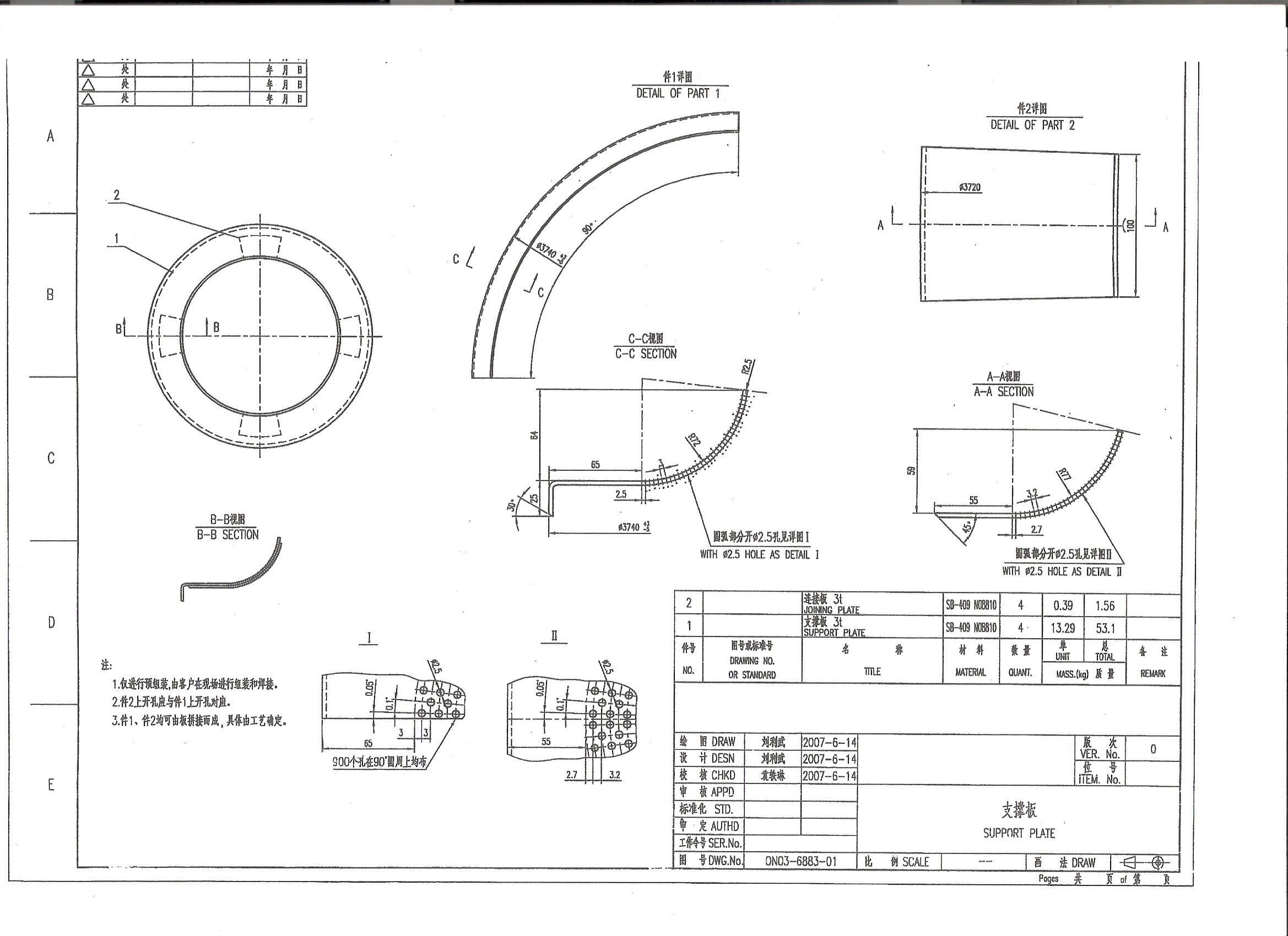
哪位高人能指点一下这个该如何加工,用什么设备?主要是外形。麻烦大家,谢谢
扫描0001.jpg
 楼主| 发表于 2007-6-20 00:01:47 | 显示全部楼层 来自: 中国上海
哪位高人能指点一下???谢谢!!!
发表于 2007-6-20 17:29:49 | 显示全部楼层 来自: 中国山西太原
先冲孔,再在油压机上压形
发表于 2007-6-23 15:25:54 | 显示全部楼层 来自: 中国广东中山
半径这么大,用滚弯吧。不过进口设备贵,我公司设计过铝型材的滚弯机,不过也要几十万,,,量小的话就不用考虑了
发表于 2007-7-6 10:12:18 | 显示全部楼层 来自: 中国河北邢台
这和你所从事行业也有一定的关系.如果没有很高的要求,SW的功能就足以应对大多数日常的工作.而且容易上手.
6 `+ G& }1 H& }" P9 r) x8 H但建议你在学SW的同时也学习一种比较高端的三维软件,如CATIA,PROE等.这样有助于日后的发展.. @# A/ f8 y$ c1 [
有时间我门在久留
发表回复
您需要登录后才可以回帖 登录 | 注册

本版积分规则


Licensed Copyright © 2016-2020 http://www.3dportal.cn/ All Rights Reserved 京 ICP备13008828号

小黑屋|手机版|Archiver|三维网 ( 京ICP备2023026364号-1 )

快速回复 返回顶部 返回列表