QQ登录

只需一步,快速开始

登录 | 注册 | 找回密码

三维网

 找回密码
 注册

QQ登录

只需一步,快速开始

展开

通知     

全站
9天前
查看: 1732|回复: 12
收起左侧

[已解决] 各位过来看呀这个怎么做呀

[复制链接]
发表于 2007-4-21 08:09:38 | 显示全部楼层 |阅读模式 来自: 中国广东中山

马上注册,结识高手,享用更多资源,轻松玩转三维网社区。

您需要 登录 才可以下载或查看,没有帐号?注册

x
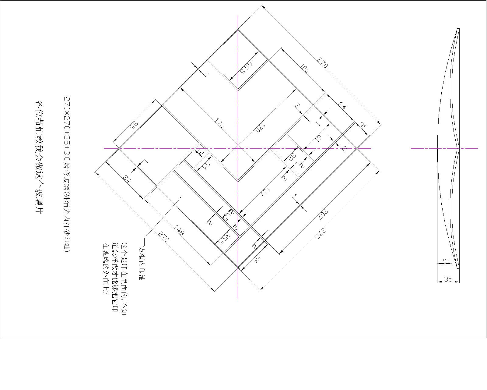
各位有什么好的方法可以做啦,要附上资料,让你我学习.
0 ?% x5 ]$ F, O" l( h% S3 `3 |9 S& K3 Z! |

+ d! M  W( R" }8 d图片不是很清晰的话我附上CAD图.7 N; O& q# Y$ @4 \. `

/ P% g; W' S0 t+ C5 c[ 本帖最后由 lai236994 于 2007-4-21 08:27 编辑 ]

怎么可以做出来呀

怎么可以做出来呀

烤弯玻璃.rar

42.4 KB, 下载次数: 8

CAD图

发表于 2007-4-21 08:35:00 | 显示全部楼层 来自: 中国广东中山
请问下楼主你图纸里边的小格格是要在零件的外表面切出一定的深度来吗?
发表于 2007-4-21 09:28:08 | 显示全部楼层 来自: 美国
第一次看见玻璃的工程图,过去接触的都是机械结构图,所以我不太看得懂这个图。抱歉。
发表于 2007-4-21 09:33:48 | 显示全部楼层 来自: 中国浙江温州
里面的小格是粘上去的玻璃片吗?
 楼主| 发表于 2007-4-21 10:36:48 | 显示全部楼层 来自: 中国广东中山

回复 #4 helloyf 的帖子

上面的小格,是印油的,不要刻上去的,就像上贴邮票
 楼主| 发表于 2007-4-21 10:39:04 | 显示全部楼层 来自: 中国广东中山

回复 #2 hahap 的帖子

不是的,小格了是用来印油的,格与格中间有2MM是空白(玻璃原本是白的)
发表于 2007-4-21 11:18:06 | 显示全部楼层 来自: 中国江苏无锡
cad图看不懂,缺少一些铺助视图.
发表于 2007-4-21 11:40:24 | 显示全部楼层 来自: 中国江苏无锡
是这玻璃吗?不明白.
玻璃吗.jpg

玻璃.rar

295.65 KB, 下载次数: 20

 楼主| 发表于 2007-4-21 11:48:58 | 显示全部楼层 来自: 中国广东中山

回复 #8 fushuixiu 的帖子

是的,太好了
 楼主| 发表于 2007-4-21 11:57:35 | 显示全部楼层 来自: 中国广东中山

回复 #8 fushuixiu 的帖子

主任,你好,能不能详细讲解呢,我用的是2006版的,打不开您的资料. :L
发表于 2007-4-21 12:34:52 | 显示全部楼层 来自: 中国江苏无锡
重做了一下,见附件.
1 q) K/ X- ?* Z就是想请教一个问题,就是看见他们做了动画,记录三维模型绘图过程,它是用什么软件做的啊!: c3 _& `  l2 q7 {% |4 v* ?

4 n7 u% @2 l; ?( w1 f2 {& Q8 V[ 本帖最后由 fushuixiu 于 2007-4-21 12:38 编辑 ]

玻璃2006.rar

125.75 KB, 下载次数: 17

发表于 2007-4-21 13:14:25 | 显示全部楼层 来自: 中国广东中山
用GIF软件呀,很小的一个免安装绿色软件,
 楼主| 发表于 2007-4-21 17:46:01 | 显示全部楼层 来自: 中国广东中山

回复 #11 fushuixiu 的帖子

感谢主任
发表回复
您需要登录后才可以回帖 登录 | 注册

本版积分规则


Licensed Copyright © 2016-2020 http://www.3dportal.cn/ All Rights Reserved 京 ICP备13008828号

小黑屋|手机版|Archiver|三维网 ( 京ICP备2023026364号-1 )

快速回复 返回顶部 返回列表