QQ登录

只需一步,快速开始

登录 | 注册 | 找回密码

三维网

 找回密码
 注册

QQ登录

只需一步,快速开始

展开

通知     

全站
9天前
查看: 5949|回复: 5
收起左侧

[已解决] Class8.8与SS 2172-06 对应国标分别是什么材料?

 关闭 [复制链接]
发表于 2007-4-6 10:39:23 | 显示全部楼层 |阅读模式 来自: 中国山东烟台

马上注册,结识高手,享用更多资源,轻松玩转三维网社区。

您需要 登录 才可以下载或查看,没有帐号?注册

x
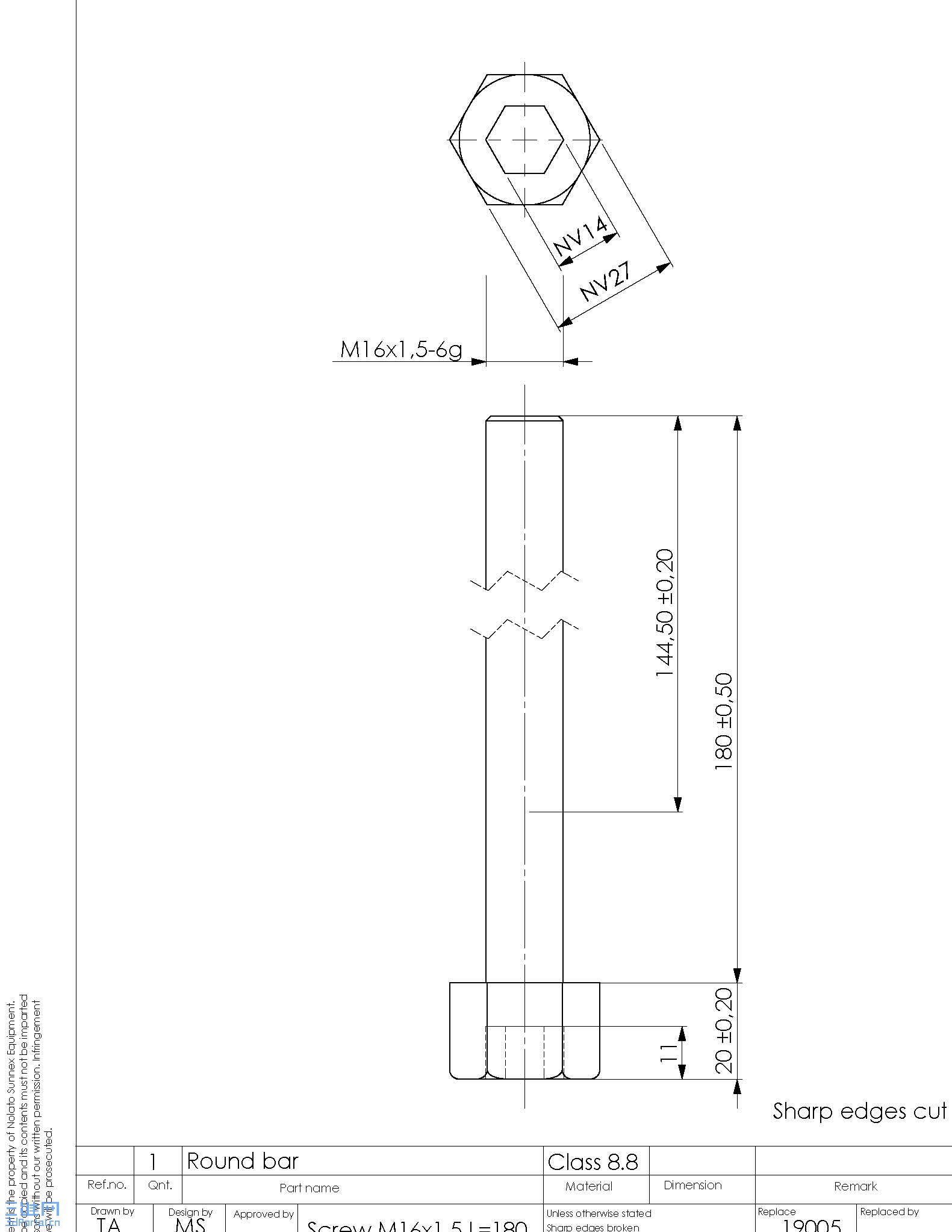
Class8.8与SS 2172-06 对应国标分别是什么材料?
; S9 g( U5 I' R$ a% e$ }! W我知道Class好象是美国老标准,但是对应中国标准是什么牌号,是45#?
( y4 G. J, E- W& M后面那个是一个螺栓的材料,国标是什么?
发表于 2007-4-6 10:54:03 | 显示全部楼层 来自: 中国北京
class 螺栓强度8.8级别 SS2176-06应该是那个公司的内部标准吧- G" s4 r( S4 S6 l; ?

7 W) P# ~0 b; X7 }, d  }你的这个问题的出处最好说一下!
 楼主| 发表于 2007-4-6 12:56:50 | 显示全部楼层 来自: 中国山东烟台
Class8.8对应的是材料,而非螺栓强度等级啊。零件是一个螺栓。, v+ i1 I) s6 z+ V: g& T
SS 2172-06 好象是瑞典的标准,零件是一个攻螺纹的柱体。% g- p9 i3 o2 u6 {( m2 A
见下图
/ K1 B% M- r& j" r
& e) W$ A# V6 B3 ?. a3 \0 K( Y0 V9 |[ 本帖最后由 sxw68 于 2007-4-6 13:01 编辑 ]
19005.jpg
19006.jpg
发表于 2007-4-6 14:32:08 | 显示全部楼层 来自: 中国北京
有点意思 等高手出招  我好长点经验。
发表于 2007-4-6 20:04:38 | 显示全部楼层 来自: 中国广东湛江
我找了好久,也只是找到这个,但这上面也是没有的,但可以大概猜测在那范围,你看一下吧。
6 S- C' A9 z1 M* hhttp://www.686cn.com/hyxx/shownews.asp?newsid=5113. v! _4 Z% G! }" p, z4 }
希望对你有用,

评分

参与人数 1三维币 +2 收起 理由
sxw68 + 2 感谢你的热心帮助

查看全部评分

发表于 2007-4-9 21:29:12 | 显示全部楼层 来自: 中国广东湛江
我刚刚又找到了这个,看看吧, 3 u# }; F# s  |% s0 Q3 F
8 f. c- d* D' a4 t5 X$ w
瑞典金属材料牌号表示方法
  L  Z& I4 K3 o! m4 V0 n, [ 9 [( ^; }2 e. G! b# n
   瑞典的钢号原采用瑞典工业标准 SIS ( Svensk Industri Standard )的表示方法,现在大多采用瑞典标准 SS ( Svensk Standard ),但目前尚未全部采用,有的仍用 SIS 标准,所以在近年的有关钢号的文献资料中常写成 SS ( SIS )。 7 H% s. q6 M, H3 W5 R* ~/ s
) b' }( |1 B" y5 e9 f: N
瑞典的钢号表示方法与钢类的划分有关。通常分为碳素钢和合金钢两大类,还可以按用途分为以下几类: 5 K7 Y: p) P8 N
& ]: b  y/ _9 u4 n. b6 W, Z, u
1. 普通结构用钢 0 W: z0 e! L/ F

2 a% t4 q" a/ L, q 2.  机械制造用钢 7 m; W. r) n0 u$ j0 ]0 w) m( G9 {

; j% ^0 Q, ^, C$ c$ ~4 f- Y 3. 压力容器用钢
" f2 n5 U- I, A4 S) N! R- B' l- b5 V6 x8 [1 F
4. 表面硬化钢 . u+ m$ o3 j+ @4 A- h6 O

, @' T) y6 F& n 5. 调质钢
: y$ G: a# v* S3 J+ n/ [1 v% P  s7 F& Y2 ~6 g
6. 易切削钢 & f6 r0 x9 E$ h) B
  h! {% y* O1 N- G
7.  弹簧钢 / e0 a+ P/ W5 ~* U& ?) e
: w" f: d7 Q5 ]* T8 s
8. 工具钢 ( Q- V( u. |! G4 ]1 G' Q
& |7 I5 l8 w& v, i, o, q
9. 不锈钢
% y( C6 q4 @5 j0 Y( p- e) K2 K
" q6 E" e2 K* N- v  p; o/ j   SIS 标准的钢号编号原则是采用四位数字来表示,大部分是由 MNC ( Metallnormcentra-len )制订的。 SS 标准的钢号是在上述四位数字前再加“ 14 ”,表示钢,例如 SS 14 ××××,因而成为六位数字,但仍与 SIS 标准的钢号表示方法基本一致。
6 Z1 r5 N& E4 Y# W3 {) r& D6 A
, J+ G, d/ v9 \" Q, X# Q% ~; ]SIS 标准的四位数字钢号中,第一位数字是用来区别碳素钢或合金钢: SIS 1 ×××表示碳素钢; SIS 2 ×××表示合金钢。第二位数字与第一位数字相组合的前两位数字,在碳素钢和合金钢中的涵义是不同的。 1 E6 U7 F7 G5 A7 W: K
) e6 H& W0 I6 _, T! m" i
10. 碳素钢
, T0 K5 N; T1 z( Q" X8 e) U$ e( j8 @  h1 l5 {. p" j1 [
    钢号的第一、第二位数字分别组合成 12 , 13 , 14 …… 19 等组外,从 12 组到 18 组的
( D$ }, F- k2 U* _5 W: W) t. u9 ~
4 k8 i8 w+ e# I8 X- l1 l钢号中,其碳含量由低到高。如按用途来选择,则
# w; K! I# Q  ~3 R) e7 r
. h$ U; d0 @) N! G$ c# W12 ××, 13 ××, 14 ××——用于棒材、板材、管材和锻件的不同碳含量的低碳钢,如普通结构用钢、压力容器用钢、渗碳钢。在同一钢号中,还可分为镇静钢、半镇静钢和沸腾钢。 6 q7 [3 |& x8 ?3 v9 q

% d0 X# s3 o  e, Y; V; i) c15 ××, 16 ××——中碳钢,如调质钢、感应加热和火焰加热表面淬火用钢。
8 W2 y( R' m7 R! U+ V1 I7 r+ T
7 v2 q% N) }$ U* i( F5 w4 r1 R17 ××——碳素弹簧钢。
8 O  m- i* U9 Z
, z9 D  g8 \# V  E. L# Z18 ××——碳素工具钢。
; k  _- n; c. V+ _3 Z) X
+ V% I4 [3 G4 D19 ××——易切削钢。
) [( @; c, M: u: D# B
( u1 ?+ x6 O) d, b! N9 ^8 e为了便于说明,现将 SIS 标准碳素钢钢号与我国碳素钢钢号近似对照关系举例如下:
+ w+ V5 b+ g8 o% R- z6 a, n8 F
SIS 1412 ——近似于我国的 20 钢( GB )。 ) p6 D) r" d1 B/ }7 T

& C, T8 v, q5 K& r, TSIS 1650 ——近似于我国的 45 钢( GB )。 ) Z8 I9 n. z8 D/ y" `- _' k

4 `7 r) ^( l! }8 |; n) g2 I) mSIS 1880 ——近似于我国的 T10 钢( GB )。
2 e" S# ~  n2 F3 ?1 U2 \3 r9 m& q8 w6 [* Q
SIS 1912 ——近似于我国的 A12 钢( YB )。 * B1 D  I2 U: s' E& ~' N/ Q

# |1 p+ [* Y$ v钢号的第三位数字和第四位数字是表示同一钢类的不同钢种或同一钢组内成分范围稍有不同的钢种。
- Z5 o8 k) a% \/ |- S0 w7 w8 j& |6 _# Q/ o$ {: u; x9 b
11. 合金钢 ( f' ^) H1 E: V# k: ]# V" T7 S

- M' w% I+ [5 K: ]# F6 t% f    钢号的第一、第二位数字的组合,用来表示钢中主合金元素(通常是指其中含量最高者)。前两位数字所代表的主合金元素及钢种为:
) Y' k; V5 c& O% Y  B% G: g% K/ a; Q. ^
20 ××—— Si 钢。 5 S3 ?* u$ O' j# P& @
6 K1 Z+ z7 B3 L, O8 p% F# J# y  B6 ?
21 ××—— Mn 钢。
! a' ^8 ~9 G7 g6 l! l( z
5 N' {: W; i$ o* T22 ××—— Cr 钢, Cr < 10% 。
: T: O! q$ X3 A! o1 T+ {. y  z- i* X8 ^6 i
23 ××——高 Cr 钢, Cr > 10% 。 ( i% d1 R; G4 a; y- p7 O/ \, S

/ C8 Y. b" ^/ Z1 V- L25 ××—— Ni 钢。 2 b" {4 e: ]" I6 u1 x
) m' E/ L) u5 s7 ]
27 ××—— W 钢。
7 ?3 E6 d" @. W: T$ s5 W
. _0 D7 g- G6 f4 N, t2 F# \: `29 ××——其他钢,含 Al 或 V 的钢。
2 \* ^7 g( r) B. _& r7 O' F+ d9 S# E! H9 a( ~( F" r
其中 24 ××, 26 ××, 28 ××保留。现将与我国合金钢钢号近似对照关系举例如下:
% u7 ^) E* h" i' n0 E. s; e( U5 v, M
SIS 2090 ——近似于我国的 55Si2Mn 钢( GB )。 8 i& t5 i4 f, q3 V# L

: s) k" }$ I* I  ~/ H; ]1 h8 dSIS 2230 ——近似于我国的 50CrMn 钢( GB )。 ' X+ T# ~8 g4 ~7 h/ {! Q

* x# I3 t8 w( }SIS 2302 ——近似于我国的 1Cr13 钢( GB )。
1 u' J; A* q4 V0 J4 s% _+ H6 O: q: Y* v, v$ n- K
SIS 2750 ——近似于我国的 W18Cr4V 钢( YB )。 3 g' l6 Z& N4 G( R- F; p

: L5 }7 X2 [5 N! U钢号的第三位数字和第四位数字是表示同一钢类的不同钢种或同一钢组内成分范围稍有差别的钢种,这和碳素钢钢号表示方法相似。

评分

参与人数 1三维币 +5 收起 理由
sxw68 + 5 感谢您的帮助,有点眉目了。

查看全部评分

发表回复
您需要登录后才可以回帖 登录 | 注册

本版积分规则


Licensed Copyright © 2016-2020 http://www.3dportal.cn/ All Rights Reserved 京 ICP备13008828号

小黑屋|手机版|Archiver|三维网 ( 京ICP备2023026364号-1 )

快速回复 返回顶部 返回列表