QQ登录

只需一步,快速开始

登录 | 注册 | 找回密码

三维网

 找回密码
 注册

QQ登录

只需一步,快速开始

展开

通知     

全站
7天前
查看: 2818|回复: 20
收起左侧

[已解决] 急,知道的说说!

 关闭 [复制链接]
发表于 2007-1-16 20:01:39 | 显示全部楼层 |阅读模式 来自: 中国浙江温州

马上注册,结识高手,享用更多资源,轻松玩转三维网社区。

您需要 登录 才可以下载或查看,没有帐号?注册

x
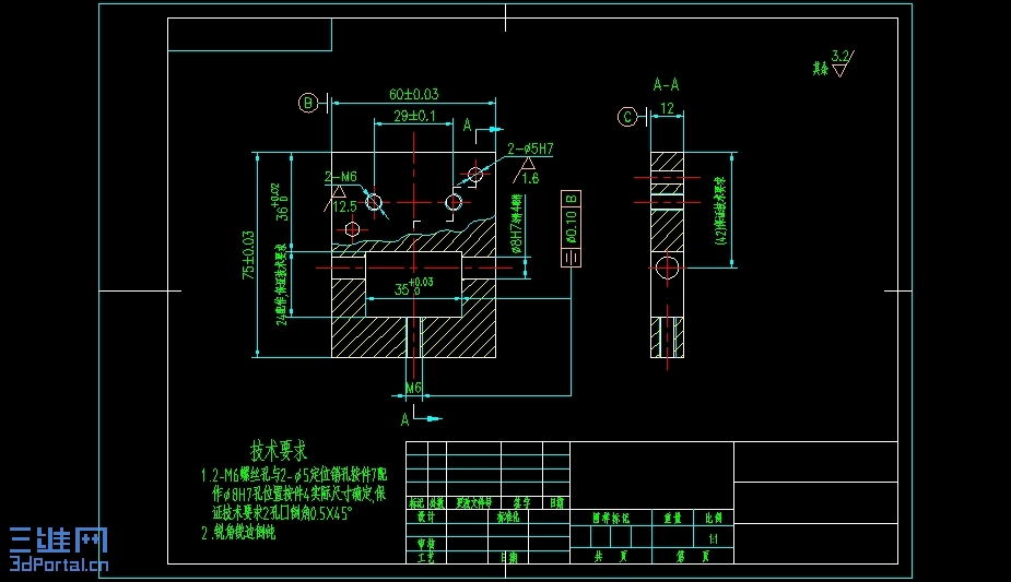
关于这个零件,请发表一下它的加工工艺!谢谢
1.JPG
发表于 2007-1-16 20:37:26 | 显示全部楼层 来自: 中国浙江宁波
材料呢:
8 ~1 M6 F7 v2 {: [1 G; G. T# S, ~4 L8 a! Q; a' c3 U
假设45 #  退火
1 h% t' P  w7 Q' _5 A
5 M0 a. f% \3 ?$ _1、备料:去量去黑皮,六面见光,各留2MM 量 匀
" G6 S* x. _  ^) t* B2、12厚粗精 铣到尺寸,上以及左精铣作基准。(立铣)
4 N& r7 l  f% _; K0 ~- M0 J1 v4 V3、划线出中心方孔,打五处孔底孔。出M6螺纹, 铰孔 H7 ,中心方孔排料。(钳)
0 ]! g5 ^5 O8 U! X' ^4、配做划线 按基准打侧面直径8 的孔。(钳)6 `  M2 q% a2 U6 W
5、线切按照基准找正对丝 。照现场修正,方孔以及其他尺寸成 (电加工)
4 t& d" ?9 {' r' b) o4 t/ a( C  R# V: `& a% \6 W) @$ Z+ f2 ~6 e
[ 本帖最后由 YINDONG411 于 2007-1-16 20:41 编辑 ]

评分

参与人数 1三维币 +5 收起 理由
sxw68 + 5 积极应助

查看全部评分

发表于 2007-1-16 23:21:40 | 显示全部楼层 来自: 中国湖北
楼主:
9 O9 N/ T6 G% f! X  a5 Z* O      1.图中的技术要求不清楚,最好把技术要求打出来,以便研究。6 [) {% h( N; Y/ c/ |7 O
      2.既然有配做件,也应该把配做件的图形贴出来,这样,才能做出完善的工艺。/ x3 Z7 a8 `. @. r2 H' ]! I
     先给一个粗略的工艺做参考:% ~, b8 b' E( I' j8 D
      1.立铣:六面。基准面留磨量。
+ v% d/ o0 p* N5 Q2 h; F) {      2.平磨:磨基准面。$ ]: V5 q/ L6 B& y1 V' p# u5 c( X
      3.钻:打方孔预孔。. o$ a8 L+ I! r* i2 ~7 Y
      4.线切割:割方孔0 T7 K& W5 i  A" ~+ |
      5.卧镗或坐标钻:做有对称度要求的螺纹底孔,并攻导向扣。按件4要求做Φ8H7孔。. x. h9 o3 P! F- S& i, ]
      6.钻:与件7配做其他孔。

评分

参与人数 1三维币 +5 收起 理由
渔樵 + 5 赞同!

查看全部评分

发表于 2007-1-17 03:25:19 | 显示全部楼层 来自: 中国新疆乌鲁木齐
如单一件,可铣削加工坯料后按钳工制作件手工制作.
# f- q$ b; i# O. O2 o1.铣削坯料12×60.5×75.5.3 A$ Z4 T  v8 `5 o- }$ U5 H0 G) M
2.手工加工60±0.03×75±0.03.9 B$ H, I0 q* J  R+ _# N. R
3.24*35孔按图划线配作加工6 ?0 _6 h0 H  j& o- Q2 H
4.2-M6,2-¢5H7,¢8H7按配作件钻,绞,攻.
/ [( _) f" l2 M2 z7 C+ |4 }5.M6 划线钻,攻.
0 y8 b8 k; }) i! v! V- `6.去毛刺.! ^+ c. ~! l( y" I2 ~

, c! J8 M* U9 r# ~如成批件
6 n9 Q" P* o' @% K( f1.60±0.03和
75±0.03×12需精铣加工.
0 @2 g" ]" V' J- s/ r2 X2.24*35孔按图划线配作加工.% c) r/ B4 y" r  x. C9 V
3.2-M6,2-
¢5H7,¢8H7,M6等孔可制作夹具.按配件钻,绞,攻( `" k) f& ]  ^9 a8 d
- @* H$ Z  s, |. Y2 r
5 j; y0 |$ s8 O. |8 B

& p9 l8 c# f0 D0 z" ?[ 本帖最后由 渔樵 于 2007-1-17 10:33 编辑 ]

评分

参与人数 1三维币 +3 收起 理由
渔樵 + 3 技术讨论

查看全部评分

 楼主| 发表于 2007-1-17 15:16:16 | 显示全部楼层 来自: 中国浙江温州

谢谢各位同仁

放大点(清楚点)!
1.JPG
发表于 2007-1-17 22:07:16 | 显示全部楼层 来自: 中国江苏淮安
个人认为:
. }/ [" \7 _9 V& }4 I3 ~  你首先要得说明几点.1.是批量还是单件?& {7 Y; u7 B) O5 k3 D3 m
            2.加工条件
) i% S1 J. X% K            3.材料是什么,未注公差按什么标准.(因为我们就吃个没做未注公差标准的亏)
7 p7 }: u+ W  e) Y# T7 T2 u) Y' f! L  其次你发上来的两张图要求并不完全一样,所以个人认为你先把你的要求全部搞清楚了再发上来,要不出多少方案都是没有针对性的.

评分

参与人数 1三维币 +3 收起 理由
sxw68 + 3 积极应助

查看全部评分

发表于 2007-1-22 12:01:29 | 显示全部楼层 来自: 中国江苏无锡
加工成型我觉得问题不大,方法很多!关键可能会有很多毛刺必须要手工来去了!

评分

参与人数 1三维币 +3 收起 理由
sxw68 + 3 有道理

查看全部评分

发表于 2007-1-22 15:26:57 | 显示全部楼层 来自: 中国江苏常州
方孔定位尺寸36+0.02如何保证上面各位未说清楚,我感觉此尺寸靠线切割割方孔时来保证不是太可靠,我提供一案:其它工序都差不多,只是总长75一边留磨量,待方孔加工好以方孔一边为基准用夹具在平面磨上磨,以保证36+0.02尺寸。

评分

参与人数 1三维币 +3 收起 理由
sxw68 + 3 应助

查看全部评分

发表于 2007-1-23 12:03:22 | 显示全部楼层 来自: 美国

我的意见

两张图要求并不完全一样,我针对第二副图提出我的加工工艺:5 W- q; m: q/ w! _; y
1、四面见光,3.2光洁度2 G$ @) b6 u% |' K) I. A" f, E
2、以B面为基础,加工M6 1 h6 C7 X9 a. a% }* m( h5 P/ L3 |
3、配做2-M6和 销孔) C* K; {) D6 k  V
4、配做方孔,B面为基准
  H+ `2 o2 a0 i+ W2 S& Q' c5、配做8毫米通孔。

评分

参与人数 1三维币 +5 收起 理由
sxw68 + 5 积极应助

查看全部评分

头像被屏蔽
发表于 2007-1-23 16:24:17 | 显示全部楼层 来自: 中国上海
提示: 作者被禁止或删除 内容自动屏蔽
发表于 2007-1-23 17:02:12 | 显示全部楼层 来自: 中国江苏常州
原帖由 solomonfl001 于 2007-1-23 16:24 发表" W6 E* r: W9 Z) c& G( C1 }
A基准呢? . s" U+ C- q: {3 r2 B1 g4 T5 ?/ h
我有个问题,线割能在3.2 内吗? 没有怎么磨?
2 j& V* h( M* S4 u
用慢走丝没问题。
发表于 2007-1-23 21:01:57 | 显示全部楼层 来自: 中国江苏无锡
楼主没说明是那个方面的零件,是磨具零件吗,批量的方案还要考虑成本吧,慢走丝价太高了吧,在没有线切割机的那个时刻,该任何做啊?
发表于 2007-1-23 21:20:40 | 显示全部楼层 来自: 中国贵州贵阳
加工方案必须与你单位的加工设备联系起来,否则的话,加工方案就太多了。建议你把你公司的加工手段提供一下,并提供批量大小。
发表于 2007-1-23 22:02:41 | 显示全部楼层 来自: 中国山东烟台
C基准面是否加工,两张图不一样啊。; h! n) F+ H0 d% I
如果加工就好办点/ j; {% A1 n( b5 V* j% T/ A2 W+ H6 h
1、粗铣:夹尺寸12(以下均用尺寸代替),以任意相对两面定位,铣四面,再夹四面中任何两面,以一面定位,铣12。
/ G  _5 b! A- ]2、磨:夹75,以一面定位,磨60;夹60,以一面定位,磨75。
- ?/ G$ |2 O5 A* [  i3、钻:B基准已经有了,钻M6底空,一般4.8--5.0吧,以B面及12的一面定位,且夹紧60
6 R, |. w# L% t3 m  B4 G; T          同样钻8孔及其他孔4 c" x1 G) |: f1 i
4、拉:剩下方空最后加工,如果批量大可以采用定做拉刀来加工,做好拉刀套,定位夹紧后加工,可以几个件一起加工: S9 M- s2 X8 b
小批量可采用线切割
  L" q# O* |$ b/ G0 U不知道对楼主是否有帮助
发表于 2007-1-23 22:49:38 | 显示全部楼层 来自: 中国北京
用慢走丝小批量可采用线切割
发表于 2007-3-3 21:57:02 | 显示全部楼层 来自: 中国安徽马鞍山
图纸标注不全,C基准有何用处?B基准两侧表面粗糙度未标注
发表于 2007-3-3 22:37:21 | 显示全部楼层 来自: 中国江西九江
1.立铣:粗加工六面。
2 e( L$ {! U5 b! q6 O3 x: a      2.立铣:精加工六面体。
$ ]/ b+ g: c# P' O      3.钳:划2-M6、M6及方孔预孔线,并钻预孔。* s( {+ e" y' f/ Q- x
      4.线切割:割方孔
; C. e8 e. g2 J- H2 g  t  [      5.工具铣、卧镗或坐标钻:钻2-M6螺纹底孔,钻/攻M6螺纹孔。按件4要求做Φ8H7孔。
& x5 p8 Q/ V. V+ }1 Q# x% I      6.钳:攻2-M6螺纹孔与件7配做其他孔。
发表于 2007-3-4 07:30:34 | 显示全部楼层 来自: 中国吉林吉林市
加工应没问题,但要保证M6相对尺寸,最好与相配合件一同加工M6孔且再攻丝
发表于 2007-3-4 12:01:44 | 显示全部楼层 来自: 中国陕西西安
这样的案件很少用到、! A+ Z) E7 \" b7 I+ q1 r% T

, V8 B! |; H) `+ D* W  f: r+ n我就觉得就是:( m, s3 F+ V! ^2 r( O; Y, S

6 ~; [  P! c, K. q( {# M% Y5 e, I1 j在允许的情况下把零件分开加工
" W2 ]! B% t, w& V2 z  l% X把他加工成一队配合来满足要求
# z1 g( l( l  B3 C# q7 z6 r还是可以的
发表于 2007-4-11 21:31:07 | 显示全部楼层 来自: 中国湖北武汉
一个小小的零件有这么多加工方案,看来反工艺搞好的确不简单
发表于 2007-4-13 14:21:23 | 显示全部楼层 来自: 中国江苏连云港
用快丝把方孔和外形一次全部割出,尺寸和位置就都可以保证了.然后其它的孔用万能摇臂铣床加工就可以了(铣床最好装有光栅尺,那样不用划线,尺寸加工精度又好)
发表回复
您需要登录后才可以回帖 登录 | 注册

本版积分规则


Licensed Copyright © 2016-2020 http://www.3dportal.cn/ All Rights Reserved 京 ICP备13008828号

小黑屋|手机版|Archiver|三维网 ( 京ICP备2023026364号-1 )

快速回复 返回顶部 返回列表