QQ登录

只需一步,快速开始

登录 | 注册 | 找回密码

三维网

 找回密码
 注册

QQ登录

只需一步,快速开始

展开

通知     

全站
7天前
查看: 1785|回复: 3
收起左侧

[已解决] 如何标注如图圆圈处的尺寸?

[复制链接]
发表于 2006-12-21 09:51:11 | 显示全部楼层 |阅读模式 来自: 中国浙江金华

马上注册,结识高手,享用更多资源,轻松玩转三维网社区。

您需要 登录 才可以下载或查看,没有帐号?注册

x
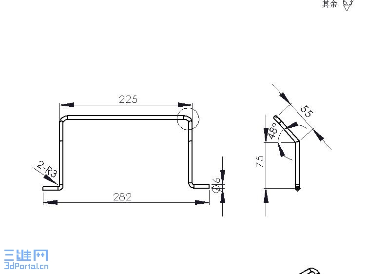
上次在各位高手的指点下绘出了如图所示的零件,但是在出工程图时出现了一个问题,就是在标注圆圈处圆弧R8的时候,出现了:“所选实体无法转换成直线或圆弧。”的提示,再次请教各位大侠。
- H7 O: B" Y/ v6 R  I
. L2 f) ]) Y- F! Q[ 本帖最后由 lyzhangqi 于 2006-12-21 13:03 编辑 ]
﹚1.jpg
发表于 2006-12-21 10:31:44 | 显示全部楼层 来自: 中国内蒙古呼和浩特
加一个辅助投影视图,在辅助投影视图上标注。
发表于 2006-12-21 10:53:45 | 显示全部楼层 来自: 中国福建泉州
选择55mm段,增加一辅助投影视图,因为那个R8在主图中不正视。
 楼主| 发表于 2006-12-21 13:02:15 | 显示全部楼层 来自: 中国浙江金华
谢谢3楼朋友的不吝赐教
发表回复
您需要登录后才可以回帖 登录 | 注册

本版积分规则


Licensed Copyright © 2016-2020 http://www.3dportal.cn/ All Rights Reserved 京 ICP备13008828号

小黑屋|手机版|Archiver|三维网 ( 京ICP备2023026364号-1 )

快速回复 返回顶部 返回列表