QQ登录

只需一步,快速开始

登录 | 注册 | 找回密码

三维网

 找回密码
 注册

QQ登录

只需一步,快速开始

展开

通知     

查看: 2438|回复: 24
收起左侧

[讨论结束] 关于视图的 问题?

[复制链接]
发表于 2006-12-16 16:47:54 | 显示全部楼层 |阅读模式 来自: 中国湖北咸宁

马上注册,结识高手,享用更多资源,轻松玩转三维网社区。

您需要 登录 才可以下载或查看,没有帐号?注册

x
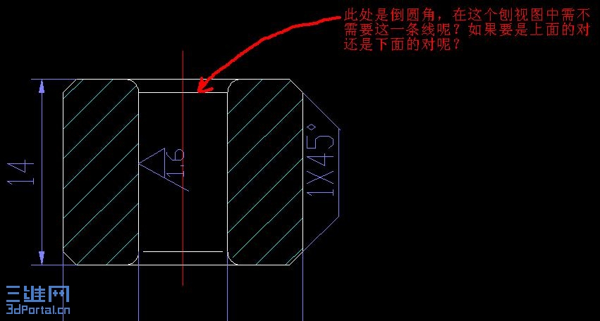
关于视图的 问题?希望高手指导!!
2 i; k; m3 a# G$ }
  H; U1 ^0 }& ~3 W* \/ t6 f0 U[ 本帖最后由 zyxwq 于 2007-10-25 11:05 编辑 ]
3.jpg
发表于 2006-12-16 17:07:59 | 显示全部楼层 来自: 中国湖北荆州
习惯上是要那条线的,这样比较自然
发表于 2006-12-16 19:30:33 | 显示全部楼层 来自: 中国江西九江
需要的,应该是上面正确。
发表于 2006-12-16 20:08:07 | 显示全部楼层 来自: 中国河北沧州
我认为楼主应该是上面的正确.
 楼主| 发表于 2006-12-16 22:06:54 | 显示全部楼层 来自: 中国湖北咸宁
但是我认为这是一个面,是不需要哪个线的因为它们是一个圆滑的过度,是整一个面,原则上是不能用那个线的!希望能用机械制图的原则来解释!
发表于 2006-12-16 22:28:52 | 显示全部楼层 来自: 中国河南焦作
可不画线,若画,则用下面的画法(表示过渡线)
发表于 2006-12-17 12:16:39 | 显示全部楼层 来自: 中国河南新乡
个人感觉不应该有那条线,因为光滑过度的面
发表于 2006-12-17 15:34:46 | 显示全部楼层 来自: 中国上海
倒圆角、相切无线、像45度角有。
发表于 2006-12-18 10:20:29 | 显示全部楼层 来自: 中国江苏苏州

不需要的

我们总工对于这样的圆弧过渡面是不许有线的。.
发表于 2006-12-18 10:33:25 | 显示全部楼层 来自: 中国北京
不要,因为光滑过度不要画线。
发表于 2006-12-18 16:37:05 | 显示全部楼层 来自: 中国江苏南京
无需画线,因为是圆弧过渡。
发表于 2006-12-18 19:22:44 | 显示全部楼层 来自: 中国河北保定
同意6楼plc版主的说法。选上面的回去好好重温一下《机械制图》。
5 ?0 v' V% y# P* w' [
( f6 e5 n: x, F. F6 d/ F[ 本帖最后由 zhengh 于 2006-12-18 19:24 编辑 ]
发表于 2006-12-19 10:36:37 | 显示全部楼层 来自: 中国广东深圳
可不画线,若画,则用下面的画法(表示过渡线),但过渡线应该用细实线而不是粗实线.
发表于 2006-12-19 11:10:56 | 显示全部楼层 来自: 中国北京
倒角的时候可有可无 圆角的时候需要吗?
发表于 2006-12-19 11:38:47 | 显示全部楼层 来自: 中国天津
我想应该是需要的。同意三楼。
发表于 2006-12-21 12:36:13 | 显示全部楼层 来自: 中国山东济宁
我觉得只要连接出是圆滑的就不该有呀,有台才有
发表于 2006-12-21 12:47:14 | 显示全部楼层 来自: 中国北京

习惯上要画

为了更清楚表达视图,在很多地方都要画线,如槽钢、角钢的光滑过渡处。
" l: q+ X' \+ ]5 y如图所示。
槽钢.JPG
发表于 2006-12-21 15:34:09 | 显示全部楼层 来自: 中国北京
这条线是应该有的,表达更明确
发表于 2006-12-21 17:20:24 | 显示全部楼层 来自: 中国湖北武汉
这个线应该有的,但也不是这样的画法吧,那条线两边断开一点就可以表示是弧面了吧。
发表于 2006-12-22 05:49:58 | 显示全部楼层 来自: 中国辽宁大连
同意6楼看法!你可以参考三通弯头处过度的画法!
发表于 2006-12-22 14:08:10 | 显示全部楼层 来自: 中国山东烟台
我认为,此线可画可不画,要画下面的较好
发表于 2006-12-23 11:10:21 | 显示全部楼层 来自: 中国吉林吉林市
光滑过渡不要画线。通过其他视图表示清楚。
 楼主| 发表于 2006-12-23 20:48:29 | 显示全部楼层 来自: 中国湖北咸宁
这么多 的 人跟贴子,各有个的理!真不知道那个说 的对啊!
发表于 2007-1-5 09:55:05 | 显示全部楼层 来自: 中国四川成都
这条线是应该有,表达更明确.有比没好
发表于 2007-1-5 10:03:35 | 显示全部楼层 来自: 中国北京
看国家机械制图标准。论坛上有!干活依照规矩!
发表回复
您需要登录后才可以回帖 登录 | 注册

本版积分规则


Licensed Copyright © 2016-2020 http://www.3dportal.cn/ All Rights Reserved 京 ICP备13008828号

小黑屋|手机版|Archiver|三维网 ( 京ICP备2023026364号-1 )

快速回复 返回顶部 返回列表