QQ登录

只需一步,快速开始

登录 | 注册 | 找回密码

三维网

 找回密码
 注册

QQ登录

只需一步,快速开始

展开

通知     

查看: 2598|回复: 8
收起左侧

[讨论] CAD全國比賽試題

[复制链接]
发表于 2017-6-10 15:00:19 | 显示全部楼层 |阅读模式 来自: 中国浙江嘉兴
特征建模
主题分类用于问题归类:

马上注册,结识高手,享用更多资源,轻松玩转三维网社区。

您需要 登录 才可以下载或查看,没有帐号?注册

x
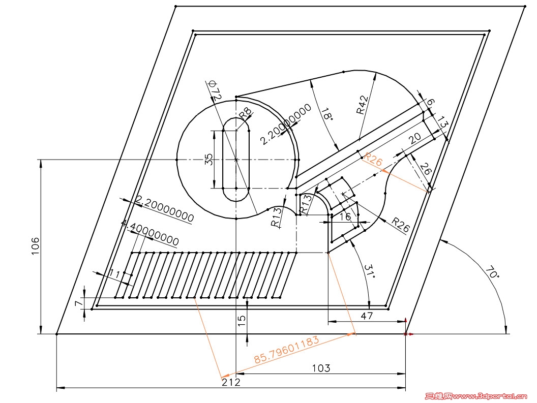
他網看到的題目,如下試作了,就不知道對不對.* V: P1 |4 ^9 i, I4 r) U
% e2 `% m9 f5 B2 b
諸大有興趣試作相互比對了!1 L, W7 H# _( J8 s& y
4 o" u5 v7 l$ x8 G* D
1.png
) H* i+ o9 ~- {" s6 k  n; y3 I
& I2 p7 I% `. z; Y% O0 ]6 u; F H08.png % X) j$ V- Q& F: r; u( v
8 [9 m2 _/ Y* x) |, Q2 \& G" f
2.png
4 X; O+ t# ^& m6 a! h
8 p  D: I# ~1 O3 C& G) \ 3.png - g: t) H5 _- U9 P- Z- ~
发表于 2017-6-11 20:19:18 | 显示全部楼层 来自: 中国广东肇庆
这图看上去有点晕,估计一时半刻搞不清其中的关系。
 楼主| 发表于 2017-6-12 17:22:35 | 显示全部楼层 来自: 中国浙江嘉兴
如下有人畫出,但有差異,不知是不同軟件作畫的精度因數,還是某個步驟有差異造成的??6 j0 i3 l0 A# R9 k( b% c

* s9 |: h9 E3 T' _. n7 C; z* A就沒人想研究一下嗎?
6 \, E6 a0 N, e, v5 x! j# _6 e
+ M1 H, I" q2 E+ ?9 |9 {/ B0 h9 U7 {
012323.jpg 8 @0 t  w- G0 {  }3 c
发表于 2017-6-12 17:49:09 | 显示全部楼层 来自: 中国广东肇庆
ryouss 发表于 2017-6-12 17:22
5 W$ u" {7 L1 d; ]' `0 f0 z如下有人畫出,但有差異,不知是不同軟件作畫的精度因數,還是某個步驟有差異造成的??9 M" }0 I4 T/ f5 l

8 m% o- E& [2 d% w就沒人想研究一下嗎? ...
( O5 V! v0 _3 {1 V  P
今天太热,现在有点头痛,晚上找个时间画一下看看。
发表于 2017-6-12 22:18:15 | 显示全部楼层 来自: 中国广东肇庆
本帖最后由 SW2016 于 2017-6-12 22:35 编辑 4 Q" ^" H2 j! D; _+ [: H

: u, x8 n- w; E& D" D画了一下,看得有点眼花,不知有没有看错。
% i) ]0 c3 F: m# n+ A( O7 [ 草图.jpg
9 w* @4 C+ u9 V2 M9 a CT1.jpg 7 x7 U4 B* u* t; w* v. U
CT2.jpg
发表于 2017-6-12 22:27:41 | 显示全部楼层 来自: 中国广东肇庆
找了半天,没找到J=13在哪。
( F' V; O8 F# f, L/ X: V出现差异的原因应该是下面那排斜孔,我这部分的草图不是用阵列,而是用等长关系来约束。

评分

参与人数 1三维币 +3 收起 理由
阿帕奇 + 3

查看全部评分

 楼主| 发表于 2017-6-13 09:06:41 | 显示全部楼层 来自: 中国浙江嘉兴
本帖最后由 ryouss 于 2017-6-13 09:44 编辑
( U7 B7 m1 z- k
SW2016 发表于 2017-6-12 22:27
1 b" `3 _% R2 p2 B- @找了半天,没找到J=13在哪。5 @" F9 K! _+ I
出现差异的原因应该是下面那排斜孔,我这部分的草图不是用阵列,而是用等长关 ...
6 I- O8 `% }3 p# i+ k: ^
謝謝S大的參與支持9 r- I; j0 P: L/ z0 n8 `8 z

4 e; b$ j3 o& d  n如下圖1,知道差異點啦!原來是兩個尺寸看錯位置了,圖2是正確的.* K$ u9 U9 S; e, E

* |5 t" m0 F& c. h9 x9 j4 |圖19 E' {2 }! N# F3 X. m0 H) J
4.png ! t  b1 O; c# \) Y: @+ O

. |  x% \9 ?- \/ Z. Z( j" \' d* ^& D6 M' q& L7 C
, m# r; ^" C7 z' |7 U; R3 J
圖2
! u1 t* Y4 j: I3 C0 p# V" P; ?/ N: V+ M" @% m
5.png 4 ]3 ~3 h5 s% M8 j
发表于 2017-6-14 09:47:01 | 显示全部楼层 来自: 中国广东肇庆
做梁大这题需要点耐心,试画了一下,结果和5楼一样,就不上图了。

点评

謝謝關心!因開始看錯尺寸位置,和他者尺寸有出入才請諸大試做比對!  发表于 2017-6-14 10:16
发表回复
您需要登录后才可以回帖 登录 | 注册

本版积分规则


Licensed Copyright © 2016-2020 http://www.3dportal.cn/ All Rights Reserved 京 ICP备13008828号

小黑屋|手机版|Archiver|三维网 ( 京ICP备2023026364号-1 )

快速回复 返回顶部 返回列表