- 积分
- 868
UID714
主题
在线时间 小时
注册时间2006-1-25
|

楼主 |
发表于 2016-11-4 10:38:50
|
显示全部楼层
来自: 中国天津
本帖最后由 qqqxyz 于 2016-11-4 11:02 编辑
6 L5 @% j$ |" s! F u" w
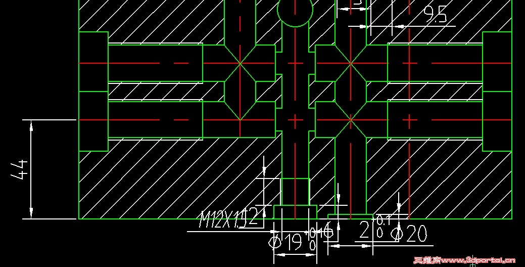
5 g* v$ b; d' k: M. Y* Z* h看来真是交流有问题。沉头只有柱形沉头,就没有锥孔了吗?我说的是锥形沉头孔啊!2 S$ T4 a1 }/ `& i! n
一个简单的油口:一个锪平平面,一个螺纹孔,一个钻孔。 d8 F, H( R6 ^1 A, K6 ~
) R8 q) J6 U. G
现在的问题是:6 Q2 d6 b" R& Q3 _' B/ J
1.螺纹深度怎么控制* V8 Q. p* ?" M J
2.一个倒到螺纹大径的倒角和螺纹孔钻孔的钻头钻尖,就是这么两个特征怎么做。/ }$ ?0 j3 z6 X9 c8 @9 C0 S) ^0 C
! I; _1 o4 V6 X% D
我没有说不是锪平啊,但是我不是指的那个呀!涉及到锪平到底是用柱形沉头还是用光孔特征做重要吗?
1 R% j& b$ j( ?( d1 n" _% Z; V倒是您附图用高级孔不是正好吗,看来倒角和钻尖您一般是不画的。2 [. E; V/ R' V: y
按照您的方法可以做出来,只是主要尺寸还要减去倒角的深度,如果有老图可以量一下,新图的话要计算或者凑尺寸都是比较麻烦的。
' [/ t, B& r( U3 V螺纹另外用装饰螺纹另作,是不能保存在收藏里的。英制尺寸比较难记;深度要和其他图纸一致,还要翻老图纸; 也是麻烦的, 不是吗?
' u1 p+ v8 p! Q6 U8 ?! R$ f5 N" d8 {发帖就是为sw新功能的探讨,我用库一样能够做出来。0 L0 L0 ?' w3 f1 O; f) n
有更好的功能能够省些时间,不是更好吗?8 | v6 W, y5 s" _' q5 o
4 K9 G) {% ?4 \ |
|