QQ登录

只需一步,快速开始

登录 | 注册 | 找回密码

三维网

 找回密码
 注册

QQ登录

只需一步,快速开始

展开

通知     

查看: 2582|回复: 13
收起左侧

[已解决] 两个马达设置分别启动,为什么运动不按要求进行?

[复制链接]
发表于 2016-2-14 19:50:43 | 显示全部楼层 |阅读模式 来自: 中国河北唐山

马上注册,结识高手,享用更多资源,轻松玩转三维网社区。

您需要 登录 才可以下载或查看,没有帐号?注册

x
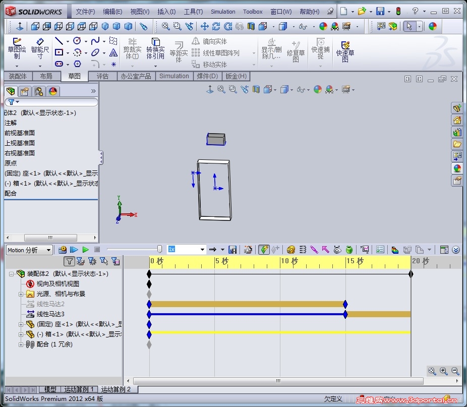
本帖最后由 mingri 于 2016-2-14 19:57 编辑 : G% @1 T: a# G9 K$ g

" m4 n! n7 S$ t) I如图,设置第一个电机向上运动,第二个水平移动,为什么第一个电机停止后,箱体不但水平移动还向上移动呢?
2.jpg
1.jpg
3.jpg
4.jpg
发表于 2016-2-17 09:06:56 | 显示全部楼层 来自: 中国江苏苏州
同感,求高手解
发表于 2016-2-17 11:51:08 | 显示全部楼层 来自: 中国四川乐山
这个要建基于事件的运动
 楼主| 发表于 2016-2-23 22:16:28 | 显示全部楼层 来自: 中国河北唐山
啥都没准 发表于 2016-2-17 11:51
# Q3 t$ A8 H, D4 c这个要建基于事件的运动
9 A$ _3 i( \; q1 M
谢谢高手!有相关学习资料吗?
发表于 2016-2-23 22:40:43 | 显示全部楼层 来自: 中国安徽蚌埠
确认中间15秒状态更改过,重新计算后动画实现。回到18秒可以看电机的状态

评分

参与人数 1三维币 +2 收起 理由
chenjun520601 + 2 技术讨论

查看全部评分

发表于 2016-2-24 09:11:13 | 显示全部楼层 来自: 中国四川乐山
很遗憾的告诉你,基于事件的仿真,好久没有搞了,忘记了,5 c" A) F% G7 d% A0 T
我只是简单的做了动画,很原始的那种,步骤有点复杂,就不献丑了0 X! ?/ S0 e; R2 F( N; k8 D, f% U& @
传个效果吧
练习1.gif

评分

参与人数 1三维币 +1 收起 理由
阿帕奇 + 1

查看全部评分

 楼主| 发表于 2016-2-24 22:39:59 | 显示全部楼层 来自: 中国河北唐山
jinqin11 发表于 2016-2-23 22:40" F& u# Y( F: Z' h; h' r6 k
确认中间15秒状态更改过,重新计算后动画实现。回到18秒可以看电机的状态

9 z4 i8 K1 E$ M) ~5 s6 b能详细些吗?
 楼主| 发表于 2016-2-24 22:40:43 | 显示全部楼层 来自: 中国河北唐山
啥都没准 发表于 2016-2-24 09:11, \4 p0 k+ U2 b" u, O: v1 u) ~
很遗憾的告诉你,基于事件的仿真,好久没有搞了,忘记了,
9 s& b4 _# U6 k2 ]. Y& R7 o我只是简单的做了动画,很原始的那种,步骤有点 ...
9 x7 `+ ?; i( x, w2 ?6 q( E
你这个可以传上来吗?
发表于 2016-3-15 08:28:30 | 显示全部楼层 来自: 中国安徽蚌埠
有些配合 需要压缩和解压! f3 k. R4 d  U6 z; _  \1 J
编辑是先选择时间点,添加特征帖,修改特征帖,(就是压缩和解压),计算运行。
! B* ]* q6 k9 P1 }. Q2 u4 Q$ K
315.gif

运动块.rar

111.79 KB, 下载次数: 7

2013

评分

参与人数 1三维币 +3 收起 理由
阿帕奇 + 3

查看全部评分

 楼主| 发表于 2016-3-17 08:49:20 | 显示全部楼层 来自: 中国河北唐山
jinqin11 发表于 2016-3-15 08:28
. R+ K) F! |& i2 `8 `1 V( W有些配合 需要压缩和解压
) c3 D( r( g! D+ d) P! O编辑是先选择时间点,添加特征帖,修改特征帖,(就是压缩和解压),计算运行。
% R( d3 x7 J9 M: _# k% {0 a ...

7 d5 b! \% o  @谢谢谢谢!我还在弄,可惜你的版本高,装配图我打不开
发表于 2016-3-20 16:40:42 | 显示全部楼层 来自: 中国安徽蚌埠
mingri 发表于 2016-3-17 08:49  H- P3 @1 S7 N9 x% M% F9 S" x
谢谢谢谢!我还在弄,可惜你的版本高,装配图我打不开
; E: z- J( \5 f7 p& g4 F$ ?
先添加好特征,点下时间轴,比如5秒,点下特征,再按添加帧、然后就可以编辑帧的开关,
发表于 2016-3-20 16:40:47 | 显示全部楼层 来自: 中国安徽蚌埠
本帖最后由 jinqin11 于 2016-3-20 16:42 编辑
2 Q) Z% {7 Z* f
mingri 发表于 2016-3-17 08:49
: j/ s3 B; T: r. W- r; K4 s谢谢谢谢!我还在弄,可惜你的版本高,装配图我打不开

% w- t/ N9 P: _) M9 q- d0 s. _0 J先添加好特征,点下时间轴,比如5秒,点下特征,再按添加帧、然后就可以编辑帧的开关,
0320.png
 楼主| 发表于 2016-3-21 14:59:48 | 显示全部楼层 来自: 中国河北唐山
jinqin11 发表于 2016-3-20 16:40
  v6 B( H& U! I$ l先添加好特征,点下时间轴,比如5秒,点下特征,再按添加帧、然后就可以编辑帧的开关,
( Z; E. Q1 ]# d/ {. T' D" _
非常详细,对我很有用,非常感谢!下面是我做的动画
cf装配体.gif
 楼主| 发表于 2016-3-21 15:17:57 | 显示全部楼层 来自: 中国河北唐山
但是还有两个问题:' N$ [0 i+ J. I, W) K- U2 Z" h
1是保存动画时提示“运动算例结果已过期”,如果选是,重新计算,这个动画就乱了,那个运动体就不知道飞哪里去了。选否是这样正常的,不知道为什么?* w- O+ @: ]7 n6 Z8 I3 Y6 a
2是不知道为什么向下走时向上走一下,再向下走?
123.jpg
发表回复
您需要登录后才可以回帖 登录 | 注册

本版积分规则


Licensed Copyright © 2016-2020 http://www.3dportal.cn/ All Rights Reserved 京 ICP备13008828号

小黑屋|手机版|Archiver|三维网 ( 京ICP备2023026364号-1 )

快速回复 返回顶部 返回列表