QQ登录

只需一步,快速开始

登录 | 注册 | 找回密码

三维网

 找回密码
 注册

QQ登录

只需一步,快速开始

展开

通知     

查看: 10163|回复: 6
收起左侧

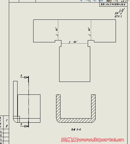
[求助] 这展开图和折弯图形是怎样画出图的?

[复制链接]
发表于 2015-11-30 20:06:03 | 显示全部楼层 |阅读模式 来自: 中国广东东莞

马上注册,结识高手,享用更多资源,轻松玩转三维网社区。

您需要 登录 才可以下载或查看,没有帐号?注册

x
请大家帮忙,展开图傍边的折弯视图要怎样才能自动画出来?谢谢!
折弯图形.jpg
发表于 2015-12-1 10:31:54 | 显示全部楼层 来自: 中国广东广州
在工程图里先放展开图,在相应位置上插入需要的视图,隐藏不需要的视图!见图
; J$ y6 z) S5 m- {# K7 y  y: D 捕获.JPG

评分

参与人数 1三维币 +3 收起 理由
阿帕奇 + 3

查看全部评分

发表于 2015-12-1 13:06:35 | 显示全部楼层 来自: 中国四川乐山
用绘制的折弯
发表于 2015-12-1 21:03:30 | 显示全部楼层 来自: 中国安徽蚌埠
用钣金画零件,系统自动会有个展开配置,需要零件图出默认配置,需要展开图,选择展开配置

评分

参与人数 1三维币 +3 收起 理由
阿帕奇 + 3

查看全部评分

 楼主| 发表于 2015-12-2 19:40:46 | 显示全部楼层 来自: 中国广东东莞
jirong.peng 发表于 2015-12-1 10:31
" x  S  e. G4 h在工程图里先放展开图,在相应位置上插入需要的视图,隐藏不需要的视图!见图

6 R% g4 E1 }. P# E用隐藏的方法简单的图形可以用一下,但是复杂的图形就麻烦了,复杂图形隐藏时有时不知从那里下手。
 楼主| 发表于 2015-12-2 19:45:58 | 显示全部楼层 来自: 中国广东东莞
jinqin11 发表于 2015-12-1 21:03* y8 o6 P) I* \+ [# s( g
用钣金画零件,系统自动会有个展开配置,需要零件图出默认配置,需要展开图,选择展开配置
% K+ A# C; @# q/ [4 I& x
用配置这方法自动显示折弯图形这个方法我不会哦,能演示下给大家看看吗?谢谢!
发表于 2015-12-3 21:49:49 | 显示全部楼层 来自: 中国安徽蚌埠
意思下
1203.gif
12033.gif
发表回复
您需要登录后才可以回帖 登录 | 注册

本版积分规则


Licensed Copyright © 2016-2020 http://www.3dportal.cn/ All Rights Reserved 京 ICP备13008828号

小黑屋|手机版|Archiver|三维网 ( 京ICP备2023026364号-1 )

快速回复 返回顶部 返回列表