QQ登录

只需一步,快速开始

登录 | 注册 | 找回密码

三维网

 找回密码
 注册

QQ登录

只需一步,快速开始

展开

通知     

查看: 3587|回复: 9
收起左侧

[已解决] 此钣金零件生成工程图时不能自动生成平板型式

[复制链接]
发表于 2015-6-29 10:59:52 | 显示全部楼层 |阅读模式 来自: 中国江苏南京

马上注册,结识高手,享用更多资源,轻松玩转三维网社区。

您需要 登录 才可以下载或查看,没有帐号?注册

x
本帖最后由 贝尔电气 于 2015-6-29 16:46 编辑 * u: [+ O' G7 C% N: D
! T0 @% I$ `" M, j# I9 h
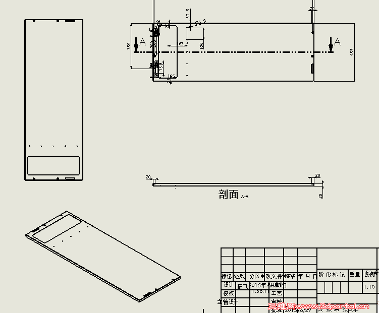
此钣金零件生成工程图时不能自动生成展开图 44[3MT2_CCWEG`VZ{9YP{4N.png

4单元气箱上盖板.zip

317.02 KB, 下载次数: 25

发表于 2015-6-29 12:29:19 | 显示全部楼层 来自: 中国江苏无锡
平板形式。
发表于 2015-6-29 13:11:56 | 显示全部楼层 来自: 中国上海
打不开你画的 随便画了画
00.jpg
发表于 2015-6-29 21:39:21 | 显示全部楼层 来自: 中国安徽蚌埠
本帖最后由 jinqin11 于 2015-6-29 21:41 编辑 6 q. X. z5 k' X) `' u6 }  O
6 k( b% \2 v% C3 z
其实展开图就是另外一种配置,选择合适的配置就能出现
* g& M8 A2 F1 D/ R5 A( R  Y
06292.gif
06293.gif

评分

参与人数 1三维币 +3 收起 理由
阿帕奇 + 3

查看全部评分

 楼主| 发表于 2015-6-30 11:44:18 | 显示全部楼层 来自: 中国江苏南京
上面老兄讲的方法没有解决问题,还是不能在工程图自动生成平板型式
发表于 2015-6-30 17:34:25 | 显示全部楼层 来自: 中国广东广州
本帖最后由 jirong.peng 于 2015-6-30 17:48 编辑 ' _) Y) g$ T$ x/ D
; i. ~# U- C+ h
LZ配置不知道出了什么状况,请添加新得配置,删除旧配即可!!
( G2 C7 E2 o8 H
: N- B' b  z1 U+ |) I* w( e6 i% ?
0630.gif
发表于 2015-6-30 18:51:40 | 显示全部楼层 来自: 中国安徽蚌埠
贝尔电气 发表于 2015-6-30 11:44 static/image/common/back.gif# j0 P7 w' u# N. h- e: E1 d7 o
上面老兄讲的方法没有解决问题,还是不能在工程图自动生成平板型式

1 {( @2 z  p' D" g' n8 M) ?我也打不开你的,首先要确认你的图有展开的装配,用钣金件制作的会自动生成平板式配置
 楼主| 发表于 2015-6-30 19:10:46 | 显示全部楼层 来自: 中国江苏南京
jirong.peng 发表于 2015-6-30 17:34 static/image/common/back.gif
1 w5 R! V0 h  z: l6 t& j; ~; _LZ配置不知道出了什么状况,请添加新得配置,删除旧配即可!!
* S0 p5 k! j) S' K5 [" `% {1 r
用你的方法此图问题已解决,但还有的就一一弯边,怎么改都不行
发表于 2015-7-1 10:59:28 | 显示全部楼层 来自: 中国广东广州
请上图!!!
 楼主| 发表于 2015-7-1 11:39:32 | 显示全部楼层 来自: 中国江苏南京
jirong.peng 发表于 2015-7-1 10:59 static/image/common/back.gif* l6 Y7 W) R/ z
请上图!!!
7 e& T6 R, j# {
能加QQ吧?
* x0 S0 r% E9 }) K- J
发表回复
您需要登录后才可以回帖 登录 | 注册

本版积分规则


Licensed Copyright © 2016-2020 http://www.3dportal.cn/ All Rights Reserved 京 ICP备13008828号

小黑屋|手机版|Archiver|三维网 ( 京ICP备2023026364号-1 )

快速回复 返回顶部 返回列表