QQ登录

只需一步,快速开始

登录 | 注册 | 找回密码

三维网

 找回密码
 注册

QQ登录

只需一步,快速开始

展开

通知     

查看: 1522|回复: 7
收起左侧

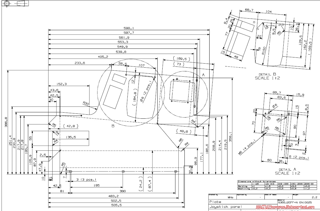
[求助] 这个三维图怎么画

[复制链接]
发表于 2014-11-4 10:46:34 | 显示全部楼层 |阅读模式 来自: 中国江苏苏州

马上注册,结识高手,享用更多资源,轻松玩转三维网社区。

您需要 登录 才可以下载或查看,没有帐号?注册

x
请教哪位大师指点一二,刚刚入道
这个图怎么画.jpg
QQ截图20141104104644.jpg
发表于 2014-11-4 13:14:36 | 显示全部楼层 来自: 中国北京
用钣金一点点搞呗
/ B$ K, F1 L* H, t. k9 N目测不存在什么难度,就是稍微麻烦些。
发表于 2014-11-4 14:07:07 | 显示全部楼层 来自: 中国广东深圳
不存在困难几个折弯就可搞定!
 楼主| 发表于 2014-11-4 16:58:23 | 显示全部楼层 来自: 中国江苏苏州
自己搞了好长时间也没有弄出来( x1 {0 H: D$ ^# G% d2 ~
关键是折弯间隙太大了,不知道怎么回事
QQ截图20141104165918.jpg
QQ截图20141104165931.jpg
QQ截图20141104165955.jpg
 楼主| 发表于 2014-11-4 16:59:37 | 显示全部楼层 来自: 中国江苏苏州
danilso 发表于 2014-11-4 14:07 static/image/common/back.gif
* B6 ^$ a1 b4 d- x( l不存在困难几个折弯就可搞定!
: |+ g, W+ g% a5 Y
能否赐教点钣金方面的资料
 楼主| 发表于 2014-11-4 17:00:08 | 显示全部楼层 来自: 中国江苏苏州
caption_cn 发表于 2014-11-4 13:14 static/image/common/back.gif
* w% d4 V1 |: [- b+ \用钣金一点点搞呗5 P% m# Y! h  z
目测不存在什么难度,就是稍微麻烦些。
% R; {4 O- q- w) b2 O; Q6 M
可否指点一二
发表于 2014-11-4 17:01:59 | 显示全部楼层 来自: 中国河南安阳
brazingqin 发表于 2014-11-4 16:58 static/image/common/back.gif) u: p6 N5 l; `* ]2 U& }
自己搞了好长时间也没有弄出来
2 g* S; Y  X- Z/ h0 V9 K0 Q关键是折弯间隙太大了,不知道怎么回事
: q5 [3 o) W5 w' M7 z
把闭合角为0就可以了+ b+ ]! j: B/ j) r3 P* S( y. u- e& o
就是尺寸太多  没时间搞    看着不难的
 楼主| 发表于 2014-11-5 11:19:59 | 显示全部楼层 来自: 中国江苏苏州
ln0108 发表于 2014-11-4 17:01 static/image/common/back.gif7 ]8 o; l. `; s4 C; c( x
把闭合角为0就可以了
3 Z! q0 r8 o: t就是尺寸太多  没时间搞    看着不难的

4 k; t4 e. D6 O" l2 u$ E有些干涉。
QQ截图20141105112128.jpg
发表回复
您需要登录后才可以回帖 登录 | 注册

本版积分规则


Licensed Copyright © 2016-2020 http://www.3dportal.cn/ All Rights Reserved 京 ICP备13008828号

小黑屋|手机版|Archiver|三维网 ( 京ICP备2023026364号-1 )

快速回复 返回顶部 返回列表