QQ登录

只需一步,快速开始

登录 | 注册 | 找回密码

三维网

 找回密码
 注册

QQ登录

只需一步,快速开始

展开

通知     

查看: 1189|回复: 4
收起左侧

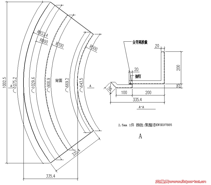
[求助] 哪位大神知道这个图怎么用SolidWorks或者pro-E画出来,并展开呀!!求助呀!谢谢了!

[复制链接]
发表于 2014-6-11 19:10:32 | 显示全部楼层 |阅读模式 来自: 中国广东广州

马上注册,结识高手,享用更多资源,轻松玩转三维网社区。

您需要 登录 才可以下载或查看,没有帐号?注册

x
如题,大神帮帮忙了,谢谢了!非常感谢了!!!!!!!!!!!8 l  c: J; d5 B
QQ截图20140611190947.jpg
发表于 2014-6-11 19:48:42 | 显示全部楼层 来自: 中国辽宁本溪
抽丁是用成型工具做的,SW无法展开的!!!!!!!!!
 楼主| 发表于 2014-6-11 20:28:02 | 显示全部楼层 来自: 中国广东广州
zhqlmy7273 发表于 2014-6-11 19:48 static/image/common/back.gif
  G! |' r/ j5 a/ I抽丁是用成型工具做的,SW无法展开的!!!!!!!!!
, i1 t/ A* }4 F2 ~
只要能画出前面那一节就可以了,帮帮忙,怎么画的,谢谢!!
发表于 2014-6-12 09:18:08 | 显示全部楼层 来自: 中国北京
是我理解有问题么,不难啊, h! n: A; m6 }5 o6 x
2.jpg
1.jpg

1.zip

110.64 KB, 下载次数: 4

 楼主| 发表于 2014-6-13 17:56:10 | 显示全部楼层 来自: 中国广东广州
250272313 发表于 2014-6-12 09:18 static/image/common/back.gif
3 N3 U7 H  K, T是我理解有问题么,不难啊

$ Z* [9 M2 t# o) s  Z* }$ _4 a谢谢了,大神!
发表回复
您需要登录后才可以回帖 登录 | 注册

本版积分规则


Licensed Copyright © 2016-2020 http://www.3dportal.cn/ All Rights Reserved 京 ICP备13008828号

小黑屋|手机版|Archiver|三维网 ( 京ICP备2023026364号-1 )

快速回复 返回顶部 返回列表