QQ登录

只需一步,快速开始

登录 | 注册 | 找回密码

三维网

 找回密码
 注册

QQ登录

只需一步,快速开始

展开

通知     

查看: 1918|回复: 10
收起左侧

[求助] 谁能帮我看看如图所示的上箱体?有点没看明白。

[复制链接]
发表于 2014-6-11 16:07:42 | 显示全部楼层 |阅读模式 来自: 中国湖北咸宁

马上注册,结识高手,享用更多资源,轻松玩转三维网社区。

您需要 登录 才可以下载或查看,没有帐号?注册

x
本帖最后由 kieso123 于 2014-6-12 08:10 编辑
: |+ Q8 q+ ^- r. g
( F7 A( W, m% c! b谁能帮我看看如图所示的上箱体?有点没看明白。8 g- Z. Q$ o. g! p
A1上箱体A1.png
01.PNG
02.PNG
03.PNG
04.PNG
05.PNG

A1上箱体A1.rar

56.66 KB, 下载次数: 5

发表于 2014-6-11 19:25:37 | 显示全部楼层 来自: 中国江苏无锡
虽有附件,但没贴图,下载要流量,呵呵。。。
 楼主| 发表于 2014-6-12 08:11:27 | 显示全部楼层 来自: 中国湖北咸宁
我爱用acad 发表于 2014-6-11 19:25 static/image/common/back.gif8 D5 D- I; o& Y$ k, F. v1 D
虽有附件,但没贴图,下载要流量,呵呵。。。
. U* X) J3 e$ v; U4 S
已经上传了图片。
发表于 2014-6-12 09:16:24 | 显示全部楼层 来自: 中国山西太原
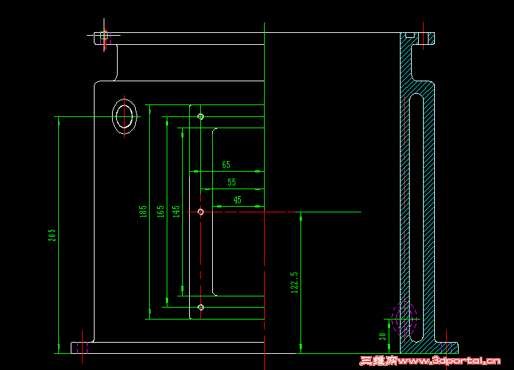
图纸表达基本清楚,不知哪里不明白。这是两个相通的筒体,两个筒体的中心距小于筒径,箱体都带有夹套,可能是热交换用的。两端是联接法兰,侧面有通夹套的通道法兰。总体结构并不复杂。

评分

参与人数 1三维币 +3 收起 理由
hero2006 + 3 应助

查看全部评分

 楼主| 发表于 2014-6-12 10:03:49 | 显示全部楼层 来自: 中国天津
gaoyns 发表于 2014-6-12 09:16 static/image/common/back.gif; k; R# g" C8 Q: [: |
图纸表达基本清楚,不知哪里不明白。这是两个相通的筒体,两个筒体的中心距小于筒径,箱体都带有夹套,可能 ...

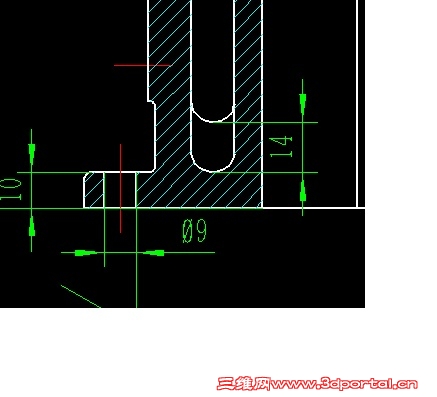
8 R5 N6 g: p, \( N如图所示,黄色部分有些不明白?
1 ]8 C4 p6 G1 r( S, Q4 ^) v6 B! G图05高度为何不等?
6 e% f7 k, T! I: j4 u7 [' H
01.PNG
05.PNG
06.PNG
发表于 2014-6-12 16:05:05 | 显示全部楼层 来自: 中国山西太原
kieso123 发表于 2014-6-12 10:03 static/image/common/back.gif
1 S& z; Z, R* o9 v如图所示,黄色部分有些不明白?1 t/ M* u0 i6 \2 O0 o2 M1 A
图05高度为何不等?
2 z! A9 U' n2 b# v
水夹套的底部不是同一水平面,上图中是左边高右边低,冷却水一般是低进高出,从你的图04可以看出,右下(距底面30)为进水口,左上(距底面205)出水口。但冬天仃止运行时需放掉夹套中的水,为了能将水排尽,用右下的口排水,此口应开在最低处。因此水夹套的底面有高有低。

评分

参与人数 1三维币 +5 收起 理由
hero2006 + 5 技术讨论

查看全部评分

发表于 2014-6-13 08:26:07 | 显示全部楼层 来自: 中国山东济南
既然需要别人帮助,下载附件怎么还要流量?5 R; h, M4 Y' C: R9 x" p7 B+ P
自己画画3D图吧,这个不难,人家那样设计可定有其道理的。
发表于 2014-6-15 18:32:29 | 显示全部楼层 来自: 中国广东广州
gaoyns 发表于 2014-6-12 16:05 static/image/common/back.gif
9 K- h: `$ V. }* R8 F水夹套的底部不是同一水平面,上图中是左边高右边低,冷却水一般是低进高出,从你的图04可以看出,右下( ...

, h+ E9 [# l( b2 H我仔细看了一下图纸,认为楼上说的值得探讨,高度不等是因为底部56宽度的缺口,为了保证中间夹套不漏及等厚度要求,所以上边为等厚度,宽为72,夹套中的流通靠上下M20的孔来进行的,保证流体和腔体互不相通,即不泄露。http://C:\\Users\\Administrator\\Desktop\\箱体1.jpg
0 m/ D7 I/ j# uhttp://C:\\Users\\Administrator\\Desktop\\箱体2.jpg
# J7 U( e) n* H8 q9 k; Y, vhttp://C:\\Users\\Administrator\\Desktop\\箱体3.jpg
发表于 2014-6-15 18:35:41 | 显示全部楼层 来自: 中国广东广州
箱体简单截图,黄色不等是因为此处是等厚度的缺口位置
箱体1.jpg
箱体2.jpg
箱体3.jpg
发表于 2014-6-16 10:55:56 | 显示全部楼层 来自: 中国山西太原
jk45mn 发表于 2014-6-15 18:32 static/image/common/back.gif
% f! I1 v) B* I+ W6 ]. s我仔细看了一下图纸,认为楼上说的值得探讨,高度不等是因为底部56宽度的缺口,为了保证中间夹套不漏及等 ...
0 a; A8 Z1 N. a1 E2 \
水夹套设计要求,不用时需将水排完。这个冷却水夹套底部两边高差为14mm,主要是考虑仃车时排光夹套中的水,排水孔位于最低处。至于下部的缺口在这样是没什么用处的,为了壁厚相等,左边抬高了14mm。+ J! w8 z5 C& b: O" D, f: l
第一个图的上下两剖面不应断开,应连成一个平面,都能剖切上。

评分

参与人数 1三维币 +5 收起 理由
hero2006 + 5 应助

查看全部评分

发表于 2014-6-22 10:59:09 | 显示全部楼层 来自: 中国广东广州
第一个图你指的是B-B剖面吗?如果是如图所示的部分,那这个没错,是分开的。
剖面.jpg
发表回复
您需要登录后才可以回帖 登录 | 注册

本版积分规则


Licensed Copyright © 2016-2020 http://www.3dportal.cn/ All Rights Reserved 京 ICP备13008828号

小黑屋|手机版|Archiver|三维网 ( 京ICP备2023026364号-1 )

快速回复 返回顶部 返回列表