QQ登录

只需一步,快速开始

登录 | 注册 | 找回密码

三维网

 找回密码
 注册

QQ登录

只需一步,快速开始

展开

通知     

查看: 2311|回复: 11
收起左侧

[求助] 工程图装饰螺纹线

[复制链接]
发表于 2014-5-28 12:03:36 | 显示全部楼层 |阅读模式 来自: 中国江苏常州

马上注册,结识高手,享用更多资源,轻松玩转三维网社区。

您需要 登录 才可以下载或查看,没有帐号?注册

x
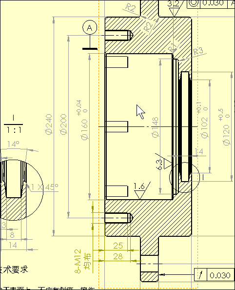
QQ图片20140528111426.jpg
" e2 N9 F9 o! m' g' t( [7 {如图,剖视图装饰螺纹线中间那个怎么去掉,我的都是高品质的显示啊。
发表于 2014-5-28 20:31:11 | 显示全部楼层 来自: 中国陕西西安
如去掉,所有螺纹线都不显示。
发表于 2014-5-28 21:26:04 | 显示全部楼层 来自: 中国广东深圳
选中那个不想显示的装饰螺纹线,右键,隐藏
 楼主| 发表于 2014-5-29 08:46:43 | 显示全部楼层 来自: 中国江苏常州
是啊,就是去掉中间那个,上下两个的也没了,这是不符合要求的。以前的剖视图那种不可见的装饰线都是自动隐藏掉的么,怎么这个剖视图就有问题,还是零件实体建的有问题
发表于 2014-5-29 10:24:47 | 显示全部楼层 来自: 中国广东中山
我也有遇到这个问题,按道理剖到中间位置,不会有中间那个孔的任何痕迹了吧??求大神回答!
 楼主| 发表于 2014-5-29 16:46:30 | 显示全部楼层 来自: 中国江苏常州
自己顶下,是不是问题太简单了,大家不高兴说啊
发表于 2014-5-29 18:24:27 | 显示全部楼层 来自: 中国四川德阳
先将螺纹线隐藏,再重新插入螺纹线
发表于 2014-6-5 10:01:31 | 显示全部楼层 来自: 中国天津
改为 草稿品质 再改回高品质 solidworks有很多功能就是这样不稳定
发表于 2014-6-5 11:08:55 | 显示全部楼层 来自: 中国河北唐山
你按图片的方式做下,试试- G2 B: s# B5 G. K0 E+ l) \
隐藏隐藏的边线.png
发表于 2015-3-25 08:31:45 | 显示全部楼层 来自: 中国安徽蚌埠
我昨天困惑一整天。哎,发现也很简单的事情
8 [: I1 E+ F8 ^: i) v7 {# O
03251.gif
发表于 2015-3-25 20:58:26 | 显示全部楼层 来自: 中国广东深圳
jinqin11 发表于 2015-3-25 08:31 static/image/common/back.gif
5 D& E1 ~( Q" n我昨天困惑一整天。哎,发现也很简单的事情
6 i: ?) S' h# P7 @' L, V. ]: N. I  q+ O
看到三楼我的回复没?我都回复了一年了。
发表于 2015-3-25 21:38:54 | 显示全部楼层 来自: 中国安徽蚌埠
NC@jiang@nan 发表于 2015-3-25 20:58 static/image/common/back.gif% b3 _& w% ~6 A) I' m
看到三楼我的回复没?我都回复了一年了。

/ S3 `& ^- E6 X: `我楼上的好像不太明白你说的啊啊
/ {5 g0 B* a. u1 B5 o哈哈哈啊
发表回复
您需要登录后才可以回帖 登录 | 注册

本版积分规则


Licensed Copyright © 2016-2020 http://www.3dportal.cn/ All Rights Reserved 京 ICP备13008828号

小黑屋|手机版|Archiver|三维网 ( 京ICP备2023026364号-1 )

快速回复 返回顶部 返回列表