QQ登录

只需一步,快速开始

登录 | 注册 | 找回密码

三维网

 找回密码
 注册

QQ登录

只需一步,快速开始

展开

通知     

查看: 2570|回复: 8
收起左侧

[讨论] 求各位大神帮忙看一看这张图纸的标注有没有问题。

[复制链接]
发表于 2014-1-8 22:31:05 | 显示全部楼层 |阅读模式 来自: 中国重庆

马上注册,结识高手,享用更多资源,轻松玩转三维网社区。

您需要 登录 才可以下载或查看,没有帐号?注册

x
工程图文档2.zip (49.63 KB, 下载次数: 7)
发表于 2014-1-8 23:45:12 | 显示全部楼层 来自: 中国广西南宁
楼上附件用CAXA2013才打得开,帮转成了CAD2000可打开的dwg。5 M+ E. }$ |- O* B. @, @4 L
CAXA电子图板2013-轴.jpg
. p6 v& T" P/ }' ?" W
0 u! c: X, o( p dwg工程图文档2.rar (40.6 KB, 下载次数: 3)
发表于 2014-1-11 22:38:15 | 显示全部楼层 来自: 中国陕西西安
本帖最后由 我爱用acad 于 2014-1-11 22:42 编辑 ( t- `6 e# X9 n$ s
+ X) o! W7 G% w, Q7 Y
1,可以在画图的时候稍微修改一下尺寸而标注它应该有的尺寸;装配图有夸张化法,零件图也可以。: X7 k6 T  B2 Y1 f/ D
2 r& J9 c* N! |2 H+ ?& f
5 n0 [2 n7 M9 q5 b
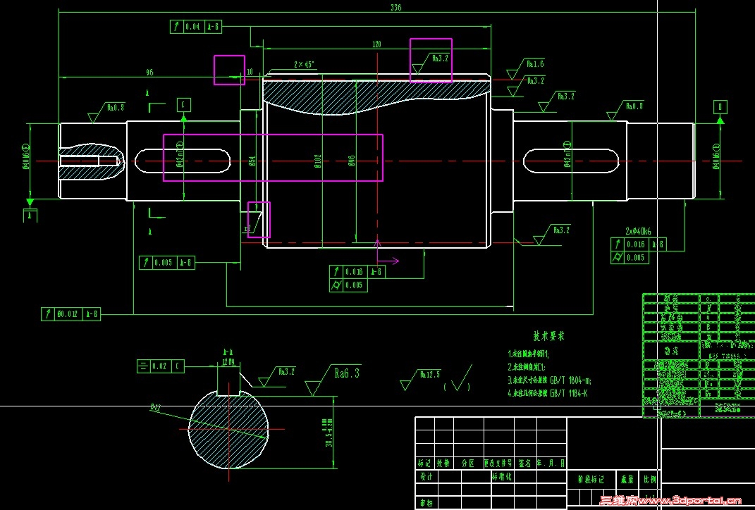
图面应重新布置,图框太小,几乎无法容纳足够要求的图素。中心孔未标注,轴段及键槽长度均未标注,缺少相应尺寸公差。! w2 |3 Z% V3 O1 \' J3 a  P
齿轮标注我不太熟,不多说。# v% T% Z) k# r/ Y4 m) }& k
捕获111.PNG

评分

参与人数 1三维币 +5 收起 理由
2005llnn + 5 应助

查看全部评分

发表于 2014-1-18 08:33:34 | 显示全部楼层 来自: 中国山东烟台
QQ截图20140118082845.jpg
1 F/ Z& W4 r; |9 C7 ]: V) g补充一下:
8 |4 i% ?5 b9 A4 X3 E1.剖面线比例过小
& C5 N1 L; \) H$ a+ j( d0 a2.水平尺寸有的么有对齐
  b# ]( T  ~' v% m& D+ L3.齿面标识的符号与上临尺寸间隙过小(主要还是版面过小)& Q$ Q0 P. ~" _4 R0 V
4.轴中尺寸应离开中心线等" S% @. O7 I2 _! D- H" [: f
5.为什么有炸开的尺寸?这个以后如果编辑你会发现很痛苦..
3 r6 v2 I8 X1 j$ p# u' D; j总的来说你这个图给人一种很臃肿不协调的感觉,加油啊!

评分

参与人数 1三维币 +5 收起 理由
2005llnn + 5 应助

查看全部评分

发表于 2014-1-18 11:39:01 | 显示全部楼层 来自: 中国陕西西安
sunice 发表于 2014-1-18 08:33 static/image/common/back.gif
3 J# S5 k, h( A. k, W9 O* P4 _补充一下:5 f" o! V- g0 U# m! X/ Z- N
1.剖面线比例过小* V1 e0 O8 I1 d, Y$ J, D( Q+ B
2.水平尺寸有的么有对齐

. ?) p4 [2 `: B( a1 B- _6 P咱们的意见二合一后,这个图就差不多了。
. l; Q0 @; J( h# S9 g
发表于 2014-1-18 13:38:25 | 显示全部楼层 来自: 中国浙江宁波
本帖最后由 yyejj 于 2014-1-18 13:40 编辑
) v* q2 ]* y2 F% }7 D
6 G, l+ i( ^3 c大致改了下, 如有不对,还请其他人改正。粉色线,为修改尺寸
1.jpg
2.jpg

工程图文档2修改.zip

66.97 KB, 下载次数: 1

评分

参与人数 1三维币 +5 收起 理由
2005llnn + 5 应助

查看全部评分

发表于 2014-1-18 15:40:41 | 显示全部楼层 来自: 中国山东烟台
尺寸标注的数字不能和中心线重合....../ M( B7 p9 f1 z2 d
标注文字如界限直接放不下则应放置在某一侧
, A. \3 Z) Z& }; ^4 I& O# TA-A的符合怎么搞到尺寸上去了.....
发表于 2014-1-18 15:41:59 | 显示全部楼层 来自: 中国山东烟台
另外我建议就你画的键槽剖面图,你主视图上的剖面符号应该向左侧才好

评分

参与人数 1三维币 +3 收起 理由
2005llnn + 3 应助

查看全部评分

发表于 2014-1-20 12:47:38 | 显示全部楼层 来自: 中国宁夏银川
缺同轴度要求
发表回复
您需要登录后才可以回帖 登录 | 注册

本版积分规则


Licensed Copyright © 2016-2020 http://www.3dportal.cn/ All Rights Reserved 京 ICP备13008828号

小黑屋|手机版|Archiver|三维网 ( 京ICP备2023026364号-1 )

快速回复 返回顶部 返回列表