QQ登录

只需一步,快速开始

登录 | 注册 | 找回密码

三维网

 找回密码
 注册

QQ登录

只需一步,快速开始

展开

通知     

全站
6天前
查看: 6371|回复: 31
收起左侧

[讨论] 本人的一个主轴传动设计,请大家指点!

[复制链接]
发表于 2013-11-22 08:47:01 | 显示全部楼层 |阅读模式 来自: 中国广东肇庆

马上注册,结识高手,享用更多资源,轻松玩转三维网社区。

您需要 登录 才可以下载或查看,没有帐号?注册

x
轴装配.rar (201.42 KB, 下载次数: 44)
 楼主| 发表于 2013-11-22 08:53:40 | 显示全部楼层 来自: 中国广东肇庆
贴个图纸!!!!!!!!!!!!!!!!
1 V. e. O/ ?" a* }
) U" x6 z( U) u 轴装配tu.jpg
发表于 2013-11-22 09:24:34 | 显示全部楼层 来自: 中国湖北黄冈
帮楼主贴图。
1.jpg
2.jpg
3.jpg

评分

参与人数 1三维币 +2 收起 理由
9619 + 2 应助

查看全部评分

 楼主| 发表于 2013-11-22 13:25:26 | 显示全部楼层 来自: 中国广东肇庆
谢谢TANG!!!!!
 楼主| 发表于 2013-11-23 13:47:40 | 显示全部楼层 来自: 中国广东肇庆
贴图贴太大了市是不是!!!打不开了!!
发表于 2013-11-23 15:26:54 | 显示全部楼层 来自: 中国湖南岳阳
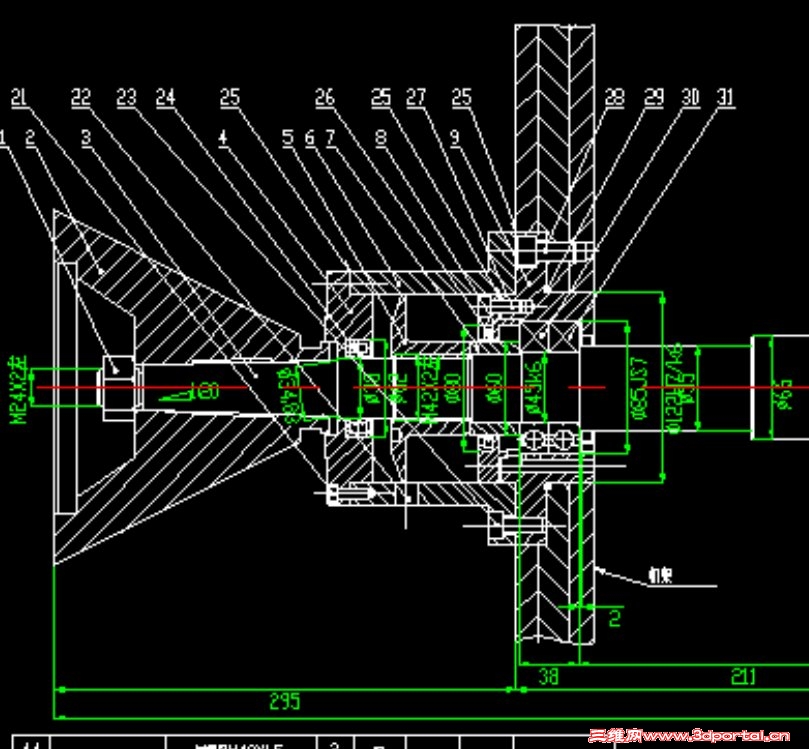
不知道该主轴是否承受比较大的轴向力,如果是,轴承的选用就不能采用深沟球了。

评分

参与人数 1三维币 +2 收起 理由
9619 + 2 技术讨论

查看全部评分

发表于 2013-11-23 17:29:32 | 显示全部楼层 来自: 中国湖北黄冈
不知右端与皮带轮相连的直径300厚10的圆盘有什么用,以及皮带传递的功率、皮带拉力?感觉皮带轮与机架之间的距离太大。建议校核周到弯曲强度,中间的链轮能否队中布置?以减少链轮的偏摆。

评分

参与人数 1三维币 +2 收起 理由
9619 + 2 技术讨论

查看全部评分

发表于 2013-11-24 18:51:42 | 显示全部楼层 来自: 中国陕西西安
主要原因在于皮带轮没有卸荷。皮带轮的张力
9 U+ F5 U3 J- k) }- J( o/ x( O: A1)会使主轴产生严重弯曲;
: J5 b: x% E0 C, r8 w% K2)会影响30、31、33、35、38轴承的正常运转,特别是38号轴承最容易损坏;  q5 e# w$ T! G% G. Q5 O
3)主轴弯曲后会产生抖动,中部的链条和主轴都有可能断裂。

评分

参与人数 1三维币 +2 收起 理由
9619 + 2 技术讨论

查看全部评分

 楼主| 发表于 2013-11-25 16:22:43 | 显示全部楼层 来自: 中国广东肇庆
TKG-09 发表于 2013-11-23 15:26 static/image/common/back.gif
7 K1 u2 s4 q( i' N  }不知道该主轴是否承受比较大的轴向力,如果是,轴承的选用就不能采用深沟球了。

4 P1 i+ C$ B' X5 j8 M左端的轮受切向拉力,轴向力很小的!负载也不大,关键是空载都有问题!
 楼主| 发表于 2013-11-25 16:24:56 | 显示全部楼层 来自: 中国广东肇庆
tangcarlos3d 发表于 2013-11-23 17:29 static/image/common/back.gif% v& ~* }4 M% U5 S2 {- X+ U
不知右端与皮带轮相连的直径300厚10的圆盘有什么用,以及皮带传递的功率、皮带拉力?感觉皮带轮与机架之间的 ...
4 V; E% G. m9 N0 p6 V
1.那个是刹车盘$ l% n& q) Z1 |: F& o
2.距离确实可以减少点!!改改
  O( ?# z7 J6 B5 G, K3.链轮也可以考虑放中间来!
% g1 [6 k( o* S- x- w( W谢谢
 楼主| 发表于 2013-11-25 16:27:03 | 显示全部楼层 来自: 中国广东肇庆
洪哥 发表于 2013-11-24 18:51 static/image/common/back.gif
9 w/ w9 n, X+ x6 C- z7 W' m主要原因在于皮带轮没有卸荷。皮带轮的张力1 `7 }: ^1 [: c7 @4 q/ K3 \' w
1)会使主轴产生严重弯曲;: ]5 X5 }7 C$ i* I- z9 R- n
2)会影响30、31、33、35、38轴承 ...
9 r- S8 u* L& K( L
皮带轮张力!!??( n. k/ C$ t  ], _9 a- a! w0 Q
那要卸荷,如何弄啊!!产生大的抖动确实有可能,如果加大轴,会不会好点!!
发表于 2013-11-25 17:21:10 | 显示全部楼层 来自: 中国陕西西安
本帖最后由 洪哥 于 2013-11-25 17:24 编辑 , ], |8 t8 x2 y/ v
WWXGO 发表于 2013-11-25 16:27 http://www.3dportal.cn/discuz/static/image/common/back.gif) `, Z8 c" i' ~1 m( q  ?( }$ p
皮带轮张力!!??' y0 t3 Z( ?( |1 r$ o
那要卸荷,如何弄啊!!产生大的抖动确实有可能,如果加大轴,会不会好点!!

7 i0 l, d1 E" N$ A% f( H3 [1 U2 L5 a
轴再大也会损坏38号轴承的,你看看受力分析就知道了。皮带的张力不能加到主轴上,皮带轮只对主轴传递旋转扭力。
9 p$ ^4 Q) t8 w. v, Z3 U
1 C9 T. z6 O/ I+ b% R. q要设计成卸荷皮带轮。

评分

参与人数 1三维币 +2 收起 理由
9619 + 2 技术讨论

查看全部评分

发表于 2013-11-25 20:12:05 | 显示全部楼层 来自: 中国湖南岳阳
WWXGO 发表于 2013-11-25 16:22 static/image/common/back.gif
7 g3 n: k9 E% O$ ]2 a- k- x左端的轮受切向拉力,轴向力很小的!负载也不大,关键是空载都有问题!
# i8 _. \- ?- i! }% Q' d8 a
1.左端轮受切向力,由于受力面是斜面,分解后包含径向力和轴向力,需要考虑轴向力的影响。如果轴向力比较大,需要采用角接触球轴承或圆锥滚子轴承。
0 A& G1 t" \% J! c  u2.由于两组轴承跨距比较大,估计机架为焊接件,如果机架焊接后没有退火,或两轴承座孔加工后同轴度误差较大,装配后轴承干涉严重(不灵活),运转发热严重,轴承容易损坏。
% }3 H. K! w( S) ~9 w  如果是第二条,机架需要在焊接后退火消除焊接应力,同时为了降低加工难度,可以采用调心滚子轴承或带法兰座的外球面球轴承。

评分

参与人数 1三维币 +2 收起 理由
9619 + 2 技术讨论

查看全部评分

 楼主| 发表于 2013-11-27 08:01:29 | 显示全部楼层 来自: 中国广东肇庆
根据维修反馈,左端两轴承坏的多!!有高温烧过痕迹!
 楼主| 发表于 2013-12-6 16:30:13 | 显示全部楼层 来自: 中国广东肇庆
洪哥 发表于 2013-11-24 18:51 static/image/common/back.gif
  B0 L; o  X/ e. ^# Q/ f主要原因在于皮带轮没有卸荷。皮带轮的张力
5 W6 P- ]5 j( r& K6 D, Q1)会使主轴产生严重弯曲;) d- q" Z: j4 z2 g5 i
2)会影响30、31、33、35、38轴承 ...

2 b  X/ F. G* I由于左端轴承表现出高烧痕迹,是否应该考虑润滑问题,还有,链轮链条是否有专用的润滑油,机器箱体内部链轮有三组传动,一组大的浸油!我也怀疑润滑油是否要专用!
发表于 2013-12-8 22:48:30 | 显示全部楼层 来自: 中国湖北荆门
制动原理是什么样的呢?
 楼主| 发表于 2013-12-9 09:17:31 | 显示全部楼层 来自: 中国广东肇庆
rishew 发表于 2013-12-8 22:48 static/image/common/back.gif" R/ d) l% f7 E
制动原理是什么样的呢?
! f- W1 B" H2 j  f% }  F% C4 H
油压碟式制动
发表于 2013-12-15 17:05:31 | 显示全部楼层 来自: 中国辽宁大连
感觉是你的30,31,33,35号轴承选择是不是有问题,一般情况要是我用深沟球轴承最少相对两面定位定住,并且背靠背用轴承是不是但双列圆锥滚子轴承比较好点,尤其是你你这种工况不仅受径向力还受轴向力

评分

参与人数 1三维币 +3 收起 理由
虎强 + 3 技术讨论

查看全部评分

 楼主| 发表于 2013-12-16 08:14:39 | 显示全部楼层 来自: 中国广东肇庆
xia0807 发表于 2013-12-15 17:05 static/image/common/back.gif) n+ t, x3 w$ F: y7 \( F& Z# n
感觉是你的30,31,33,35号轴承选择是不是有问题,一般情况要是我用深沟球轴承最少相对两面定位定住,并且 ...
' {" G8 o7 `% J/ S2 |* h
谢谢!也有道理,我会重新考虑轴承的使用!!
 楼主| 发表于 2013-12-29 11:25:36 | 显示全部楼层 来自: 中国广东肇庆
没见GAO工给点意见!4 V6 B3 f$ j6 V/ F' S! P: H
困惑中,大家多多指点吧!
发表于 2013-12-30 22:01:47 | 显示全部楼层 来自: 中国陕西西安
WWXGO 发表于 2013-12-29 11:25 http://www.3dportal.cn/discuz/static/image/common/back.gif
' ^1 y! ~! A+ {没见GAO工给点意见!
1 [6 N' b. W) q# }困惑中,大家多多指点吧!
% Q' R6 J1 S" O$ h4 M6 T
, m/ W" C5 y0 M9 g' B
不是卸荷传动设计,怎么改都白搭。
发表于 2013-12-31 23:14:30 | 显示全部楼层 来自: 中国江苏苏州
本帖最后由 huanking 于 2013-12-31 23:30 编辑 0 y' \7 |4 c$ P, ?8 f1 o5 h
9 Z$ _0 ?& g- _  Y3 b1 r
17,19号零件挑空那么多干什么?右侧完全可以再紧凑点,让带轮尽可能靠近轴承,刹车盘直径大点,可以让开制动器的空间,让制动器的右侧处在带轮的上部,估计至少还可以减掉100的距离。要是零件17改为铸件,轴承34,35装到零件17上来效果会更好!

评分

参与人数 1三维币 +3 收起 理由
虎强 + 3 技术讨论

查看全部评分

 楼主| 发表于 2014-1-3 08:14:07 | 显示全部楼层 来自: 中国广东肇庆
洪哥 发表于 2013-12-30 22:01 static/image/common/back.gif+ W% C: P  @+ Y& F* @
不是卸荷传动设计,怎么改都白搭。
  A7 n) Y' k5 y4 K
哈哈,谢洪哥!怎么把他装在机架上!在想呢。。。
 楼主| 发表于 2014-1-3 08:59:28 | 显示全部楼层 来自: 中国广东肇庆
huanking 发表于 2013-12-31 23:14 static/image/common/back.gif
2 L2 y8 v! |" l, a: T17,19号零件挑空那么多干什么?右侧完全可以再紧凑点,让带轮尽可能靠近轴承,刹车盘直径大点,可以让开制动 ...
  T$ C0 k* I+ @8 b7 J
有道理,要改!!
发表于 2014-1-3 10:31:47 | 显示全部楼层 来自: 中国湖北武汉
本帖最后由 洪哥 于 2014-1-3 10:33 编辑 # d3 z! x+ E7 J2 X3 ]
WWXGO 发表于 2014-1-3 08:14 static/image/common/back.gif
/ [6 P3 N4 }) x7 b) C/ X哈哈,谢洪哥!怎么把他装在机架上!在想呢。。。
( E9 i1 D, R, f& H- h
怎么设计就怎么装。8 _  p" b6 W- \+ @

' a8 u, z& F; U* @" h关键是设计。
发表回复
您需要登录后才可以回帖 登录 | 注册

本版积分规则


Licensed Copyright © 2016-2020 http://www.3dportal.cn/ All Rights Reserved 京 ICP备13008828号

小黑屋|手机版|Archiver|三维网 ( 京ICP备2023026364号-1 )

快速回复 返回顶部 返回列表