QQ登录

只需一步,快速开始

登录 | 注册 | 找回密码

三维网

 找回密码
 注册

QQ登录

只需一步,快速开始

展开

通知     

查看: 1566|回复: 15
收起左侧

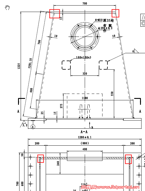
[求助] 求大神指点,板类焊接件

[复制链接]
发表于 2013-11-16 10:54:29 | 显示全部楼层 |阅读模式 来自: 中国山东潍坊

马上注册,结识高手,享用更多资源,轻松玩转三维网社区。

您需要 登录 才可以下载或查看,没有帐号?注册

x
这种焊接件,一般怎么建模,现在毫无头绪8 C. Y/ ]# L: }% N

.pdf

128.99 KB, 下载次数: 22

发表于 2013-11-16 17:22:17 | 显示全部楼层 来自: 中国四川攀枝花
这个图还是很好建模的,正好有空,帮你画一下,有些细节未画,你自己补上吧。: d/ j# [( a8 g5 `
快照6.png
% O; Z5 c* H) u& W% h) d, |SW 2012版文件: 机身.rar (327.91 KB, 下载次数: 18)

评分

参与人数 1三维币 +3 收起 理由
阿帕奇 + 3

查看全部评分

发表于 2013-11-16 17:29:53 | 显示全部楼层 来自: 中国四川攀枝花
补充说明一下,楼主图里,主视图看,左、右两边的板是夹在前后两块板里的,俯视图上看却是左、右两块板夹前、后两块板,这两视图是矛盾的。
1 i* j- e$ H2 p! C/ K, i2 T上图是以主视图为准来画的。
+ ?# e! I4 U7 j. c4 ]7 D9 d2 x4 y 快照7.png
9 g1 W. v( W; q3 B5 _% F7 s( c

评分

参与人数 1三维币 +3 收起 理由
阿帕奇 + 3

查看全部评分

 楼主| 发表于 2013-11-19 14:30:31 | 显示全部楼层 来自: 中国山东潍坊
pzhzs 发表于 2013-11-16 17:22 static/image/common/back.gif
# R+ u6 F2 i, T' L3 Z这个图还是很好建模的,正好有空,帮你画一下,有些细节未画,你自己补上吧。! M) ?* C6 `  x  n, q
  ~# T! W( a9 I  A% g+ T5 H6 f) H
SW 2012版文件:

7 Q+ x2 h. F8 H6 Z) @谢大神指点,本人图纸有点问题,我主要是想知道建模怎么键??能不能把你的创建过程讲解一下,现在很纠结
发表于 2013-11-19 14:40:48 | 显示全部楼层 来自: 中国四川攀枝花
本帖最后由 pzhzs 于 2013-11-19 14:44 编辑
5 d; o7 ~2 y! v' {5 q. a! V
燃烧の灵魂 发表于 2013-11-19 14:30 static/image/common/back.gif
1 t: p) _6 J2 l6 }谢大神指点,本人图纸有点问题,我主要是想知道建模怎么键??能不能把你的创建过程讲解一下,现在很纠结

1 _2 `9 d* B3 {) }你把右侧的特征树打开,一步一步地往下看就知道怎么建模的了。8 S2 B& e" z. n) a- ?
lx.gif
8 L9 t, ^/ G9 U: U1 e: K; d; Y
; H+ l& N$ ?1 S" J; [6 n) \
 楼主| 发表于 2013-11-19 14:46:22 | 显示全部楼层 来自: 中国山东潍坊
pzhzs 发表于 2013-11-16 17:29 static/image/common/back.gif
" g- _  A$ N6 _0 g! b补充说明一下,楼主图里,主视图看,左、右两边的板是夹在前后两块板里的,俯视图上看却是左、右两块板夹前 ...

1 s0 g3 z1 Q" i3 A1 f你的版本有点高,我的2011版
/ ?: S! l8 Q9 s( N: }大哥能不能给发个2011的
发表于 2013-11-19 14:49:18 | 显示全部楼层 来自: 中国四川攀枝花
燃烧の灵魂 发表于 2013-11-19 14:46 static/image/common/back.gif
: R9 h& t$ ?/ K% z9 u你的版本有点高,我的2011版
: Y3 m0 y+ w3 `% g1 _大哥能不能给发个2011的

% C/ [& T8 g7 {: m' C. A" v3 csw不能存为低版本的格式
 楼主| 发表于 2013-11-19 14:53:08 | 显示全部楼层 来自: 中国山东潍坊
pzhzs 发表于 2013-11-19 14:49 static/image/common/back.gif
7 S5 X' f* z( {, v4 Qsw不能存为低版本的格式
! r1 n4 ]* A% Y7 P
新建零件-焊件-然后各种拉伸切除是吧?& m) X+ }* L" t! h8 l* v
虽然不能看到更详细的,不过这已经很好了。非常感谢
发表于 2013-11-19 15:06:04 | 显示全部楼层 来自: 中国四川攀枝花
燃烧の灵魂 发表于 2013-11-19 14:53 static/image/common/back.gif1 n# ]( S1 E* x$ f" E2 O' P) g( `7 y. a7 z
新建零件-焊件-然后各种拉伸切除是吧?9 {  _" g6 J) f: A1 Q# o1 I
虽然不能看到更详细的,不过这已经很好了。非常感谢
" ^2 t8 l3 T( u" \& e& J' S
这个焊件的建模很简单,只用得到几个基本的建模特征。
. H: `& N6 \- E& h& B- c  C$ G5 ~前面那个动画把前三个特征演示了出来,焊件的基本轮廓也出来了。* k2 ^* W8 |, X, p9 F: t

, y5 z3 B7 Q+ I7 g! D2 T要注意的一点就是,拉伸或切除时要把『合并结果』的勾去掉,否则建出来的模型是一个实体,就出不了切割清单了。) q0 U% y) f, V$ i4 T/ G
快照19.png

评分

参与人数 1三维币 +3 收起 理由
阿帕奇 + 3

查看全部评分

 楼主| 发表于 2013-11-19 15:16:24 | 显示全部楼层 来自: 中国山东潍坊
pzhzs 发表于 2013-11-19 15:06 static/image/common/back.gif
, V! N2 H! g6 ~这个焊件的建模很简单,只用得到几个基本的建模特征。
. W; X8 h) K8 j) u  p) f4 H前面那个动画把前三个特征演示了出来,焊件的基本 ...

) |% x0 v4 C% Q9 v4 P5 G7 m
0 `4 b5 B* r8 l  {- V) D+ `切割清单怎样出?可以教一下吗?有资料也行
发表于 2013-11-19 16:28:22 | 显示全部楼层 来自: 中国四川攀枝花
去看 SW 自带的帮助文件,或者在论坛里找
5 H6 G0 \5 n- h; E7 W2 D9 X: v 快照1.png 3 y) Y+ _& O  A! ~- m$ U

评分

参与人数 1三维币 +3 收起 理由
阿帕奇 + 3

查看全部评分

 楼主| 发表于 2013-11-20 11:35:27 | 显示全部楼层 来自: 中国山东潍坊
pzhzs 发表于 2013-11-19 16:28 static/image/common/back.gif
' p3 K- l1 w+ N& z, W" k去看 SW 自带的帮助文件,或者在论坛里找

, [6 f/ I' r" x$ v% A3 h2 D
发表于 2013-11-28 08:50:24 | 显示全部楼层 来自: 中国上海
SW认为的焊件我认为是型钢之类的型材,类似于钢结构8 L) K/ F( w( \* Z) K# g
很多机械焊接结构,与SW软件的焊件不一定是一回事的( @! Z6 ^. m% K2 z& i4 n
当然这个不是绝对的,如果把钢板等所有焊接结构用焊件功能来做,我认为太麻烦了
+ j1 [; b( P9 |4 @8 P+ k焊接结构首先类型很多,除非只关心当前的模型,但是换了模型形式,你还要单独设置,
3 x9 K# U8 N; i" d1 u7 e工作量可想而知. y# J# L, `8 |8 x, C
发表于 2014-1-19 21:03:25 | 显示全部楼层 来自: 中国山东烟台
pzhzs 发表于 2013-11-19 15:06 static/image/common/back.gif. y' e+ z6 v" k2 n( I2 Y
这个焊件的建模很简单,只用得到几个基本的建模特征。1 j& {( m0 C' N: m  f  t8 O# v% [
前面那个动画把前三个特征演示了出来,焊件的基本 ...
& C/ N3 Z% j: p
学到很多,谢谢!
发表于 2014-1-19 21:39:02 | 显示全部楼层 来自: 中国山东烟台
pzhzs 发表于 2013-11-19 15:06 static/image/common/back.gif% n1 t- Y& U9 c) A
这个焊件的建模很简单,只用得到几个基本的建模特征。* [4 Q6 A8 o1 D0 K* R& \* H
前面那个动画把前三个特征演示了出来,焊件的基本 ...
; B& H# G. z0 c+ B2 A0 b' v
请教一下,我如果想用加强筋的话,怎么加,怎么再进行应力分析啊
发表于 2014-1-19 23:06:20 | 显示全部楼层 来自: 中国四川攀枝花
金乘四贤 发表于 2014-1-19 21:39 static/image/common/back.gif9 u1 y5 ^; `* ^& U$ X, g- P
请教一下,我如果想用加强筋的话,怎么加,怎么再进行应力分析啊
5 [: s* Q% Q: H9 |" n1 h# r
用焊件里的『角撑板』就可以做加强筋。
5 w( m0 W% s" Z3 P0 D 快照16.png $ y6 I5 j+ B# |7 I9 H
应力分析要用 Simulation 插件来做,具体的用法可以看 SW 自带的帮助。, ~" m3 ?) p+ R# g/ C# P
快照19.png
发表回复
您需要登录后才可以回帖 登录 | 注册

本版积分规则


Licensed Copyright © 2016-2020 http://www.3dportal.cn/ All Rights Reserved 京 ICP备13008828号

小黑屋|手机版|Archiver|三维网 ( 京ICP备2023026364号-1 )

快速回复 返回顶部 返回列表